Bildegalleri

Solgt
Bestum
Enderekkehus over tre plan med skjermet hage, peis og garasje. Rammetillatelse til påbygg.
Prisantydning6 500 000 kr
Nøkkelinfo
- Boligtype
- Rekkehus
- Eieform
- Selveier
- Soverom
- 2
- Primærrom
- 84 m²
- Bruksareal
- 84 m²
- Byggeår
- 1966
- Energimerking
- G - Rød
- Tomteareal
- 226 m² (eiet)
Fasiliteter
Barnevennlig
Balkong/Terrasse
Garasje/P-plass
Offentlig vann/kloakk
Peis/Ildsted
Turterreng
Sentralt
Rolig
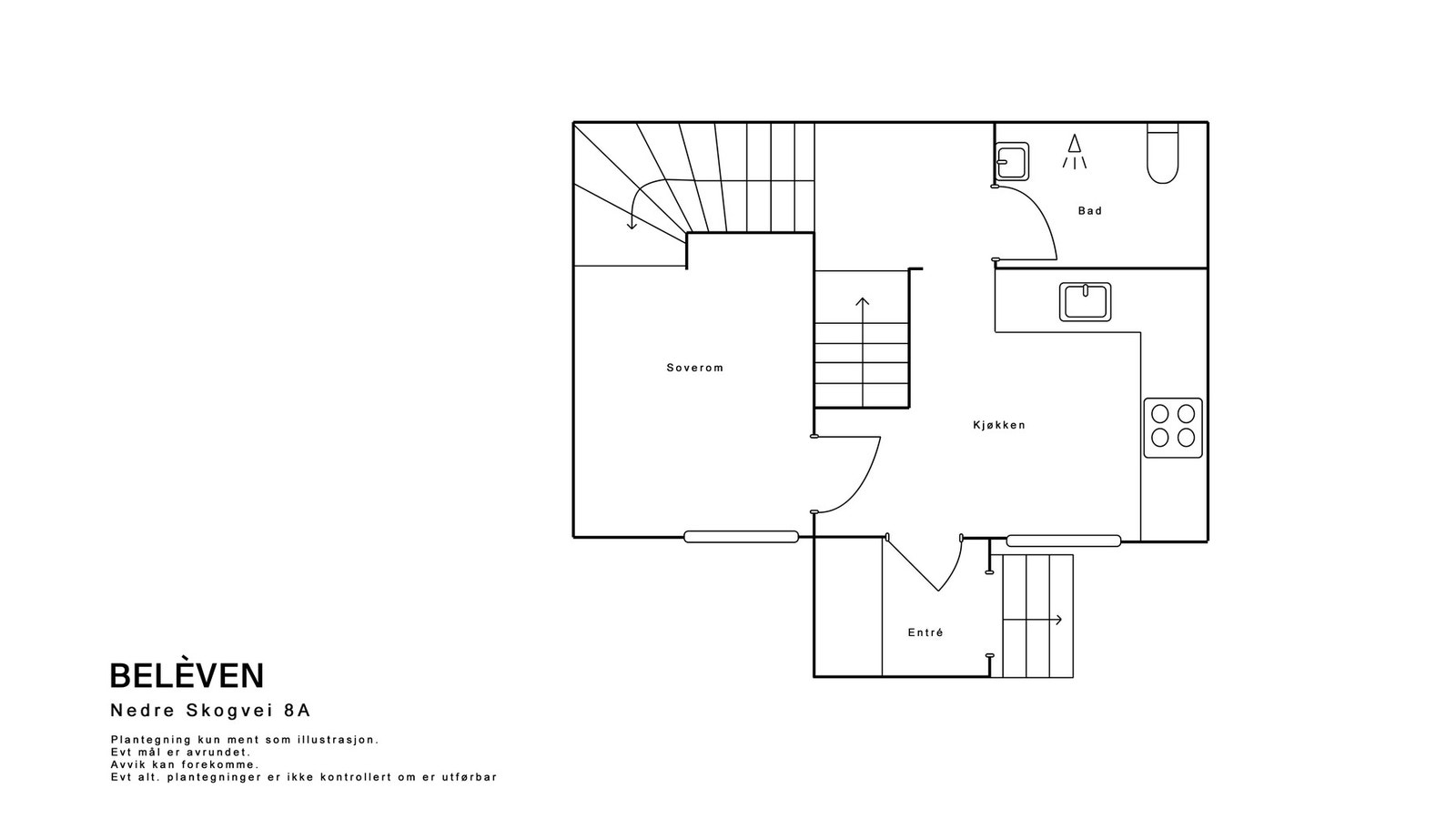
Om boligen
Nedre Skogvei 8 A er et rekkehus over tre plan med et stort potensial for familiens drømmebolig. Her kan man nyte solfylte dager i den skjermede hagen og balkongen. Eiendommen ligger i et veletablert og attraktivt boligområde på Bestum i Oslo, med nærhet til skoler, barnehager, offentlig kommunikasjon, samt et rikt utvalg av fasiliteter og servicetilbud. Området har kort vei til fotballbane, skøytebane, tennisanlegg, badeplass og treningssenter m.m.
Det foreligger rammetillatelse til påbygg. Boligens planløsning, det store potensialet og beliggenheten gjør den meget attraktiv, og dette må være et perfekt utgangspunkt som, med renovering, kan bli en moderne og flott familiebolig.
Det foreligger rammetillatelse til påbygg. Boligens planløsning, det store potensialet og beliggenheten gjør den meget attraktiv, og dette må være et perfekt utgangspunkt som, med renovering, kan bli en moderne og flott familiebolig.
NB: Knappen for å vise hele beskrivelsen har kun en visuell effekt.
NB: Knappen for å vise hele beskrivelsen har kun en visuell effekt.
Salgsoppgaven beskriver vesentlig og lovpålagt informasjon om eiendommen
Se komplett salgsoppgaveNyttige lenker
Nærområdet
Belèven Eiendomsmegling
Prisstatistikk
Nedre Skogvei 8A
6 493 klikk
på annonsen
77 380 kr
prisantydning per kvadratmeter
Prisfordeling
Pris per m² ligger 6 620 kr under snittet for rekkehus i Ullern.
Grafen viser antall rekkehus solgt i Ullern siste året fordelt på pris per m² - totalt 55 rekkehus
Antall boliger
Kvadratmeterpris tilsvarer prisantydning pluss fellesgjeld per kvadratmeter (p-rom eller BRA-i). Prisene i grafen er avrundet til nærmeste 1000 kr.
Annonsene kan være mangelfulle i forhold til lovpålagt opplysningsplikt. Før bindende avtale inngås oppfordres interessenter til å innhente komplett informasjon fra meglerforetaket, selger eller utleier.































