Bildegalleri

Velkommen til Lahelleveien 13, en prakteiendom av det sjeldne slaget!
Nøtterøy/Lahelle
Stor herskapelig villa med vakker hage, tennisbane, basseng, egen strandlinje, båthus, stor brygge. Meget solrikt!
Prisantydning33 000 000 kr
Nøkkelinfo
- Boligtype
- Enebolig
- Eieform
- Selveier
- Soverom
- 4
- Internt bruksareal
- 529 m² (BRA-i)
- Bruksareal
- 529 m²
- Balkong/Terrasse
- 34 m² (TBA)
- Etasje
- 2
- Byggeår
- 1989
- Energimerking
- Rom
- 7
- Tomteareal
- 3 168 m² (eiet)
Fasiliteter
Balkong/Terrasse
Barnevennlig
Båtplass
Garasje/P-plass
Golfbane
Hage
Kjæledyr tillatt
Offentlig vann/kloakk
Parkett
Peis/Ildsted
Rolig
Sentralt
Utsikt
Bademulighet
Fiskemulighet
Strandlinje
Turterreng
Lademulighet
Balansert ventilasjon
Om boligen
Velkommen til Lahelleveien 13 En stor herskapelig villa med egen praktikantdel, trippelgarasje og nydelig beliggenhet. Dette er en prakteiendom av det sjeldne, tomt på godt over tre mål, steinlagt gårdsplass og solrik, parkmessig opparbeidet hage. Her finner du både tennisbane, strand, båthus og brygge med båtplasser. Langs den ene siden av boligen er det også et hellelagt uteareal med overbygd spiseplass, utepeis og svømmebasseng på 4x10m.
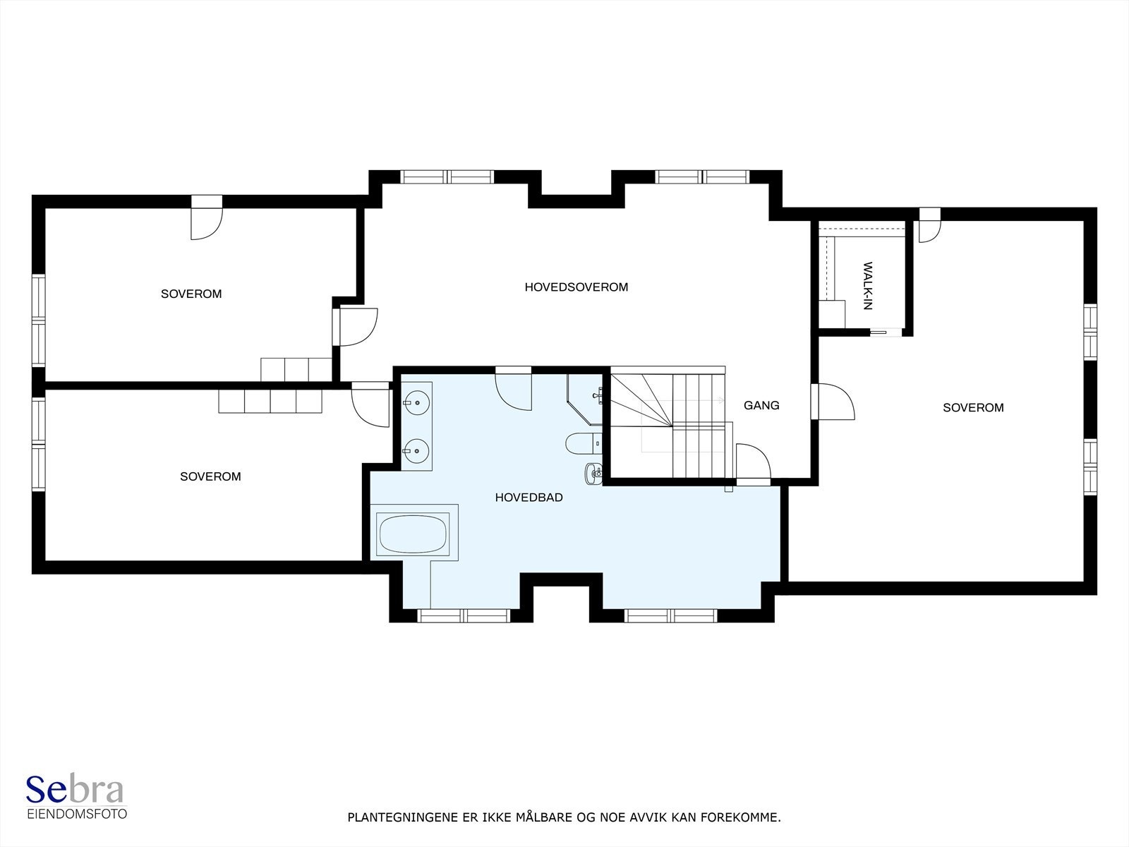
Eneboligen byr på flotte detaljer og rikelig med tumleplass over tre etasjer. To kjøkken, fire soverom og fire bad ligger fordelt på over tre etasjer. I tillegg til både stue og stor kjellerstue med peis, er det fire herlige stuer i første etasjen. Den har en egen praktikantdel med sjøutsikt og som har egen inngang.
Eneboligen byr på flotte detaljer og rikelig med tumleplass over tre etasjer. To kjøkken, fire soverom og fire bad ligger fordelt på over tre etasjer. I tillegg til både stue og stor kjellerstue med peis, er det fire herlige stuer i første etasjen. Den har en egen praktikantdel med sjøutsikt og som har egen inngang.
NB: Knappen for å vise hele beskrivelsen har kun en visuell effekt.
NB: Knappen for å vise hele beskrivelsen har kun en visuell effekt.
Salgsoppgaven beskriver vesentlig og lovpålagt informasjon om eiendommen
Se komplett salgsoppgaveNyttige lenker
Nærområdet
EiendomsMegler 1 Sandefjord
et foretak i SpareBank 1 Sør-Norge konsernet
Annonseinformasjon
| FINN-kode | 293946908 |
|---|---|
| Sist endret | 09. mai 2026 21:22 |
| Referanse | 2865250009 |
Annonsene kan være mangelfulle i forhold til lovpålagt opplysningsplikt. Før bindende avtale inngås oppfordres interessenter til å innhente komplett informasjon fra meglerforetaket, selger eller utleier.











































