Bildegalleri

Herskapelig og vakker murvilla med fantastisk beliggenhet. Betydelig oppusset i 2022. Flott solrik, inngjerdet hage.
Herskapelig og vakker murvilla med fantastisk beliggenhet. Betydelig oppusset i 2022. Flott solrik, inngjerdet hage.
Nøkkelinfo
- Boligtype
- Enebolig
- Eieform
- Eier (Selveier)
- Soverom
- 3
- Primærrom
- 336 m²
- Bruksareal
- 365 m²
- Byggeår
- 1928
- Energimerking
- G - Mørkegrønn
- Tomteareal
- 719 m² (eiet)
Fasiliteter
Om boligen
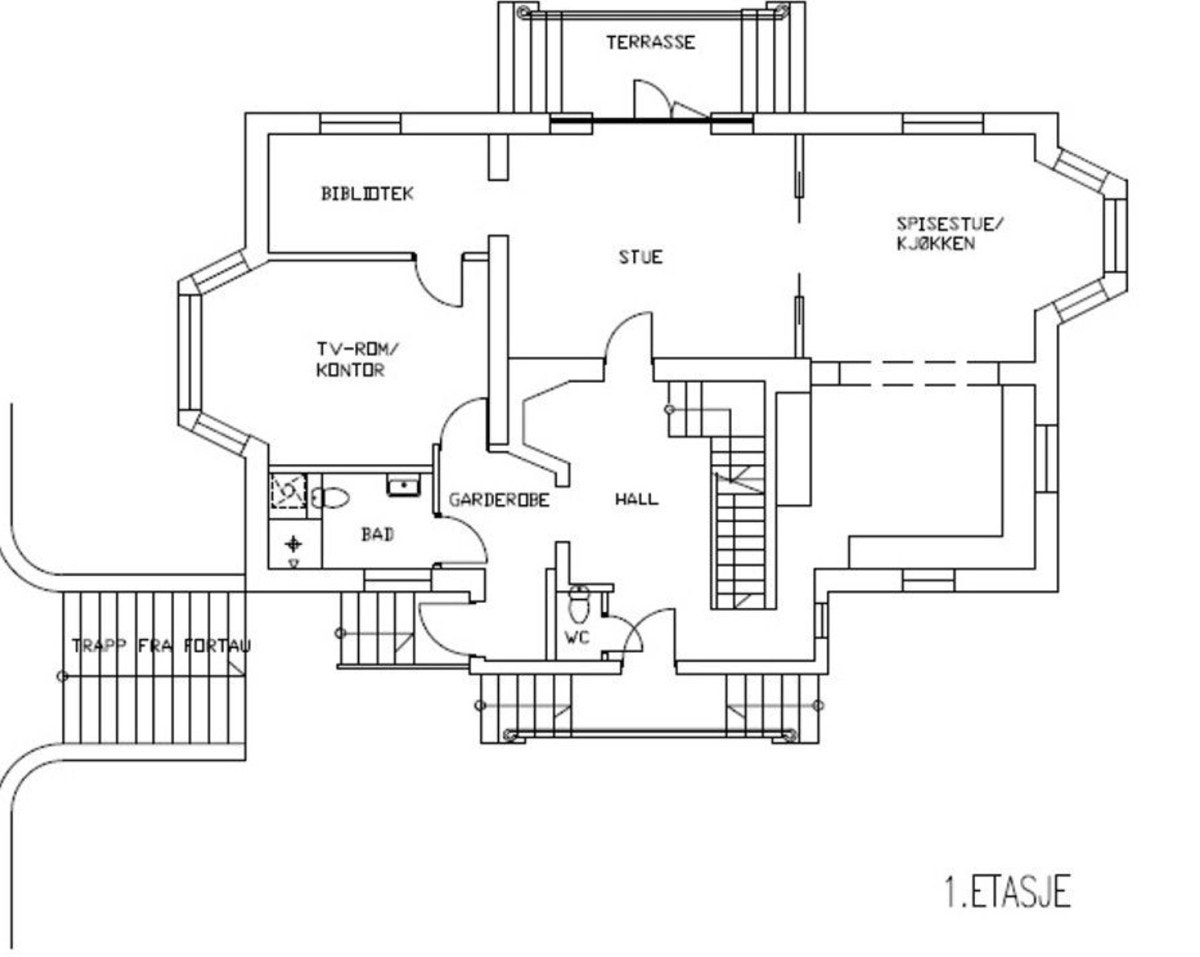
I et av Oslos beste områder selges det nå en flott, herskapelig murvilla av de sjeldne. Boligen er opprinnelig fra 1928, og det er mye historie i disse veggene. Den ble tegnet av den første kvinnelige arkitekten utdannet ved NTH, Kirsten Sand, og har vært brukt som pikehjem og har tilhørt den famøse operasangeren Cally Monrad.
I 2022 ble villaen pusset opp og har nå gjenoppstått i ny prakt. Her får du tre romslige etasjer smakfullt innredet med moderne, eksklusive løsninger. Villaen har flere stuer, stort kontor, eget bibliotek, to kjøkken, tre store soverom, fire bad, badstue, trimrom og flere spesialrom. Det er inngang både i første etasje og kjeller, noe som gir flere innredningsmuligheter. Den nydelige hagen er inngjerdet og har et flott drivhus/vinterhage.
Salgsoppgaven beskriver vesentlig og lovpålagt informasjon om eiendommen
Se komplett salgsoppgaveNyttige lenker
Nærområdet

PrivatMegleren Dyve & Partnere
Prisstatistikk
General Birchs gate 28
på annonsen
prisantydning per kvadratmeter
Prisfordeling
Pris per m² ligger 17 928 kr over snittet for eneboliger i St.Hanshaugen - Ullevål.
Grafen viser antall eneboliger solgt i St.Hanshaugen - Ullevål siste året fordelt på pris per m² - totalt 11 eneboliger
Antall boliger
Kvadratmeterpris tilsvarer prisantydning pluss fellesgjeld per kvadratmeter (p-rom eller BRA-i). Prisene i grafen er avrundet til nærmeste 1000 kr.
Annonseinformasjon
| FINN-kode | 292810184 |
|---|---|
| Sist endret | 19. nov. 2023 16:19 |
| Referanse | 159230021 |
Annonsene kan være mangelfulle i forhold til lovpålagt opplysningsplikt. Før bindende avtale inngås oppfordres interessenter til å innhente komplett informasjon fra meglerforetaket, selger eller utleier.































