Bildegalleri

PrivatMegleren v/ Eiendomsmegler MNEF Erlend Haglund presenterer Åsta Kongsmors gate 11 for salg.
Eksklusiv "Villa" med svømmebasseng, solceller, vannbåren varme og panorama utsikt til Hafrsfjord. Utleieleilighet.
Nøkkelinfo
- Boligtype
- Enebolig
- Eieform
- Eier (Selveier)
- Internt bruksareal
- 508 m² (BRA-i)
- Bruksareal
- 550 m²
- Eksternt bruksareal
- 42 m² (BRA-e)
- Byggeår
- 2022
- Energimerking
- B - Mørkegrønn
- Tomteareal
- 1 245 m² (eiet)
- Boligselgerforsikring
- Ja
Fasiliteter
Om boligen
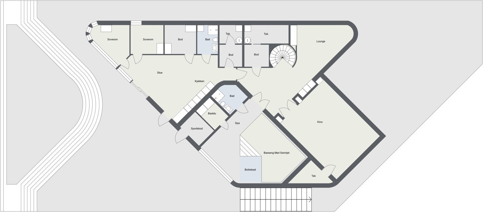
Velkommen til Åsta Kongsmors gate 11. En unik enebolig med moderne løsninger, lekre designdetaljer og høy standard. Dette er en eiendom det knapt finnes maken til! Her får du sentral beliggenhet, solrik og opparbeidet tomt, dobbelgarasje med lader og herlig fjordutsikt. Boligen er på 501 kvm BRA og rommer bl.a. godkjent leilighet i underetasjen, kino og spaanlegg med badstue og svømmebasseng.
Boligen sto ferdig i 2022 med solceller på tak og vannbåren varme for lave energikostnader. Utvendig gir boligen et makeløst inntrykk, men innsiden kan ta pusten fra en med høykvalitets fliser, lekre tredetaljer og store vindusflater. Boligen har bl.a. flere soverom, kontor, lounge, fire bad, og stue og kjøkken av premium kvalitet. Vindeltrapp i glass leder opp til vakker skybar. Denne boligen må sees!
Salgsoppgaven beskriver vesentlig og lovpålagt informasjon om eiendommen
Se komplett salgsoppgaveNærområdet
Privatmegleren Galleri
Prisstatistikk
Åsta Kongsmors gate 11
på annonsen
prisantydning per kvadratmeter
Prisfordeling
Pris per m² ligger 27 866 kr over snittet for eneboliger i Madlamark/Gosen/Granneslia.
Grafen viser antall eneboliger solgt i Madlamark/Gosen/Granneslia siste året fordelt på pris per m² - totalt 70 eneboliger
Antall boliger
Kvadratmeterpris tilsvarer prisantydning pluss fellesgjeld per kvadratmeter (p-rom eller BRA-i). Prisene i grafen er avrundet til nærmeste 1000 kr.
Annonseinformasjon
| FINN-kode | 291489131 |
|---|---|
| Sist endret | 22. aug. 2024 14:14 |
| Referanse | 317220063 |
Annonsene kan være mangelfulle i forhold til lovpålagt opplysningsplikt. Før bindende avtale inngås oppfordres interessenter til å innhente komplett informasjon fra meglerforetaket, selger eller utleier.






































































































