Bildegalleri

En sjelden mulighet på beste Frogner. Et nydelig "Townhouse" over 3-plan med egen inngang. Boligen ligger skjermet til i indre gårdsrom.
Inaktiv
FROGNER
Lekkert og unikt Townhouse over 3-plan i klassisk bygård med egen inngang - Oppusset i 2014/2018 - Mot stille byhage.
Prisantydning8 900 000 kr
Nøkkelinfo
- Boligtype
- Leilighet
- Eieform
- Eier (Selveier)
- Soverom
- 2
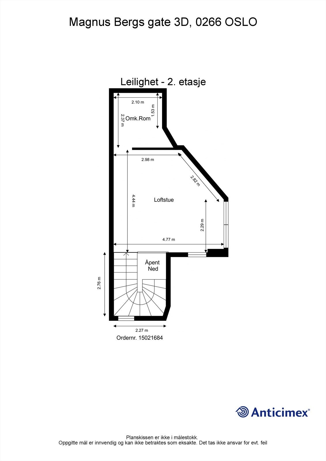
- Primærrom
- 116 m²
- Bruksareal
- 116 m²
- Etasje
- 3
- Byggeår
- 1903
- Energimerking
- G - Rød
- Rom
- 4
- Tomteareal
- 976 m² (eiet)
- Bruttoareal
- 137 m²
Fasiliteter
Barnevennlig
Bredbåndstilknytning
Garasje/P-plass
Kjæledyr tillatt
Kabel-TV
Offentlig vann/kloakk
Rolig
Sentralt
Vaktmester-/vektertjeneste
Turterreng
Lademulighet
Balansert ventilasjon
Livsløpsstandard
Visning
Vi legger til rette for gode visninger med tid til alle. Kontakt megler på telefon eller via linken visningspåmelding for å avtale tidspunkt. Husk også å lese salgsoppgaven før visningen.
VisningspåmeldingOm boligen
Dette er virkelig en mulighet av de sjeldne! Boligen ligger i et meget attraktivt område på Frogner, hvor eiendommen er adskilt i indre bakgård med inngang fra Gimleveien. Dette gir deg eneboligfølelsen i Oslos aller flotteste strøk. Boligen strekker seg over 3-plan og ble betydelig oppusset i 2014. "Huset" ble trolig brukt som en stall på tidlig 1900-tallet, men ble ombygget til bolig i 2003. Dette er en bolig som passer alle og enhver!
Høydepunkter:
Høydepunkter:
- Unikt "Townouse" på Frogner
- Stilrent bad og toalett
- Stille
- Romslig kjøkken (2014) med spisestue
- Særegen planløsning
- Oppusset 2014
- Fasjonabel adresse
NB: Knappen for å vise hele beskrivelsen har kun en visuell effekt.
NB: Knappen for å vise hele beskrivelsen har kun en visuell effekt.
Salgsoppgaven beskriver vesentlig og lovpålagt informasjon om eiendommen
Se komplett salgsoppgaveNyttige lenker
Nærområdet
Krogsveen Majorstuen og Oslo Vest
Verdien av en god megler.
Annonseinformasjon
| FINN-kode | 290095331 |
|---|---|
| Sist endret | 07. feb. 2024 13:27 |
| Referanse | KR40.22155 |
Annonsene kan være mangelfulle i forhold til lovpålagt opplysningsplikt. Før bindende avtale inngås oppfordres interessenter til å innhente komplett informasjon fra meglerforetaket, selger eller utleier.






































