Bildegalleri

EiendomsMegler 1 v/Morten Høvik har gleden av å presentere Nyjordsveien 1002!
Solgt
BUD MOTTATT! Enebolig med 'ALT' på ett plan beliggende på Frostadheia!
Prisantydning950 000 kr
Nøkkelinfo
- Boligtype
- Enebolig
- Eieform
- Eier (Selveier)
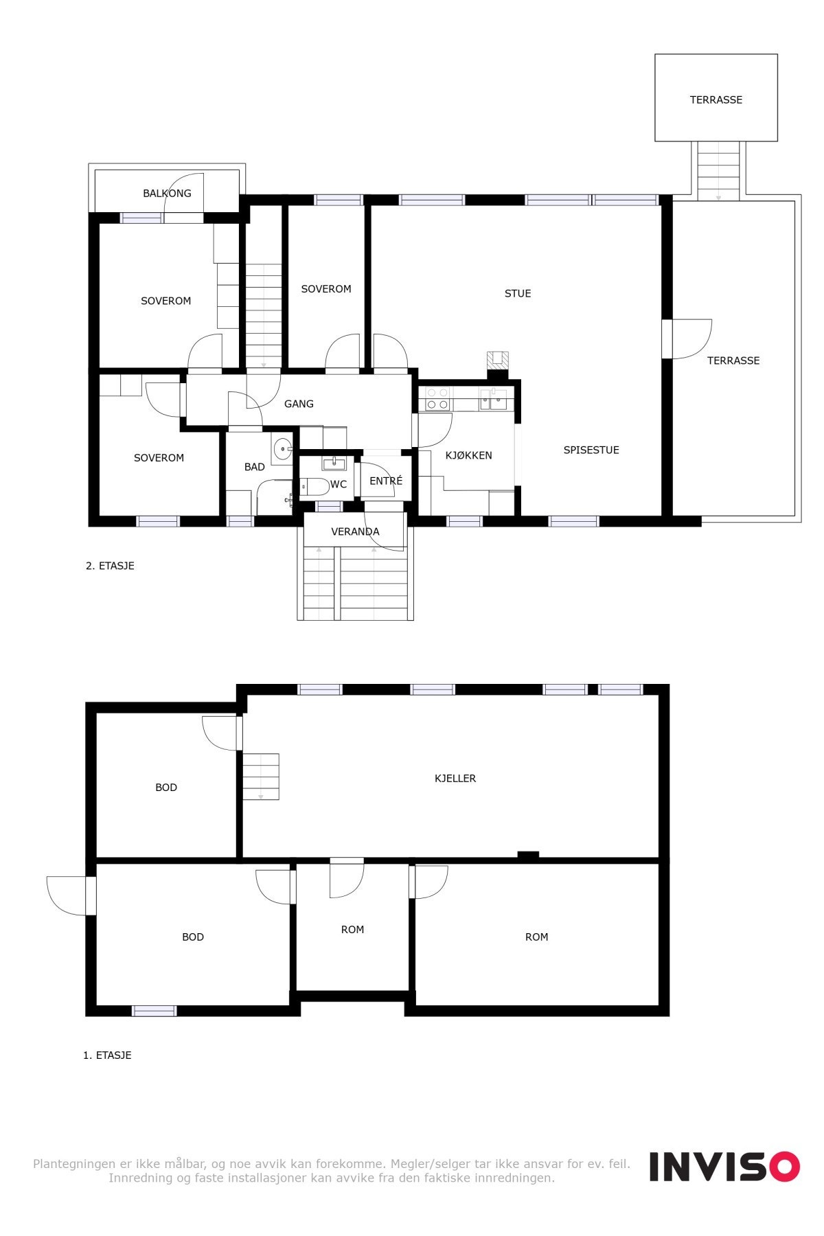
- Soverom
- 3
- Primærrom
- 97 m²
- Bruksareal
- 187 m²
- Byggeår
- 1978
- Energimerking
- E - Gul
- Rom
- 4
- Tomteareal
- 1 800 m² (eiet)
Fasiliteter
Balkong/Terrasse
Kabel-TV
Offentlig vann/kloakk
Peis/Ildsted
Turterreng
Bredbåndstilknytning
Livsløpsstandard
Rolig
Om boligen
EiendomsMegler 1 v/ Morten Høvik har gleden av å presentere Nyjordsveien 1002!
Fin enebolig med livsløpsstandard! Boligen har uinnredet kjeller. Kjellervinduene ble skiftet 2022 og huset ble malt i 2022.
Gruset innkjørsel og parkeringsplass. Øvrige deler av tomten er dekket av plen og diverse beplantninger. Tomten er på 1800m².
Boligen har behov for oppgraderinger.
Velkommen til visning!
Fin enebolig med livsløpsstandard! Boligen har uinnredet kjeller. Kjellervinduene ble skiftet 2022 og huset ble malt i 2022.
Gruset innkjørsel og parkeringsplass. Øvrige deler av tomten er dekket av plen og diverse beplantninger. Tomten er på 1800m².
Boligen har behov for oppgraderinger.
Velkommen til visning!
NB: Knappen for å vise hele beskrivelsen har kun en visuell effekt.
NB: Knappen for å vise hele beskrivelsen har kun en visuell effekt.
Salgsoppgaven beskriver vesentlig og lovpålagt informasjon om eiendommen
Se komplett salgsoppgaveNyttige lenker
Nærområdet
EiendomsMegler 1 Kristiansund
Vi loser deg trygt gjennom hele boligsalget
Prisstatistikk
Nyjordsveien 1002
3 470 klikk
på annonsen
9 793 kr
prisantydning per kvadratmeter
Prisfordeling
Pris per m² ligger 6 207 kr under snittet for eneboliger i Smøla.
Grafen viser antall eneboliger solgt i Smøla siste året fordelt på pris per m² - totalt 17 eneboliger
Antall boliger
Kvadratmeterpris tilsvarer prisantydning pluss fellesgjeld per kvadratmeter (p-rom eller BRA-i). Prisene i grafen er avrundet til nærmeste 1000 kr.
Annonseinformasjon
| FINN-kode | 285648227 |
|---|---|
| Sist endret | 15. mars 2023 12:59 |
| Referanse | 17220425 |
Annonsene kan være mangelfulle i forhold til lovpålagt opplysningsplikt. Før bindende avtale inngås oppfordres interessenter til å innhente komplett informasjon fra meglerforetaket, selger eller utleier.






























