Bildegalleri

dji_fly_20240413_132540_450_1713007634884_photo_optimized
EIDSFOSS - Prosjektert horisontaldelt tomannsbolig under oppføring, stor terrasse og carport. Flott utsikt over Eikeren.
Nøkkelinfo
- Boligtype
- Tomannsbolig
- Eieform
- Eier (Selveier)
- Soverom
- 3
- Primærrom
- 113 m²
- Bruksareal
- 117 m²
- Byggeår
- 2023
- Energimerking
- C - Oransje
- Tomteareal
- 2 286 m² (eiet)
Fasiliteter
Visning
Innhold
Selger kan vurdere innbytte av kjøpers bolig.
Vertikaldelt tomannsbolig over to etasjer:
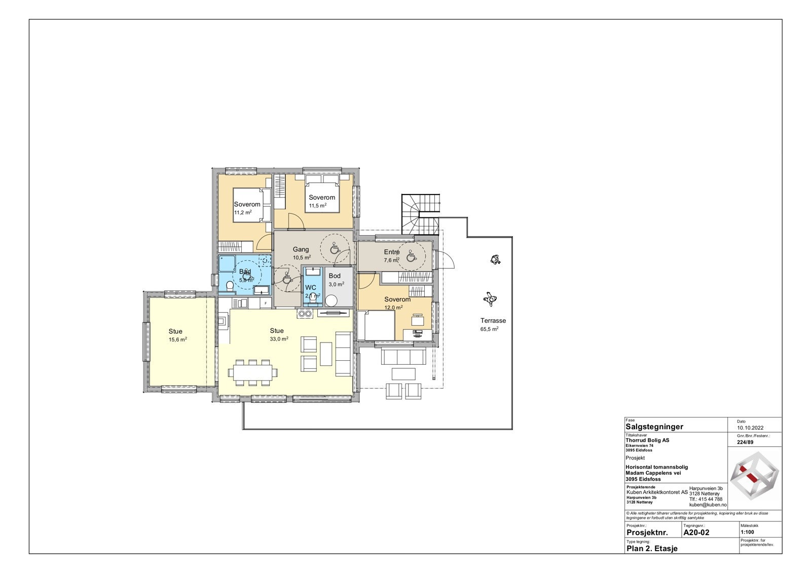
2. Etasje: Entré, gang, 3 soverom, bad, WC, stue og stue/kjøkken. Innvendig bod.
Romslig terrasse på ca. 65 kvm. Carport for en bil og utvendig sportsbod.
Standard
Velkommen til Madam Cappelens vei 28 - Bygging er i gang! Dette er en prosjektert halvpart tomannsbolig med moderne og god standard. Området er solrikt og har flott utsikt over Eikeren. Kun få minutters gange til sentrum av Eidsfoss med landhandler. Kun to minutter å gå til flott badestrand og båtplasser som blir etablert. Hervil det være mulig å få leid dette etter nærmere avtale. Beliggende inntil skogen med flotte turmuligheter sommer som vinter. Ca. 300 meter til barnehage. Barne- og ungdomsskole i Hof, busstransport. Flotte rekreasjonsmuligheter rett utenfor stuedøren. Rammetillatelse er gitt og overtagelse blir gjennomført før julen 2023.
Boligen ligger i 2.etg, går over ett plan og inneholder:
2.Etasje: 2 soverom, bad, wc, stue/kjlkken, stue, entré/gang og bod.
I tillegg medfølger det en parkeringsplass i carport med egen bod.
Boligen har et moderne og tidsriktig preg. 3-stavs parkett i eik med hvite gulvlister. I stue/kjøkken og soverom er det takhøyde fra 240cm og opp til ca. 380cm i mønet. Malte vegger og tak. Ventilasjonsanlegg med varmegjenvinning. Moderne kjøkkeninnredning type Aubo Unik fra Optimera i hvitt, håndtak i stål. Ventilator i stål med direkte utkast. Laminat benkeplater. Hvitevarer følger ikke med som standard, men kan bestilles som tilvalg. Badet er flislagt i flotte gråfarger. Baderomsinnredning i hvitfarge med vask, speil, lys og ett-hånds blandebatteri. Vegghengt toalett og dusjhjørne 90x90cm. Se egen leveransebeskrivelse som følger salgsoppgave.
Mulig med tilvalg for kjøper i en tidlig fase i byggeprosessen.
Oppvarming
Varmekabler på bad og forøvrig elektrisk oppvarming. Det leveres panelovner med ovntermostater i øvrige rom. Det blir levert pipe slik at kjøper kan ettermontere peis/ovn. Kan bestilles som tilvalg. Boligen er bygd i henhold til TEK17 og har behov for lite elektrisitet til oppvarming.
Beliggenhet
Området er solrikt og har flott utsikt over Eikeren. Kun få minutters gange til sentrum av Eidsfoss med landhandler. Kun to minutter å gå til flott badestrand og båtplasser som blir etablert. Her vil det være mulig å få leid dette etter nærmere avtale. Beliggende inntil skogen med flotte turmuligheter sommer som vinter Ca. 300 meter til barnehage. Barne- og ungdomsskole i Hof, busstransport. Flotte rekreasjonsmuligheter rett utenfor stuedøren. Ingen boplikt og mulighet å benytte boligen som ferieleilighet.
Type, eierform og byggeår
Tomannsbolig Selveier, oppført i 2023
Arealer
Primærrom: 113 kvm, Bruksareal: 117 kvm
P-rom kommentar: 2. Etasje: Entré, gang, 3 soverom, bad, WC, stue og stue/kjøkken.
Arealet er kun fra tegninger og ikke kontrollert av megler. Arealene er beregnet og rom er definert etter dagens faktiske bruk, uavhengig av hva som er godkjent av bygningsmyndighetene.
Bebyggelse/byggemåte
Halvpart av tomannsbolig over ett plan. Er oppført av trekonstruksjoner i god kvalitet i henhold til TEK17. Støpt plate på mark med radonsikring. Etasjeskiller består av trebjelkelag med gulvplater. Utvendig terrasserekkverk i lakkert aliminium og glass og trapperekkverk i stålspiler.
Tomt
Det blir gruset vei og areal inn til carport. Områdene rundt er planert med stedlige masser og tilsådd med gress. Terrasseplatting med impregnerte bord på grunn foran stue, terrasser i 2.etg har også dekke av impregnerte terrassebord.
Areal og eierform
Areal: 2 286 kvm, Eierform: Fellestomt
Adkomst
Fra E-18 tar du av i Sande via Hanekleiva mot Eidsfoss/Hoff. Følg Hanekleiva til enden, og ta til høyre inn på Eidsfossveien. Følg denne til Eidsfoss og sving til venstre inn i Markenrudveien og følg denne oppover til Madam Cappelens vei.
Parkering
Parkering for en bil i carport og biloppstilling utenfor.
Konsesjon / Odel
Denne eiendommen er ikke konsesjonspliktig.
Vei/Vann/Avløp
Tilknyttet offentlig vann og avløp via private stikkledninger. Privat vei. Felles pumpekum. Blir pumpet opp til Madam Cappelensvei som er kommunale ledninger.
Kommunale avgifter
Kr. 8 000 pr. år
Stipulert, vil variere ut ifra eget forbruk.
Andre løpende avgifter
Det må påregnes kostnader til strøm, oppvarming, innboforsikring, kommunale avgifter, tv/internett og vedlikehold.
Regulering
Området er regulert til bolig og det vil bli ytterligere bebyggelse i området. Reguleringsplan ligger ved salgsoppgaven. Det blir bygd flere boliger i området.
Brukstillatelse / Ferdigattest
Selger fremskaffer ferdigattest.
Heftelser / Rettigheter
Sameiet har lovbestemt pant for 2G i seksjonen.
Annen nyttig informasjon
Rammetillatelse er gitt og overtagelse blir gjennomført før julen 2023.
Fellesutgifter
Kr 750,-
Fellesutgifter er stipulert og selger tenker at disse skal dekke felles forsikring og vedlikehold/brøyting av vei.
Forretningsfører
Det er ikke lagt opp til forretningsførsel.
Vedtekter ligger vedlagt i prospekt. Det er ikke lagt opp til andre fellesutgifter enn forsikring og snøbrøyting. Det blir opp til Sameiet å bestemme om det skal være andre kostnader som tas inn.
Formuesverdi
Ikke gitt ennå, men er normalt 25-30% av verdi.
Energimerking
Oppvarmingskarakter Oransje - Energikarakter C
Forsikring
Boligen er forsikret i dag av selger, og kjøper må tegne egne forsikringer pr. overtagelsesdato.
Boligselgerforsikring
Selger kan ikke tegne boligselgerforsikring.
Boligkjøperforsikring
Det gjøres oppmerksom på at kjøper har anledning til å tegne Boligkjøperforsikring.
Finansiering
Frem Eiendomsmegling samarbeider med Sparebanken Øst, og kunder som ønsker det kan raskt bli satt i kontakt med en kundebehandler for et uforpliktende lånetilbud. Frem Eiendomsmegling mottar markedsstøtte fra Sparebanken Øst, men det mottas ikke noen form for formidlingsprovisjon for formidling av lånekunder.
Solgt ihht. bustadoppføringsloven
Eiendommen selges iht. bustadoppføringsloven og dens bestemmelser om garanti og sikring av innbetalte midler. Kjøpesummen vil ikke overføres før oppgjørsavdelingen har mottatt ferdigattest/midlertidig brukstillatelse eller nødvendige garantier.
Gjennomføring av oppgjør/transaksjoner
Det skal innbetales 10% av kjøpesum ved underskrift av kjøpekontrakt. Dette sikres med garanti i henhold til Bustadoppføringslovas bestemmelser.
Kjøpesum inkl. omkostninger skal være innbetalt til meglers klientkonto før overtagelse. Innbetalingene skal skje fra kjøpers konto i norsk finansinstitusjon. Det forutsettes at skjøtet skal tinglyses på ny eier og at megler får oversendt pantedokumenter som skal tinglyses snarest mulig etter kontraktsunderskrift.
Etter hvitvaskingsloven er megler forpliktet til å gjennomføre identitetskontroll av partene i en eiendomshandel. Dersom partene ikke oppfyller lovens krav til legitimasjon eller megler har mistanke om en mistenkelig transaksjon, kan megler stanse gjennomføring av transaksjonen. Megler er pliktig til evt. å sende melding til Økokrim uten orientering til partene.
Salgsoppgave
Vi gjør oppmerksom på at denne nettannonsen kun er et utdrag av salgsoppgaven. Alle som vurderer å inngi bud på en eiendom, må sette seg godt inn i hele salgsoppgaven med vedlegg.
Salgsoppgaven beskriver vesentlig og lovpålagt informasjon om eiendommen
Se komplett salgsoppgaveNyttige lenker
Nærområdet

FREM EIENDOMSMEGLING
Annonsene kan være mangelfulle i forhold til lovpålagt opplysningsplikt. Før bindende avtale inngås oppfordres interessenter til å innhente komplett informasjon fra meglerforetaket, selger eller utleier.



































