Bildegalleri

Velkommen til Parkveien 44! Foto: Fotoetcetera AS
Gressvik
Gressvik - Enebolig i barnevennlig og rolig område | Høyt, fritt og fredelig med utsyn og kort vei til "alt"
Prisantydning3 750 000 kr
Nøkkelinfo
- Boligtype
- Enebolig
- Eieform
- Eier (Selveier)
- Soverom
- 3
- Internt bruksareal
- 167 m² (BRA-i)
- Bruksareal
- 186 m²
- Eksternt bruksareal
- 19 m² (BRA-e)
- Balkong/Terrasse
- 35 m² (TBA)
- Byggeår
- 1962
- Rom
- 4
- Tomteareal
- 1 076 m² (eiet)
Fasiliteter
Balkong/Terrasse
Barnevennlig
Garasje/P-plass
Hage
Kjæledyr tillatt
Offentlig vann/kloakk
Peis/Ildsted
Rolig
Sentralt
Om boligen
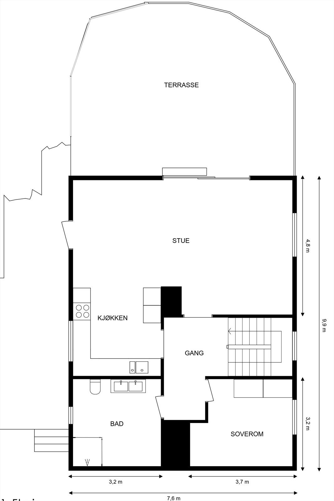
Enebolig over 3 etasjer + garasje.
Inneholder: U.etg; gang, vaskerom, innredet rom og boder. 1.etg; gang, bad, soverom, kjøkken med åpen løsning til stue med utgang til terrasse. 2.etg; trappegang, 2 soverom og stue med utgang til balkong. Garasje ved inngangspartiet.
Boligen er opprinnelig oppført i 1962 og er betydelig oppgradert den senere tid. Ny kjøkkeninnredning i 2014 og nytt bad i 2017.
Fra stuen er det adkomst til sydvendt veranda bygget i 2014, samt østvendt platting. Eiendommen er solrik, ligger høyt og fritt uten innsyn og har utsikt bl.a. mot Fredrikstad sentrum. Består i hovedsak av naturtomt, samt noe opparbeidet med plen og busker, samt treplatting, -asfaltert adkomst.
Kort avstand til barnehage, skoler, idrettsanlegg, dagligvare, Gressvik sentrum, turterreng m.v.
Inneholder: U.etg; gang, vaskerom, innredet rom og boder. 1.etg; gang, bad, soverom, kjøkken med åpen løsning til stue med utgang til terrasse. 2.etg; trappegang, 2 soverom og stue med utgang til balkong. Garasje ved inngangspartiet.
Boligen er opprinnelig oppført i 1962 og er betydelig oppgradert den senere tid. Ny kjøkkeninnredning i 2014 og nytt bad i 2017.
Fra stuen er det adkomst til sydvendt veranda bygget i 2014, samt østvendt platting. Eiendommen er solrik, ligger høyt og fritt uten innsyn og har utsikt bl.a. mot Fredrikstad sentrum. Består i hovedsak av naturtomt, samt noe opparbeidet med plen og busker, samt treplatting, -asfaltert adkomst.
Kort avstand til barnehage, skoler, idrettsanlegg, dagligvare, Gressvik sentrum, turterreng m.v.
NB: Knappen for å vise hele beskrivelsen har kun en visuell effekt.
NB: Knappen for å vise hele beskrivelsen har kun en visuell effekt.
Salgsoppgaven beskriver vesentlig og lovpålagt informasjon om eiendommen
Se komplett salgsoppgaveNærområdet
Aktiv Fredrikstad
Annonseinformasjon
| FINN-kode | 281093606 |
|---|---|
| Sist endret | 12. feb. 2026 08:11 |
| Referanse | 1111230028 |
Annonsene kan være mangelfulle i forhold til lovpålagt opplysningsplikt. Før bindende avtale inngås oppfordres interessenter til å innhente komplett informasjon fra meglerforetaket, selger eller utleier.































