Bildegalleri

Velkommen til Hovseterveien 84D presenteret av Aida Rajic v/EIE eiendomsmegling avd. Røa.
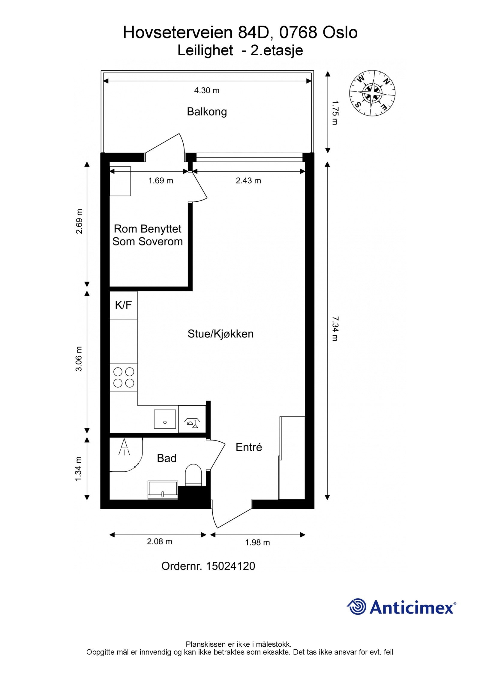
Lys og delikat 1(2)-roms leilighet - Solrik balkong - Heis - Varmtvann inkl. - Bad fra 2018 - Kort vei til det meste
Nøkkelinfo
- Boligtype
- Leilighet
- Eieform
- Andel
- Primærrom
- 31 m²
- Bruksareal
- 31 m²
- Etasje
- 2
- Byggeår
- 1975
- Energimerking
- D - Rød
- Tomteareal
- 2 113 m² (eiet)
Fasiliteter
Om boligen
- Perfekt førstegangskjøp
- Heisadkomst
- Moderne baderom pusset opp i regi av borettslaget i 2018
- Stor nordvestvendt balkong på ca. 7,5 kvm med gode solforhold
- Nyrehabilitert borettslag med bl.a. nye fasader
- Varmtvann, kabel-tv og bredbånd inkl. i felleskostnader
- Kor vei til butikker, t-bane og Røa sentrum
Velkommen til Hovseterveien 84D - en delikat og lys 1(2)-roms leilighet med fin beliggenhet på Hovseter. Leiligheten ligger i byggets 2. etasje med heisadkomst og en nordvestvendt balkong med gode solforhold.
Leiligheten er påkostet med blant annet flislagt bad med røropplegg i 2018, laminatgulv og overflater oppgradert i senere tid. Sentral beliggenhet med marka, butikker, offentlig transport og Røa sentrum m.m. innen gangavstand.
Salgsoppgaven beskriver vesentlig og lovpålagt informasjon om eiendommen
Se komplett salgsoppgaveNærområdet
EIE eiendomsmegling Røa, Skøyen og Ullern
Prisstatistikk
Hovseterveien 84D
på annonsen
prisantydning per kvadratmeter
Prisfordeling
Pris per m² ligger 18 935 kr over snittet for leiligheter i Røa.
Grafen viser antall leiligheter solgt i Røa siste året fordelt på pris per m² - totalt 492 leiligheter
Antall boliger
Kvadratmeterpris tilsvarer prisantydning pluss fellesgjeld per kvadratmeter (p-rom eller BRA-i). Prisene i grafen er avrundet til nærmeste 1000 kr.
Annonseinformasjon
| FINN-kode | 278930098 |
|---|---|
| Sist endret | 11. nov. 2022 12:49 |
| Referanse | 50220239 |
Annonsene kan være mangelfulle i forhold til lovpålagt opplysningsplikt. Før bindende avtale inngås oppfordres interessenter til å innhente komplett informasjon fra meglerforetaket, selger eller utleier.































