Bildegalleri

Velkommen til Musnesbakken 6 presentert av Levi Gout hos Hjem Eiendomsmegling
Solgt
Ta kontakt for visning!
Stor enebolig fra 2019! | Fantastisk utsikt! | 2 bad | 5 soverom | 2 stuer
Prisantydning4 940 000 kr
Nøkkelinfo
- Boligtype
- Enebolig
- Eieform
- Eier (Selveier)
- Soverom
- 5
- Internt bruksareal
- 196 m² (BRA-i)
- Bruksareal
- 205 m²
- Eksternt bruksareal
- 9 m² (BRA-e)
- Balkong/Terrasse
- 39 m² (TBA)
- Etasje
- 2
- Byggeår
- 2019
- Energimerking
- B - Oransje
- Rom
- 6
- Tomteareal
- 1 055 m² (eiet)
Fasiliteter
Balkong/Terrasse
Barnevennlig
Bredbåndstilknytning
Garasje/P-plass
Peis/Ildsted
Rolig
Utsikt
Bademulighet
Fiskemulighet
Turterreng
Om boligen
Velkommen til Solhav boligfelt!
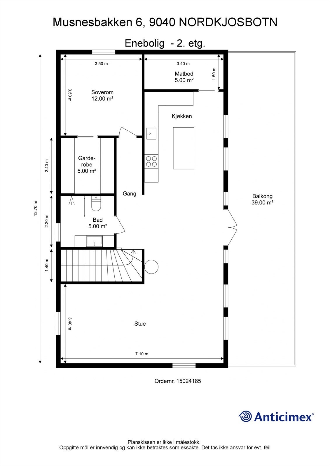
Her finner du en stor enebolig over 2 plan, bygd i 2019!
I første etasje er det en romslig entré, 4 soverom, bad, vaskerom og TV-stue.
Opp trappa kommer du til et stort, lekkert kjøkken med eget matbod i bakkant. Ved kjøkkenet er det plass til en spisegruppe, og man har utgang til en veranda på 39kvm der man har sol til langt på kveld sommerstid!
Videre inn har man en to-soners stue med god plass. I overetasjen er det også et bad samt hovedsoverom med walk in-closet.
Boligen fremstår i sin helhet som svært flott og moderne!
Fra Solhav er det 64 km å kjøre til Tromsø by, samt 6 kilometer til Nordkjosbotn med det du trenger i hverdagen. Bygda har også idrettsanlegg, idrettshall, dagligvare mm.
Visning etter avtale, ta kontakt med megler på 902 65 250.
Her finner du en stor enebolig over 2 plan, bygd i 2019!
I første etasje er det en romslig entré, 4 soverom, bad, vaskerom og TV-stue.
Opp trappa kommer du til et stort, lekkert kjøkken med eget matbod i bakkant. Ved kjøkkenet er det plass til en spisegruppe, og man har utgang til en veranda på 39kvm der man har sol til langt på kveld sommerstid!
Videre inn har man en to-soners stue med god plass. I overetasjen er det også et bad samt hovedsoverom med walk in-closet.
Boligen fremstår i sin helhet som svært flott og moderne!
Fra Solhav er det 64 km å kjøre til Tromsø by, samt 6 kilometer til Nordkjosbotn med det du trenger i hverdagen. Bygda har også idrettsanlegg, idrettshall, dagligvare mm.
Visning etter avtale, ta kontakt med megler på 902 65 250.
NB: Knappen for å vise hele beskrivelsen har kun en visuell effekt.
NB: Knappen for å vise hele beskrivelsen har kun en visuell effekt.
Salgsoppgaven beskriver vesentlig og lovpålagt informasjon om eiendommen
Se komplett salgsoppgaveNærområdet
Hjem Eiendomsmegling
Annonseinformasjon
| FINN-kode | 277709483 |
|---|---|
| Sist endret | 09. feb. 2026 16:44 |
| Referanse | 1-0352/22 |
Annonsene kan være mangelfulle i forhold til lovpålagt opplysningsplikt. Før bindende avtale inngås oppfordres interessenter til å innhente komplett informasjon fra meglerforetaket, selger eller utleier.



















































