Bildegalleri

Velkommen til Bentsegata 6B!
Solgt
Sagene
2 (3) -roms | Oppussingsobjekt |Ny balkong 2021 | Perfekt utleiemulighet
Prisantydning3 800 000 kr
Nøkkelinfo
- Boligtype
- Leilighet
- Eieform
- Eier (Selveier)
- Soverom
- 1
- Primærrom
- 50 m²
- Bruksareal
- 50 m²
- Etasje
- 2
- Byggeår
- 1939
- Energimerking
- F - Mørkegrønn
- Rom
- 2
- Tomteareal
- 780 m² (eiet)
Fasiliteter
Balkong/Terrasse
Heis
Kjæledyr tillatt
Offentlig vann/kloakk
Rolig
Sentralt
Vaktmester-/vektertjeneste
Om boligen
Velkommen til Bentsegata 6B!
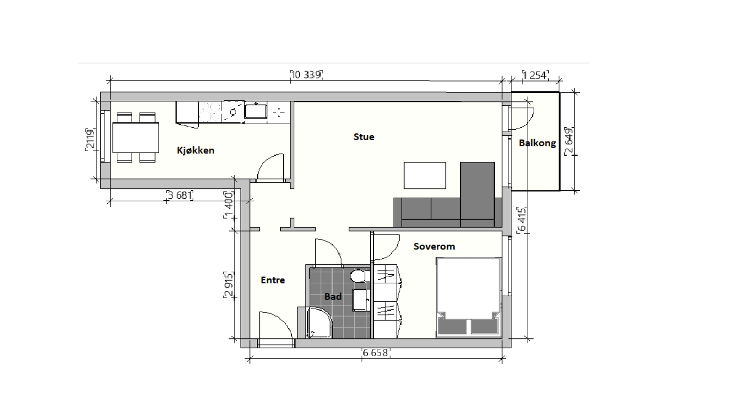
Et fantastisk oppussingsobjekt i form av en 2-roms selveierleilighet med mulighet for å bli omgjort til 3-roms. Leiligheten inneholder entre, bad, separat kjøkken, stue med adkomst til balkong og soverom. Boligen ligger sentralt til på Sagene, men skjermet for direkte støy og bytrafikk. Like utenfor døren tilbys en rekke restauranter, dagligvareforretninger og grøntområder for ulike rekreasjonsmuligheter.
Høydepunkter:
- Mulighet for 2 soverom
- Balkong fra 2021
- Varmtvann og fyring inkl.
- Bad fra 2011
- Medfølger 2 boder
- Gode utleiemuligheter
Ta kontakt med Nini Tran for en hyggelig boligprat!
Et fantastisk oppussingsobjekt i form av en 2-roms selveierleilighet med mulighet for å bli omgjort til 3-roms. Leiligheten inneholder entre, bad, separat kjøkken, stue med adkomst til balkong og soverom. Boligen ligger sentralt til på Sagene, men skjermet for direkte støy og bytrafikk. Like utenfor døren tilbys en rekke restauranter, dagligvareforretninger og grøntområder for ulike rekreasjonsmuligheter.
Høydepunkter:
- Mulighet for 2 soverom
- Balkong fra 2021
- Varmtvann og fyring inkl.
- Bad fra 2011
- Medfølger 2 boder
- Gode utleiemuligheter
Ta kontakt med Nini Tran for en hyggelig boligprat!
NB: Knappen for å vise hele beskrivelsen har kun en visuell effekt.
NB: Knappen for å vise hele beskrivelsen har kun en visuell effekt.
Salgsoppgaven beskriver vesentlig og lovpålagt informasjon om eiendommen
Se komplett salgsoppgaveNyttige lenker
Nærområdet
EiendomsMegler 1 Torshov
Vi loser deg trygt gjennom hele boligsalget
Prisstatistikk
Bentsegata 6B
8 650 klikk
på annonsen
78 220 kr
prisantydning per kvadratmeter
Prisfordeling
Pris per m² ligger 31 780 kr under snittet for leiligheter i Sagene - Torshov.
Grafen viser antall leiligheter solgt i Sagene - Torshov siste året fordelt på pris per m² - totalt 2 384 leiligheter
Antall boliger
Kvadratmeterpris tilsvarer prisantydning pluss fellesgjeld per kvadratmeter (p-rom eller BRA-i). Prisene i grafen er avrundet til nærmeste 1000 kr.
Annonseinformasjon
| FINN-kode | 276099664 |
|---|---|
| Sist endret | 20. mars 2023 10:21 |
| Referanse | 3225220088 |
Annonsene kan være mangelfulle i forhold til lovpålagt opplysningsplikt. Før bindende avtale inngås oppfordres interessenter til å innhente komplett informasjon fra meglerforetaket, selger eller utleier.































