Bildegalleri

Velkommen til Hovseterveien 84D - presentert av Eiendomsmegler Aida Rajic ved EIE Eiendomsmegling.
Stor 2,5-roms toppleilighet med balkong og garasjeplass - Ettermiddag/kveldssol - TV, internett og varmtvann inkl.
Nøkkelinfo
- Boligtype
- Leilighet
- Eieform
- Andel
- Soverom
- 1
- Primærrom
- 51 m²
- Bruksareal
- 53 m²
- Etasje
- 9
- Byggeår
- 1975
- Energimerking
- E - Rød
- Tomteareal
- 2 113 m² (eiet)
Fasiliteter
Om boligen
Velkommen til Hovseterveien 84D - presentert av Eiendomsmegler Aida Rajic ved EIE Eiendomsmegling.
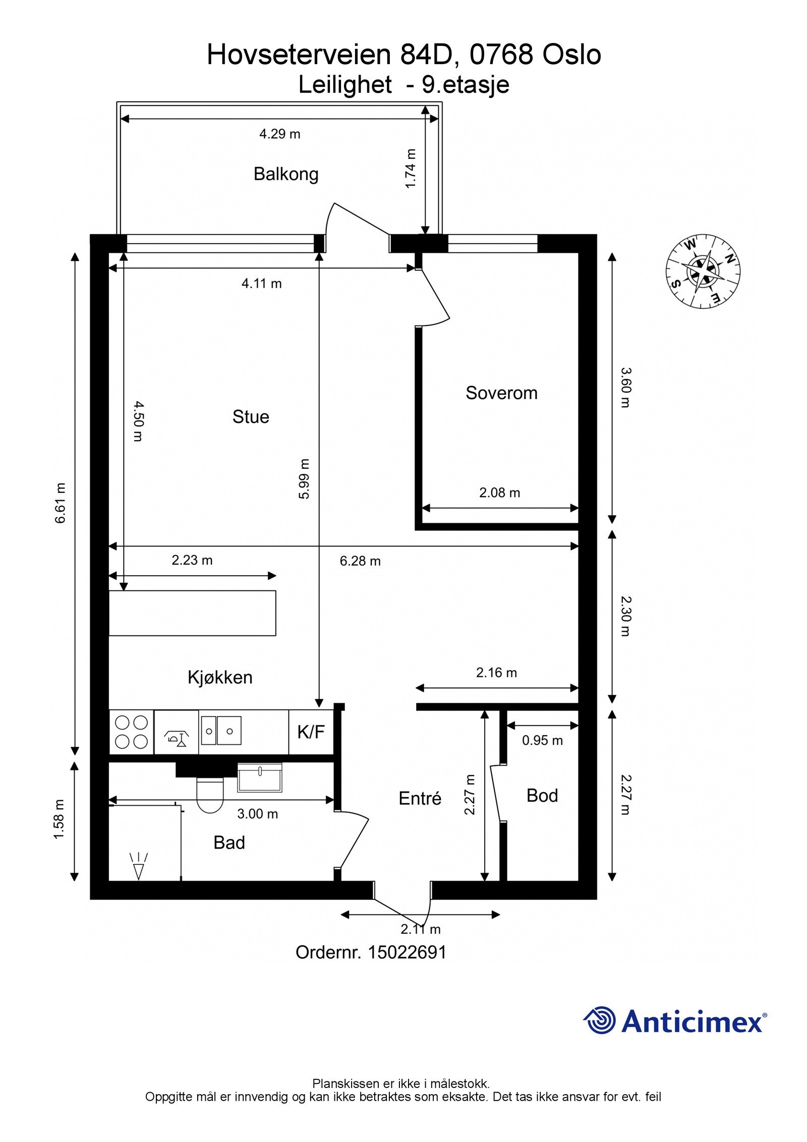
En flott og stor 2,5- roms leilighet med god planløsning i et veletablert og sentrumsnært område. Her har du en optimal intern beliggenhet i 9.etasje, med fritt utsyn og gode solforhold.
Her vil du bo med marka som nærmeste nabo, samtidig som du har kort vei til kollektivtransport og butikker.
- Totalrehabilitert bad inkl. rør fra 2018
- Mulighet for kontor/ekstra soveplass i alkove
- Nordvest-vendt balkong på 7,5 kvm
- Ettermiddag- og kveldssol
- Trappefritt med heis
- TV, internett og varmtvann inkl.
- Praktisk innvendig bod/walk-in
- Garasjeplass
- Nyrehabilitert borettslag med bl.a nye fasader, vinduer og balkonger
- Lave kjøpsomkostninger, ingen dok.avgift
PRIVATVISNING? Ta kontakt med Eiendomsmegler Aida Rajic.
Salgsoppgaven beskriver vesentlig og lovpålagt informasjon om eiendommen
Se komplett salgsoppgaveNærområdet
EIE eiendomsmegling Røa, Skøyen og Ullern
Prisstatistikk
Hovseterveien 84D
på annonsen
prisantydning per kvadratmeter
Prisfordeling
Pris per m² ligger 2 746 kr under snittet for leiligheter i Røa.
Grafen viser antall leiligheter solgt i Røa siste året fordelt på pris per m² - totalt 490 leiligheter
Antall boliger
Kvadratmeterpris tilsvarer prisantydning pluss fellesgjeld per kvadratmeter (p-rom eller BRA-i). Prisene i grafen er avrundet til nærmeste 1000 kr.
Annonseinformasjon
| FINN-kode | 275141502 |
|---|---|
| Sist endret | 13. okt. 2022 13:54 |
| Referanse | 50220205 |
Annonsene kan være mangelfulle i forhold til lovpålagt opplysningsplikt. Før bindende avtale inngås oppfordres interessenter til å innhente komplett informasjon fra meglerforetaket, selger eller utleier.

































