Bildegalleri

Nannas vei 1 er en lekker enebolig fra 2020 med moderne stil.
Lekker, påkostet enebolig fra 2020 m/flott, solrikt uteområde og carport. Store vindusflater, 4 soverom og stue m/peis
Nøkkelinfo
- Boligtype
- Enebolig
- Eieform
- Eier (Selveier)
- Soverom
- 4
- Primærrom
- 144 m²
- Bruksareal
- 150 m²
- Byggeår
- 2020
- Energimerking
- C - Oransje
- Tomteareal
- 430 m² (eiet)
Om boligen
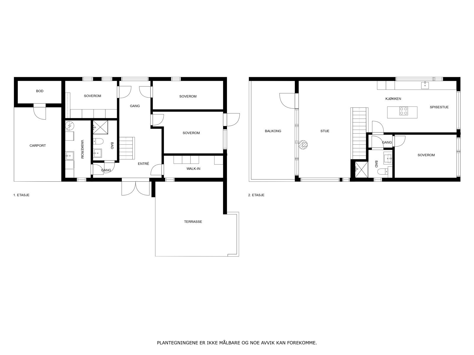
Nannas vei 1 er en lekker enebolig fra 2020 med moderne stil. Boligen har en flott opparbeidet tomt med asfaltert gårdsplass, carport og stor hage gjerdet inn av tujahekk. I tillegg har boligen en sørvendt terrasseplatting og en vestvendt, overbygd veranda - her er alt tilrettelagt for å kunne nyte solen gjennom hele dagen.
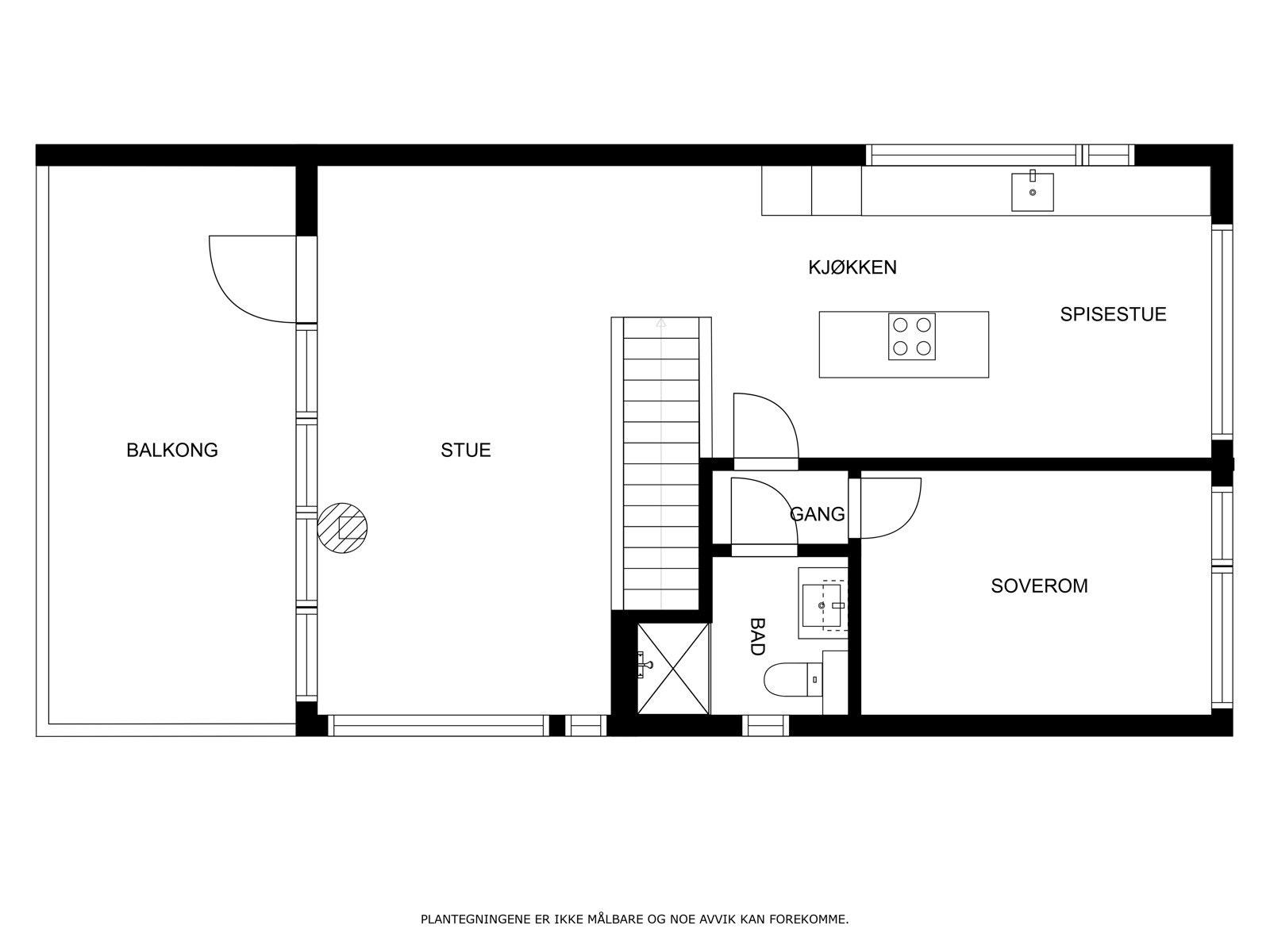
Boligen er over to plan og har gjennomført stil med enstavs laminatgulv, vegger malt i delikate farger og store vindusflater i nesten alle rom. I første etasje er det en storslått hall med dør inn til et velinnredet garderoberom. Videre har boligen to delikate bad, et praktisk vaskerom og fire soverom. Stuen har gulv-til-tak vinduer og en peisovn som varmer godt på kalde dager. Kjøkkenet er nydelig, har integrerte hvitevarer og stor øy med spiseplass. Velkommen!
Salgsoppgaven beskriver vesentlig og lovpålagt informasjon om eiendommen
Se komplett salgsoppgaveNyttige lenker
Nærområdet

PrivatMegleren Tønsberg
Prisstatistikk
Nannas vei 1
på annonsen
prisantydning per kvadratmeter
Prisfordeling
Pris per m² ligger 13 541 kr over snittet for eneboliger i Tønsberg.
Grafen viser antall eneboliger solgt i Tønsberg siste året fordelt på pris per m² - totalt 440 eneboliger
Antall boliger
Kvadratmeterpris tilsvarer prisantydning pluss fellesgjeld per kvadratmeter (p-rom eller BRA-i). Prisene i grafen er avrundet til nærmeste 1000 kr.
Annonseinformasjon
| FINN-kode | 272903575 |
|---|---|
| Sist endret | 05. des. 2022 15:34 |
| Referanse | 13220217 |
Annonsene kan være mangelfulle i forhold til lovpålagt opplysningsplikt. Før bindende avtale inngås oppfordres interessenter til å innhente komplett informasjon fra meglerforetaket, selger eller utleier.



















































