Bildegalleri

Velkommen til visning i Frognerseterveien 62D
Innholdsrikt enderekkehus i barnevennlige og frodige omgivelser | Solrike uteplasser | 2 peiser | Garasje
Nøkkelinfo
- Boligtype
- Rekkehus
- Eieform
- Eier (Selveier)
- Soverom
- 4
- Primærrom
- 174 m²
- Bruksareal
- 190 m²
- Byggeår
- 1982
- Energimerking
- F - Oransje
- Rom
- 5
- Tomteareal
- 248 m² (eiet)
Fasiliteter
Om boligen
Velkommen til et stort og innholdsrikt enderekkehus med god intern beliggenhet presentert av Andreas Bock ved EIE eiendomsmegling
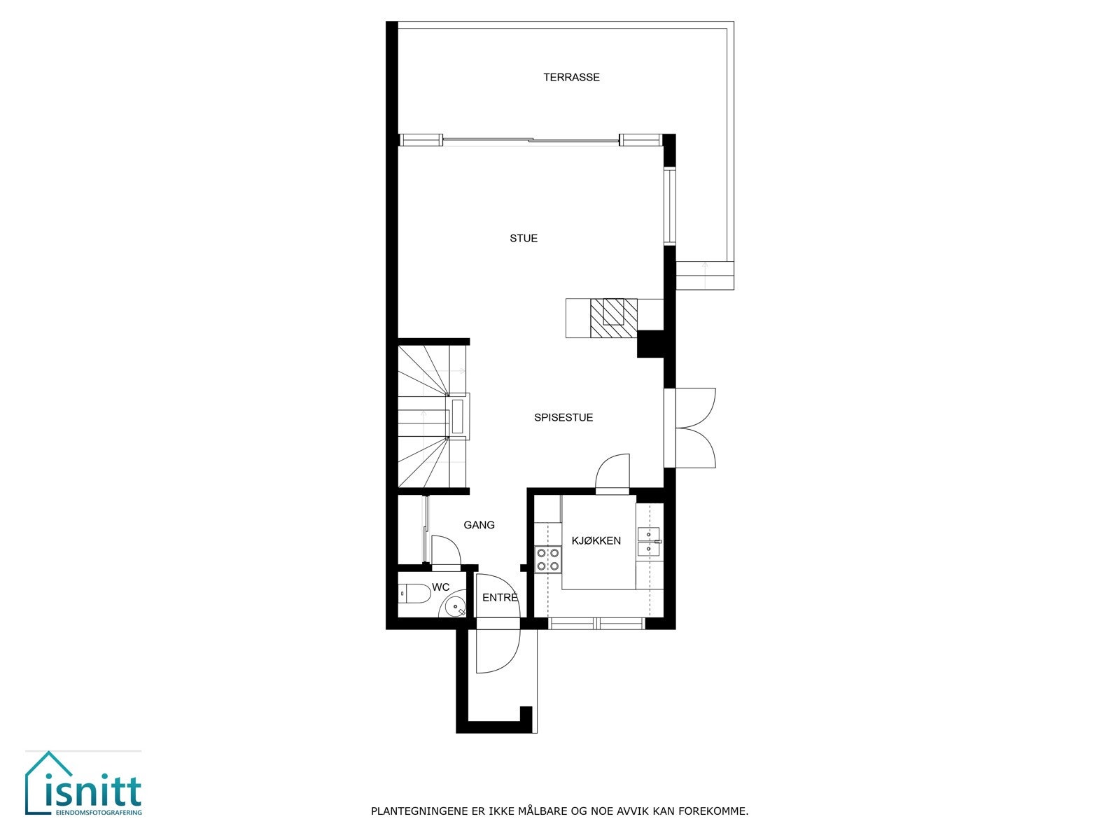
Innholdsrikt og hyggelig enderekkehus beliggende i et ettertraktet og barnevennlig område på Svendstuen/Slemdal. Boligen går over 3 plan + en innredet loftsetasje. Videre har boligen et stort potensial og er omkranset av grønne, hyggelige omgivelser. Denne bør sees!
- Biloppstillingsplass rett utenfor inngangsdøren
- Utgang fra stue til en stor vestvendt veranda
- Lufteveranda
- Bolig over 3 plan + innredet loftsetasje
- Hyggelig kjellerstue
- Naturskjønne omgivelser
- Kort vei til skoler, barnehager, off. kom. og marka
- God lagringsplass i kjeller og utebod
- 4 gode soverom
- Skjermet uteplass mot sydvest
- Gode solforhold
- Barnevennlige omgivelser
- Godt nabomiljø
- Garasje med elbil lader
- 2 peiser
Salgsoppgaven beskriver vesentlig og lovpålagt informasjon om eiendommen
Se komplett salgsoppgaveNærområdet
EIE eiendomsmegling Bærum
Prisstatistikk
Frognerseterveien 62D
på annonsen
prisantydning per kvadratmeter
Prisfordeling
Pris per m² ligger 16 472 kr under snittet for rekkehus i Vinderen.
Grafen viser antall rekkehus solgt i Vinderen siste året fordelt på pris per m² - totalt 52 rekkehus
Antall boliger
Kvadratmeterpris tilsvarer prisantydning pluss fellesgjeld per kvadratmeter (p-rom eller BRA-i). Prisene i grafen er avrundet til nærmeste 1000 kr.
Annonseinformasjon
| FINN-kode | 271220859 |
|---|---|
| Sist endret | 26. jan. 2023 22:04 |
| Referanse | 36220241 |
Annonsene kan være mangelfulle i forhold til lovpålagt opplysningsplikt. Før bindende avtale inngås oppfordres interessenter til å innhente komplett informasjon fra meglerforetaket, selger eller utleier.



















































