Bildegalleri

Her er det mulig å oppholde seg på solfylte dager eller på sommerkvelder ved å sette opp diverse utebelysning.
Lekker bolig fra 2011 med sjøutsikt og innvendig garasje med 2 plasser- Mulighet for kjøp av bruksrett til strandparsell
Nøkkelinfo
- Boligtype
- Tomannsbolig
- Eieform
- Eier (Selveier)
- Soverom
- 5
- Primærrom
- 285 m²
- Bruksareal
- 296 m²
- Etasje
- 4
- Byggeår
- 2011
- Energimerking
- C - Mørkegrønn
- Rom
- 7
- Tomteareal
- 1 422 m² (eiet)
Fasiliteter
Om boligen
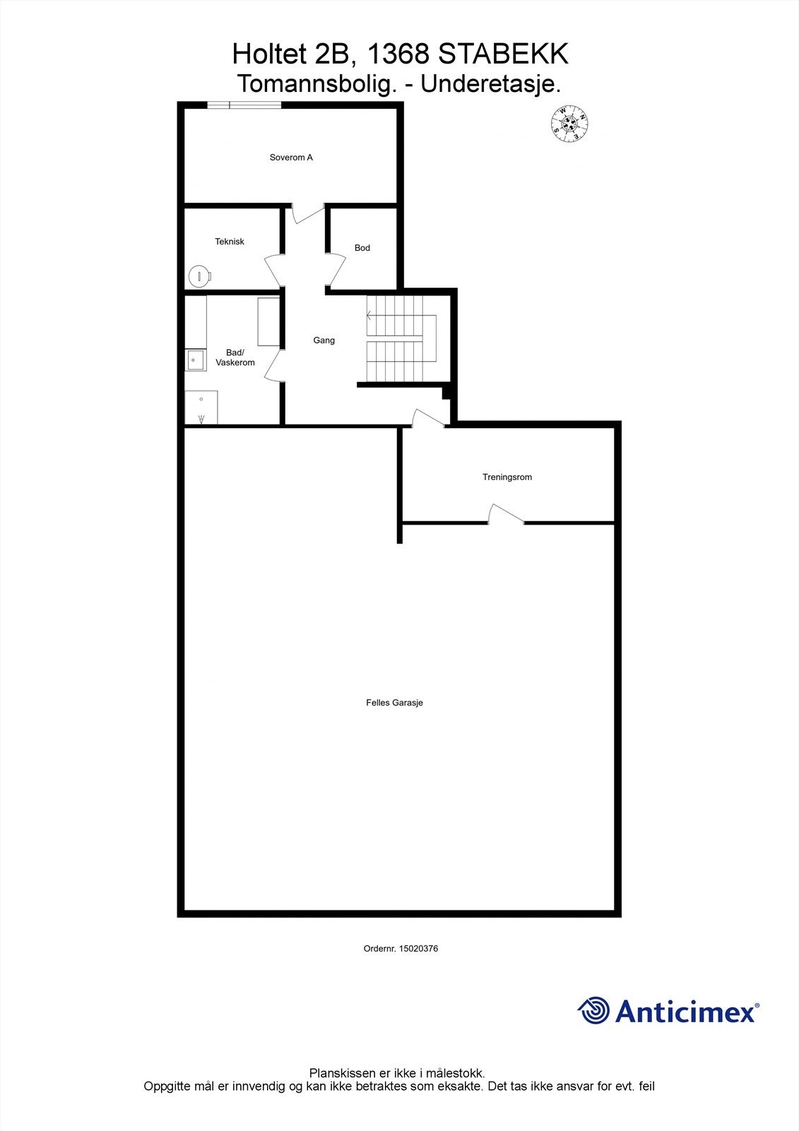
- Bolig fra 2011
- Det er mulighet for å kjøpe bruksrett til strandparsell med brygge og båtplass, mot tillegg i prisen da denne selges separat.
- Stor takterrasse på ca 27 m2.
- Vannbåren varme.
- Sjøutsikt.
- 4 bad.
- Innredet med 5 soverom + stor bod med vindu innredet som soverom.
- Potensiell oppside med forbedringer i lokal trafikkavvikling ved E18
Salgsoppgaven beskriver vesentlig og lovpålagt informasjon om eiendommen
Se komplett salgsoppgaveNyttige lenker
Nærområdet
Krogsveen Sandvika
Prisstatistikk
Holtet 2B
på annonsen
prisantydning per kvadratmeter
Prisfordeling
Pris per m² ligger 12 544 kr under snittet for tomannsboliger i Bærum.
Grafen viser antall tomannsboliger solgt i Bærum siste året fordelt på pris per m² - totalt 219 tomannsboliger
Antall boliger
Kvadratmeterpris tilsvarer prisantydning pluss fellesgjeld per kvadratmeter (p-rom eller BRA-i). Prisene i grafen er avrundet til nærmeste 1000 kr.
Annonseinformasjon
| FINN-kode | 270140722 |
|---|---|
| Sist endret | 24. sep. 2023 17:19 |
| Referanse | KR11.22136 |
Annonsene kan være mangelfulle i forhold til lovpålagt opplysningsplikt. Før bindende avtale inngås oppfordres interessenter til å innhente komplett informasjon fra meglerforetaket, selger eller utleier.


































































