Bildegalleri

Velkommen til Danielstrøa 12 D - En moderne familiebolig med lekker standard.
Solgt
Hommelvik
Svært flott vertikaldelt tomannsbolig fra 2020| TG0/1 på alle punkter | Carport | 3 soverom og 2 bad | Vaskerom
Prisantydning4 450 000 kr
Nøkkelinfo
- Boligtype
- Tomannsbolig
- Eieform
- Eier (Selveier)
- Soverom
- 3
- Primærrom
- 96 m²
- Bruksareal
- 98 m²
- Byggeår
- 2020
- Energimerking
- B - Oransje
- Rom
- 4
- Tomteareal
- 929 m² (eiet)
Fasiliteter
Barnevennlig
Balkong/Terrasse
Garasje/P-plass
Kabel-TV
Offentlig vann/kloakk
Parkett
Peis/Ildsted
Turterreng
Utsikt
Bredbåndstilknytning
Livsløpsstandard
Moderne
Rolig
Balansert ventilasjon
Om boligen
Velkommen til Danielstrøa 12 D - en moderne vertikaldelt tomannsbolig fra 2020 med fin beliggenhet i Hommelvik.
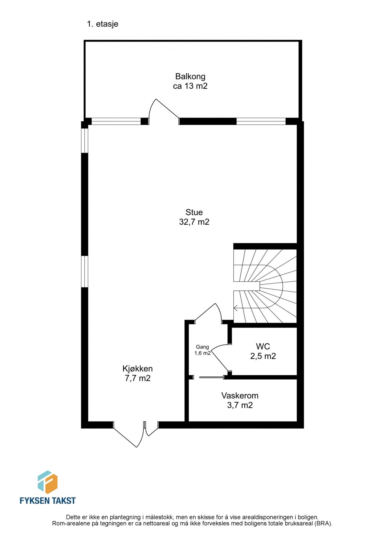
Boligen holder en gjennomgående fin og moderne standard, hvor bad og kjøkken er vurdert til tilstandsgrad 0 av takstmann. Boligen byr på en åpen stue-/kjøkken løsning, tre soverom, et bad, et vaskerom og et toalettrom. Videre får du fine og solrike uteområder og en carport. Boligen ligger i et familievennlig nabolag, med kort vei til en rekke fasiliteter som skole, barnehage, kollektivtransport og dagligvare.
Boligen har flere gode kvaliteter å trekke frem, som blant annet:
- Boligen er mye oppgradert fra prosjektert standard (kontakt megler for komplett liste)
- Bad og kjøkken vurdert til tilstandsgrad 0 av takstmann
- Carport og oppstillingsplasser
- EL-billader
- Tre gode soverom
- Praktisk vaskerom
- Lekkert moderne bad med bl.a badekar
- Fine uteområder
- Kort vei til bussholdeplass
Velkommen til en hyggelig visning!
Boligen holder en gjennomgående fin og moderne standard, hvor bad og kjøkken er vurdert til tilstandsgrad 0 av takstmann. Boligen byr på en åpen stue-/kjøkken løsning, tre soverom, et bad, et vaskerom og et toalettrom. Videre får du fine og solrike uteområder og en carport. Boligen ligger i et familievennlig nabolag, med kort vei til en rekke fasiliteter som skole, barnehage, kollektivtransport og dagligvare.
Boligen har flere gode kvaliteter å trekke frem, som blant annet:
- Boligen er mye oppgradert fra prosjektert standard (kontakt megler for komplett liste)
- Bad og kjøkken vurdert til tilstandsgrad 0 av takstmann
- Carport og oppstillingsplasser
- EL-billader
- Tre gode soverom
- Praktisk vaskerom
- Lekkert moderne bad med bl.a badekar
- Fine uteområder
- Kort vei til bussholdeplass
Velkommen til en hyggelig visning!
NB: Knappen for å vise hele beskrivelsen har kun en visuell effekt.
NB: Knappen for å vise hele beskrivelsen har kun en visuell effekt.
Salgsoppgaven beskriver vesentlig og lovpålagt informasjon om eiendommen
Se komplett salgsoppgaveNyttige lenker
Nærområdet
EiendomsMegler 1 Grilstadporten
Vi loser deg trygt gjennom hele boligsalget
Prisstatistikk
Danielstrøa 12 D
6 003 klikk
på annonsen
46 354 kr
prisantydning per kvadratmeter
Prisfordeling
Pris per m² ligger 5 354 kr over snittet for tomannsboliger i Malvik.
Grafen viser antall tomannsboliger solgt i Malvik siste året fordelt på pris per m² - totalt 20 tomannsboliger
Antall boliger
Kvadratmeterpris tilsvarer prisantydning pluss fellesgjeld per kvadratmeter (p-rom eller BRA-i). Prisene i grafen er avrundet til nærmeste 1000 kr.
Annonseinformasjon
| FINN-kode | 269570320 |
|---|---|
| Sist endret | 11. apr. 2023 16:06 |
| Referanse | 33220130 |
Annonsene kan være mangelfulle i forhold til lovpålagt opplysningsplikt. Før bindende avtale inngås oppfordres interessenter til å innhente komplett informasjon fra meglerforetaket, selger eller utleier.










































