Bildegalleri

Velkommen til Hovseterveien 68F!
Lekker, stor og gjennomgående 2-roms med nordvestvendt terrasse - Ny i 2021 - Kort vei til T-bane, marka og sentrum
Nøkkelinfo
- Boligtype
- Leilighet
- Eieform
- Andel
- Soverom
- 1
- Primærrom
- 56 m²
- Bruksareal
- 60 m²
- Byggeår
- 1975
- Energimerking
- E - Rød
- Rom
- 2
- Tomteareal
- 1 675 m² (eiet)
- Boligselgerforsikring
- Ja
Fasiliteter
Om boligen
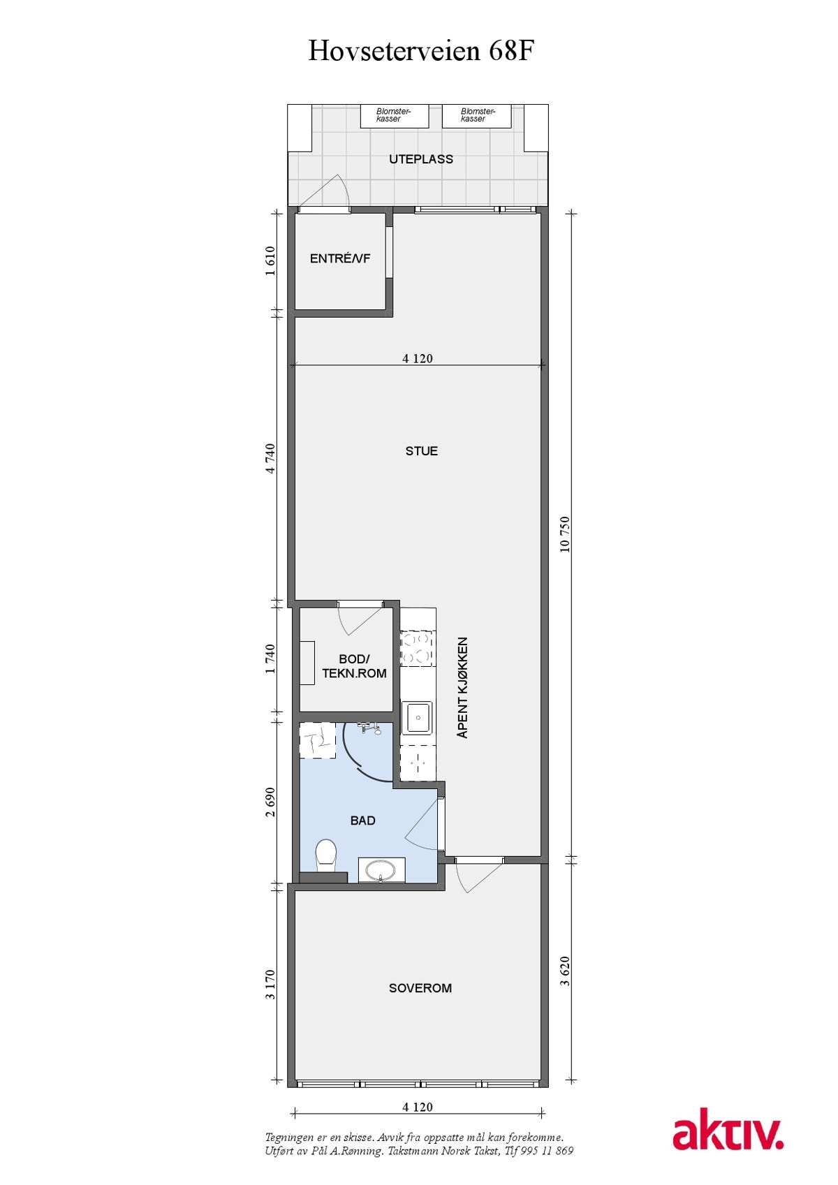
Velkommen til Hovseterveien 68F! En nyere og innflyttingsklar andelsleilighet med gangavstand til butikker, t-bane og buss.
- Inneholder stue, kjøkken, bad, entré, innvendig bod og soverom
- Gjennomgående planløsning
- Egen inngang
- Leiligheten er ny fra 2021
- Nyboliggaranti
- Praktisk innvendig bod
- Nordvestvendt uteplass med ettermiddagssol
- Bod i kjeller
- Varmtvann og kabel-TV/ internett inkludert i husleien
- Nærbutikken, grønnsaksforhandleren og den lokale pizzabakeren rett utenfor døren
- Gangavstand til Røa Bad, Røa Senter og nye Røa torg med alt av fasiliteter
- T-bane/buss/nattbuss/flybuss ca. 350m fra leiligheten
Velkommen til visning!
Salgsoppgaven beskriver vesentlig og lovpålagt informasjon om eiendommen
Se komplett salgsoppgaveNyttige lenker
Nærområdet
Aktiv Gamle Oslo/Bjørvika
Prisstatistikk
Hovseterveien 68F
på annonsen
prisantydning per kvadratmeter
Prisfordeling
Pris per m² ligger 17 304 kr under snittet for leiligheter i Røa.
Grafen viser antall leiligheter solgt i Røa siste året fordelt på pris per m² - totalt 490 leiligheter
Antall boliger
Kvadratmeterpris tilsvarer prisantydning pluss fellesgjeld per kvadratmeter (p-rom eller BRA-i). Prisene i grafen er avrundet til nærmeste 1000 kr.
Annonseinformasjon
| FINN-kode | 262939970 |
|---|---|
| Sist endret | 02. juli 2022 11:24 |
| Referanse | 18220221 |
Annonsene kan være mangelfulle i forhold til lovpålagt opplysningsplikt. Før bindende avtale inngås oppfordres interessenter til å innhente komplett informasjon fra meglerforetaket, selger eller utleier.





























