Bildegalleri

Velkommen til Vestre Tunhøgda 12 - En pen 2-roms leilighet beliggende på populære Charlottenlund!
Pen 2-roms i høy 1. etasje - Kjøkken 2021 - Vestvendt balkong m/gode solforhold og nedgang til plen - Rehab. bygg i 2016
Nøkkelinfo
- Boligtype
- Leilighet
- Eieform
- Andel
- Soverom
- 1
- Primærrom
- 43 m²
- Bruksareal
- 43 m²
- Etasje
- 1
- Byggeår
- 1969
- Energimerking
- G - Oransje
- Rom
- 2
- Tomt
- Eiet
Fasiliteter
Kort om eiendommen
EiendomsMegler 1 v/Frank Robert Bae har gleden av å presentere en pen 2-roms leilighet beliggende på populære Charlottenlund!
Store vindusflater gir et godt lysinnslipp, som sammen med en god planløsning bidrar til leilighetens lette romfølelse. Dette forsterkes ytterligere av skyvedøren som gjør at balkongen oppleves som en forlengelse av stuen på finværsdager. Balkongen er i tillegg vestvendt slik at man nyter svært gode solforhold, og her sitter man skjermet til med god plass for utemøblement. Med beliggenhet i høy 1. etasje har man også direkte nedgang til stor plen - ideelt for deg som har barn eller dyr.
Borettslaget var i 2015/2016 gjenstand for omfattende rehabilitering. Blant annet er alle balkongene bygd ut med 90 cm, nye vinduer og balkongdører er installert, fasadekledningen er ny, vegger og tak er etterisolert og ventilasjonssystemet er utbedret.
Kvaliteter verdt å fremheve:
- Effektiv planløsning
- Nytt kjøkken i 2021, samt ny varmtvannstank, waterguard og egen stoppekran
- Ny baderomsinnredning og dusjkabinett i 2016
- Nytt gulv på soverom i 2019 og på stue/kjøkken i 2021
- Vedovn på stue
- Felleskostnader inkl. både kabel-TV, internett og kommunale avgifter
- Sikringsskapet er oppgradert med automatsikringer
- To eksterne boder; én i kjeller, og én i trappeoppgang
- Kort avstand til skole, dagligvarebutikk, kollektivtrafikk og øvrige servicefasiliteter
Velkommen til en hyggelig visning!
Innhold
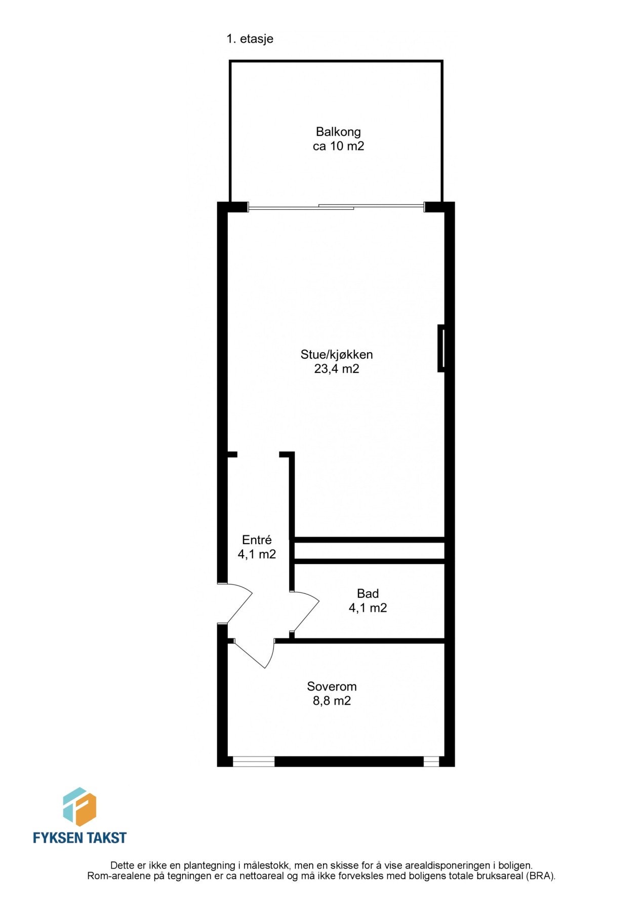
1. etasje.
Primærrom: Entré, bad, soverom og stue/kjøkken.
- To eksterne boder; én i kjeller, og én i trappeoppgang
Standard
Entré:
Flis på gulv, malte panelplater på vegger, malt panelhimling.
Bad:
Flis på gulv, flis og malt strie på vegger, malt betonghimling.
Innredning: Dusjkabinett. Kran og avløp for vaskemaskin. Reflektorovn. Gulvmontert WC.
Baderomsinnredning: Servant med underskap og speilskap.
Soverom:
Klikklaminat på gulv med kuldeskjermende underlag, malte panelplater på vegger, malt himling.
Innredning: Skyvedørsgarderobe.
Stue/kjøkken:
Klikklaminat på gulv med kuldeskjermende underlag, malt panel på vegger, malte takplater.
Innredning: Kjøkkeninnredning med plane fronter, folierte skrog og laminerte benkeplater. Ventilator. Kran og avløp for oppvaskmaskin. Varmtvannsbereder.
Vedovn og plassbygd bokhylle (med lydisolering bak).
Oppvarming
Boligen varmes opp ved elektrisitet og vedfyring
Beskaffenhet
Opparbeidet hage med plen og prydbusker.
Beliggenhet
Området består i dag i all hovedsak av tett trehusbebyggelse, hovedsakelig bestående av eneboliger, rekkehus og leilighetsbebyggelse. Fra tidlig 1960-tallet og frem til midten av 1970-tallet ble området ytterligere fortettet med blokkbebyggelse.
Det er et godt servicetilbud i området, med blant annet flere dagligvarebutikker som Rema 1000, Prix og Bunnpris, samt frisørsalonger og treningssenter. Jakobsli er svært barnevennlig og det er kort vei til barne-, ungdoms- og videregående skole. Videre er det et rikt idrettsmiljø gjennom Charlottenlund Sportsklubb som har et flott idrettsanlegg med idrettshall, kunstgressbaner, ballbinger og treningssenter, noe som gir et allsidig tilbud til alle aldersgrupper.
Fra Jakobsli er det kort vei til helårs turterreng i Estenstadmarka, som kan skilte med lysløype, akebakke og bemannet hytte med rømmegrøtservering for søndagsturen. Foruten dette er det flere populære utfartsområder i området, som f.eks. Chamonix mellom Presthus og Nedre del av Jakobsli, St. Hanshaugen på Nedre Charlottenlund og Rotvollfjæra som er et yndet rekreasjonsområde på sommerstid hvor også Ladestien går.
Adkomst
Kjør E6 nordover til Skovgårdskrysset hvor du tar av til høyre. Deretter første vei til høyre inn Hørløcks veg til kunstgressbanen, som er Tunvegen. Følg skilting til Vestre Tunhøgda 12. Det vil bli skiltet fra EiendomsMegler1 ved fellesvisning.
Parkeringsforhold
Parkering på biloppstillingsplass. Tunvegen borettslag har i tillegg garasjer i rekke og flere parkeringsplasser m/motorvarmer som leies ut til andelseiere. Det betales innskudd for garasjer og parkeringsplasser m/motorvarmer. Ledige garasjer/parkeringplasser tildeles av TOBB etter boansiennitet. Mulighet for elbil-lading i hele borettslaget, enten flekkvis ved behov eller ved fast leie av parkeringsplass m/lader.
Adgang til utleie
Det gjøres oppmerksom på at det er begrenset adgang til å leie ut leiligheter i borettslag jfr. lov om borettslag §§ 5-5 og 5-6.
Radon
Denne boligen har ingen utleie og er derfor ikke radonmålt
Regulering
Eiendommen ligger i et område regulert til bolig jf. r035g. Boligen ligger også tilknyttet reguleringsplan r20150046 som omfavner boligbebyggelse, uteareal, renovasjonsanlegg og parkering/parkeringshus. anlegg, Kopi av situasjonskart, målebrev, reguleringsplaner m/bestemmelser etc. kan fås ved henvendelse til megler. Vi oppfordrer interessenter til å gjøre seg kjent med disse.
Ferdigattest
Det er utstedt ferdigattest den 06.02.2017 for riving, fasadeendring og rehabilitering.
Det foreligger byggegodkjente tegninger for eiendommen fra 1967.
Det foreligger imidlertid verken midlertidig brukstillatelse eller ferdigattest i Trondheim kommunes arkiv.
I de tilfeller hvor midlertidig brukstillatelse ikke er innhentet for saker omsøkt før 01.01.1998 vil byggesaken ikke være korrekt avsluttet, og for å få en korrekt avslutning, så kan xx kommune i medhold av plan- og bygningsloven pålegge eier å igangsette tiltak som leder til at midlertidig brukstillatelse/ferdigattest kan omsøkes og utstedes.
Kjøper overtar ansvar, risiko og eventuelle konsekvenser knyttet til manglende midlertidig brukstillatelse/ferdigattest.
Bygningsinformasjon / byggemåte
Bygningen, som er ei boligblokk oppført i 1969, er i 3 etasjer + kjeller. Hovedkonstruksjonen og grunnmur består av betong. Utvendige fasader er kledd med fasadeplater.
Flat takkonstruksjon tekket med takmembran. Vinduer med 3-lags isolerglass. Dette iht. takstmannens rapport.
Diverse
Boligen har fått tilstandsgrad 3 på følgende punkter:
Våtrom - Generell - Bad
Våtrommet må oppgraderes for å tåle normal bruk
etter dagens krav.
Bad/våtrom oppført med byggeforskrifter fra før
1997, får automatisk TG 3 pga alder uavhengig om
det registreres avvik/slitasje. Dette til orientering og
iht rapportens premisser.
Kjøkken - Avtrekk - stue/kjøkken
Det er påvist andre avvik:
Ventilator blåser luft inn på bad. Dette skyldes at
avtrekket er opprinnelig konstruert som et naturlig
avtrekk. Kjøkkenventilatoren skaper ubalanse.
Kostnadsestimat : Under 10 000
Tekniske installasjoner - elektrisk anlegg
Kostnadsestimat : Under 10 000
Utdrag fra Tunvegen borettslag resultatregnskap 2021:
Sum driftsinntekter 2021: 11.816.058
Sum driftskostnader 2021: -8.255.621
Driftsresultat 2021: 3.560.437
Hvitevarer / tilbehør
Hvitevarer på kjøkken følger handelen.
Fellesgjeld og lånebetingelser
Total fellesgjeld
Gjeld kr 100 639 849,- pr. 21.04.22
Andel fellesgjeld
Gjeld kr 443 698,- pr. 21.04.22
Sikringsordning
Andelseierne er ansvarlig for å dekke borettslagets kostnader. Dette gjøres ved betaling av månedlige felleskostnader.
Hvis borettslaget lider tap som følge av at en andelseier ikke betaler sine felleskostnader, kan et eventuelt tap medføre at de andre andelseierne må
betale høyere felleskostnader. Borettslaget har tegnet forsikring, i henhold til borettslagsloven, mot denne type tap.
Leverandør av forsikring:
Skadeforsikringsselskapet Borettslagenes Sikringsordning AS.
Varighet av avtalen / oppsigelsesvilkår:
Borettslag som har tegnet forsikring kan si opp avtalen innen 1. desember med virkning fra kommende årsskifte.
Etter borettslagslovens bestemmelser skal vedtak om oppsigelse av forsikringen gjøres av borettslagets generalforsamling.
Forsikringsselskapet kan til enhver tid si opp en avtale med forsikringstaker dersom forsikrede ikke oppfyller de krav som er lagt til grunn ved første gangs forsikring.
For øvrig gjelder forsikringsavtalelovens regler.
Mer informasjon om sikringsordningen finner du her: http://www.nbbl.no/
Boligbyggelag/Omborettslag/Borettslagenesª]sikringsordning
Forkjøpsrett
Forkjøpsretten på boligen er ferdig forhåndsprøvd. Ta kontakt med megler for å få opplyst hvor mange som har meldt interesse.
Andelseier(e) kan kun eie en andel. Andelseier må selv bebo leiligheten. Kun fysiske personer kan eie andel. Stat, kommune, fylkeskommune m.fl. kan likevel eie andel
eller andeler opp til 10% av andelene i borettslaget, der det er fem eller flere andeler. Det kan være fastsatt i vedtektene at stat, kommune, fylkeskommune, boligbyggelag, institusjon eller sammenslutning med samfunnsnyttig formål og
dessuten arbeidsgiver som skal leie ut boligen til sine ansatte, kan eie opp til 20% av andelene i tillegg. Kjøper av andelen må godkjennes av borettslagets styre for at ervervet skal bli gyldig. Kjøper bærer selv risikoen for at godkjenning blir gitt og må videreselge boligen for egen regning og risiko dersom styret ikke godkjenner kjøper som ny andelseier.
Dersom borettslaget er tilknyttet et boligbyggelag, så er det ofte et krav fra boligbyggelagets side at kjøper må melde seg inn i boligbyggelaget før kjøper kan bli godkjent som ny andelseier i det aktuelle borettslaget. Det gjøres i den forbindelse oppmerksom på at det vil kunne påløpe et innmeldingsgebyr til boligbyggelaget, og de fleste boligbyggelagene krever at innmeldingsavgiften skal være innbetalt før godkjenningen blir gitt. Innmeldingsgebyret faktureres kjøper direkte.
Ligningsverdi (formuesverdi)
Primær formuesverdi kr 598 881,-
Sekundær formuesverdi kr 2 155 972,-
Formuesverdi årstall 2020
Skattemessig formuessverdi er oppgitt av Altinn. Verdien gjelder som primærbolig.
Boligselgerforsikring
Selgeren har kjøpt boligselgerforsikring hos Fremtind. Forsikringen dekker selgerens økonomiske ansvar hvis du oppdager feil eller mangler som omfattes av avhendingsloven. Forsikringen gjelder fra kjøpers overtagelse av eiendommen og varer i fem år. I tillegg dekker forsikringen perioden mellom budaksept og overtagelse begrenset til 12 måneder. Forsikringsdekningen er begrenset til salgssum, maksimalt 12 millioner kroner. For kombinasjonseiendommer gjelder forsikringen kun for boligdelen. Se nettsidene til Sparebank 1 for mer informasjon om hva forsikringen dekker og hvilke begrensninger som gjelder.
Utdrag fra selgers egenerklæring:
1. Vet du om det er gjort arbeid på bad eller våtrom,
enten av deg eller tidligere eiere?
- Oppgradert baderomsinnredning og installert dusjkabinett, høsten 2016.. Byttet uttak vaskemaskin, sommeren 2015
3. Vet du om det er gjort endringer eller reparasjoner på tak, fasade, pipe/ildsted, terrasse, garasje, bod eller lignende, enten av deg eller tidligere eiere?
- I borettslagets regi v/TOBB har man oppgradert fasader, vinduer, pipeløp, verandaer, m.m i løpet av 2015/2016
5. Vet du om det er gjort arbeider på det elektriske
anlegget, enten av deg eller tidligere eiere?
- 1. Montering av baderomsvifte, faglært elektriker, 2016
2. Sjekk av porttelefon, faglært elektriker, 2017
3. Montering av stikkontakter og lysbryter på soverom, utført som vennetjeneste av elektroingeniør
4. Bytte av tilbkobling/sikring vv-tank, oppføring av 8 kontaktpunkter, flytting av stikkontakter på kjøkken, utført av faglært elektriker våren 2021
6. Vet du om det er gjort arbeid på vann og avløp,
enten av deg eller tidligere eiere?
- 1. Byttet uttak til vaskemaskin på bad, sommeren 2015, faglært rørlegger
2. Montering av ny servant og dusjkabinett på bad, høsten 2016, utført av faglært rørlegger
3. Byttet varmtvannstank, montert ny kjøkkenservant, skiftet stengekran, tilkoblet oppvaskmaskin med egen stengekran, våren 2021, faglært rørlegger
7. Vet du om boligen eller eiendommen har blitt endret
eller bygget ut etter opprinnelig byggeår, enten av deg
eller tidligere eiere?
- Tidligere eier har flyttet vegg på soverommet for å utvide dette. Undertegnede har ingen oversikt over hvordan dette ble gjort, eller av hvem.
22. Vet du om bruken av eiendommen eller området rundt
kan endres av foreslåtte eller vedtatte reguleringsplaner,
nabovarsel, offentlige vedtak eller liknende?
- Borettslaget ønsker å selge en del av tomten på oversiden av blokka for å frigjøre kapital.
27. Vet du om det finnes planer, vedtak eller forslag til vedtak
for eiendommen som kan øke husleien/festeavgiften/
fellesutgiftene/fellesgjelden?
- Borettslaget har planlagt totalrenovering av røranlegg.
Boligkjøperforsikring
EiendomsMegler 1 formidler Boligkjøperforsikring fra HELP Forsikring AS. Det er en rettshjelpsforsikring som gir trygghet og profesjonell juridisk hjelp dersom det oppdages uventede feil eller mangler de neste fem årene. Du kan ta kontakt med megler for å få informasjon om boligkjøperforsikring eller lese mer på help.no. Forsikringen tilbys kun til privatpersoner som kjøper eiendom til eget eller nærmeste families bruk, og det er en forutsetning at kjøpsavtalen reguleres av avhendingsloven. Ved kjøp av landbrukseiendom/ småbruk, er det kun forhold
tilknyttet til våningshuset som omfattes av forsikringen. For nærmere detaljer henvises det til forsikringsvilkårene. Megler mottar tegningsprovisjon fra HELP.
Overtakelse
Overtakelse kan ikke finne sted før borettslaget har godkjent ny andelseier eller eventuelt er godkjent etter loven.
Salgsoppgaven beskriver vesentlig og lovpålagt informasjon om eiendommen
Se komplett salgsoppgaveNyttige lenker
Nærområdet
EiendomsMegler 1 Grilstadporten
Prisstatistikk
Vestre Tunhøgda 12
på annonsen
prisantydning per kvadratmeter
Prisfordeling
Pris per m² ligger 6 403 kr under snittet for leiligheter i Trondheim Øst.
Grafen viser antall leiligheter solgt i Trondheim Øst siste året fordelt på pris per m² - totalt 2 613 leiligheter
Antall boliger
Kvadratmeterpris tilsvarer prisantydning pluss fellesgjeld per kvadratmeter (p-rom eller BRA-i). Prisene i grafen er avrundet til nærmeste 1000 kr.
Annonseinformasjon
| FINN-kode | 262517179 |
|---|---|
| Sist endret | 30. des. 2022 12:35 |
| Referanse | 33210211 |
Annonsene kan være mangelfulle i forhold til lovpålagt opplysningsplikt. Før bindende avtale inngås oppfordres interessenter til å innhente komplett informasjon fra meglerforetaket, selger eller utleier.



























