Bildegalleri

Velkommen til Trelastgata 21 presentert av Røisland og Co v. Jens Bacher (Tlf. 92 29 79 51)
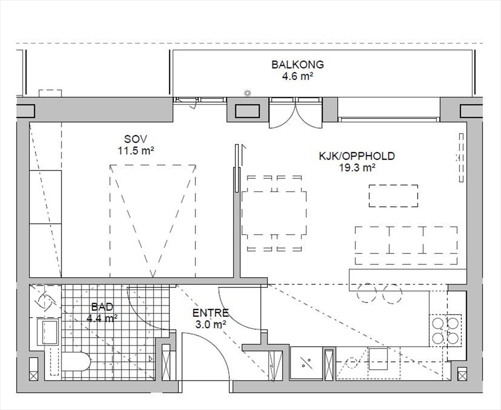
Flott 2-roms selveier i byggets 8. etg | Balkong | Effektiv planløsning | Flott takterrasse i 21.etg | Nærhet til "alt"
Nøkkelinfo
- Boligtype
- Leilighet
- Eieform
- Eier (Selveier)
- Soverom
- 1
- Primærrom
- 40 m²
- Bruksareal
- 40 m²
- Etasje
- 8
- Byggeår
- 2014
- Energimerking
- C - Mørkegrønn
- Rom
- 2
- Tomteareal
- 1 965 m² (eiet)
Fasiliteter
Om boligen
Verdt å fremheve |
- Attraktiv og sentral beliggenhet i Barcode
- 1-stavs eikeparkett
- Kjellerbod
- Heis
- Tv, internett, fyring og varmtvann inkl. i felleskostnadene.
- Umiddelbar nærhet til kollektivt
Salgsoppgaven beskriver vesentlig og lovpålagt informasjon om eiendommen
Se komplett salgsoppgaveNyttige lenker
Nærområdet
Røisland & Co Eiendomsmegling AS
Prisstatistikk
Trelastgata 21
på annonsen
prisantydning per kvadratmeter
Prisfordeling
Pris per m² ligger 21 375 kr over snittet for leiligheter i Gamle Oslo.
Grafen viser antall leiligheter solgt i Gamle Oslo siste året fordelt på pris per m² - totalt 2 067 leiligheter
Antall boliger
Kvadratmeterpris tilsvarer prisantydning pluss fellesgjeld per kvadratmeter (p-rom eller BRA-i). Prisene i grafen er avrundet til nærmeste 1000 kr.
Annonseinformasjon
| FINN-kode | 260524290 |
|---|---|
| Sist endret | 30. juli 2022 12:58 |
| Referanse | RCOPS3.2257 |
Annonsene kan være mangelfulle i forhold til lovpålagt opplysningsplikt. Før bindende avtale inngås oppfordres interessenter til å innhente komplett informasjon fra meglerforetaket, selger eller utleier.


























