Bildegalleri

Hovseterveien 56B er en romslig og moderne 2-roms leilighet i attraktive Meklenborg Borettslag.
Lekker 2-roms pusset opp i 2017 - Garasjeplass - Balkong på 10 kvm - Kabel- TV/internett
Nøkkelinfo
- Boligtype
- Leilighet
- Eieform
- Andel
- Soverom
- 1
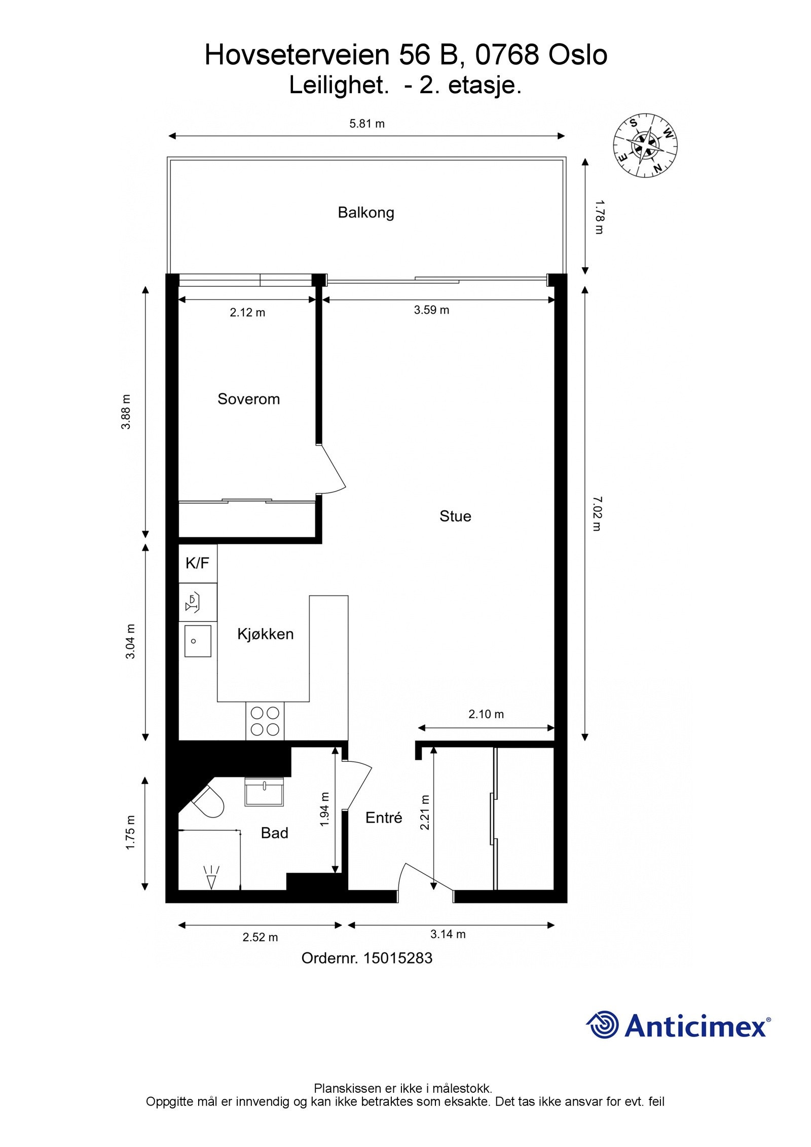
- Primærrom
- 54 m²
- Bruksareal
- 54 m²
- Etasje
- 2
- Byggeår
- 1972
- Energimerking
- D - Rød
- Tomteareal
- 10 750 m² (eiet)
Fasiliteter
Om boligen
Velkommen til Hovseterveien 56B!
En lekker og moderne 2-roms med standard fra 2017 i attraktive Meklenborg borettslag.
Ved oppussing i 2017 ble det lagt vekt på kvalitet, praktiske innredninger og smarte detaljer, samt det å optimalisere bruken av alle rom. Videre ønsket man en romslig og åpen løsning, hvor leilighetens kvaliteter nå er en av de sjeldne i området.
Verdt å merke seg:
- Flytt rett inn standard
- Kun én etasje opp fra inngangsplan
- Bad og kjøkken fra 2017
- En-stavs parkett
- Delikate fargevalg på overflater
- Sydvestvendt balkong på 10,3 kvm med lite innsyn og gode solforhold (fra formiddag til kveld)
- Garasjeplass under blokken
- Oppgradert elektrisk anlegg
- Gangavstand til offentlig kommunikasjon
For privatvisning, ta kontakt med Eiendomsmegler/Partner Aida Rajic i EIE eiendomsmegling.
Salgsoppgaven beskriver vesentlig og lovpålagt informasjon om eiendommen
Se komplett salgsoppgaveNærområdet
EIE eiendomsmegling Røa, Skøyen og Ullern
Prisstatistikk
Hovseterveien 56 B
på annonsen
prisantydning per kvadratmeter
Prisfordeling
Pris per m² ligger 4 871 kr under snittet for leiligheter i Røa.
Grafen viser antall leiligheter solgt i Røa siste året fordelt på pris per m² - totalt 490 leiligheter
Antall boliger
Kvadratmeterpris tilsvarer prisantydning pluss fellesgjeld per kvadratmeter (p-rom eller BRA-i). Prisene i grafen er avrundet til nærmeste 1000 kr.
Annonseinformasjon
| FINN-kode | 254969822 |
|---|---|
| Sist endret | 29. apr. 2022 13:39 |
| Referanse | 50220040 |
Annonsene kan være mangelfulle i forhold til lovpålagt opplysningsplikt. Før bindende avtale inngås oppfordres interessenter til å innhente komplett informasjon fra meglerforetaket, selger eller utleier.






































