Bildegalleri

Velkommen til Svinøyvegen 39!
Solgt
Breivika
BUD MOTTATT - Innholdsrik tomannsbolig | Fantastisk utsikt og solforhold | 2 bad | 2 stuer | Terrasse
Prisantydning3 650 000 kr
Nøkkelinfo
- Boligtype
- Tomannsbolig
- Eieform
- Eier (Selveier)
- Soverom
- 3
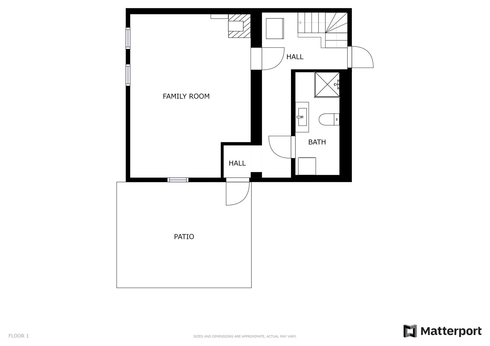
- Primærrom
- 133 m²
- Bruksareal
- 148 m²
- Etasje
- 3
- Byggeår
- 1967
- Energimerking
- F - Gul
- Tomteareal
- 479 m² (eiet)
Fasiliteter
Balkong/Terrasse
Barnevennlig
Offentlig vann/kloakk
Peis/Ildsted
Rolig
Sentralt
Utsikt
Bademulighet
Om boligen
Velkommen til Svinøyvegen 39 - En flott halvpart av tomannsbolig med fantastisk utsikt mot sjøen som kan nytes fra stor terrasse på 55 kvm. Boligen er innholdsrik og inneholder blant annet 2 stuer, 2 bad, 3 soverom, kjøkken og godt med bodplass.
Verdt å merke seg:
- Ny taktekking og pipehatt i 2007
- Bordkledning mot vest skiftet i 2015
- Kjøkkeninnredning fra Kvik i 2010 (alle hvitevarer er ny i 2021 utenom oppvaskmaskin)
- To varmepumper installert i 2020
- Bad på loft oppusset i 2021
- Bad i kjeller fornyet i 2019
Velkommen til visning!
Verdt å merke seg:
- Ny taktekking og pipehatt i 2007
- Bordkledning mot vest skiftet i 2015
- Kjøkkeninnredning fra Kvik i 2010 (alle hvitevarer er ny i 2021 utenom oppvaskmaskin)
- To varmepumper installert i 2020
- Bad på loft oppusset i 2021
- Bad i kjeller fornyet i 2019
Velkommen til visning!
NB: Knappen for å vise hele beskrivelsen har kun en visuell effekt.
NB: Knappen for å vise hele beskrivelsen har kun en visuell effekt.
Salgsoppgaven beskriver vesentlig og lovpålagt informasjon om eiendommen
Se komplett salgsoppgaveNærområdet
Notar Ålesund
God magefølelse
Annonseinformasjon
| FINN-kode | 251649555 |
|---|---|
| Sist endret | 02. aug. 2022 13:56 |
| Referanse | NO1.2240 |
Annonsene kan være mangelfulle i forhold til lovpålagt opplysningsplikt. Før bindende avtale inngås oppfordres interessenter til å innhente komplett informasjon fra meglerforetaket, selger eller utleier.
















































