Bildegalleri

Velkommen til Hovseterveien 42 A, presentert av Vegar Giæver v/ EIE eiendomsmegling Røa.
Lekker og romslig 2-roms toppleilighet | Oppusset 2019-2021 | Balkong med ettermiddags- og kveldssol | Garasjeplass
Nøkkelinfo
- Boligtype
- Leilighet
- Eieform
- Andel
- Soverom
- 1
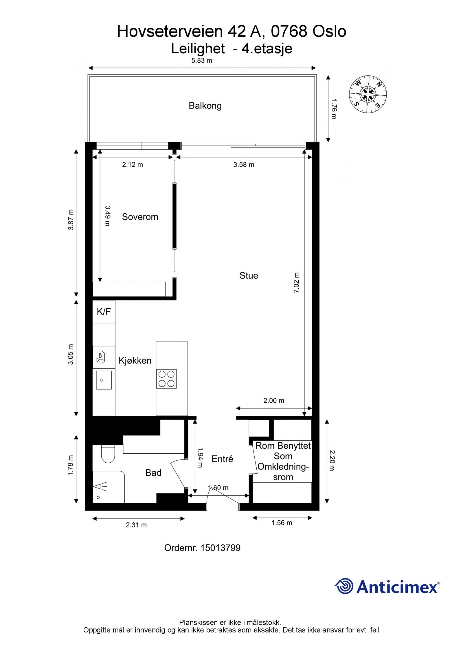
- Primærrom
- 54 m²
- Bruksareal
- 54 m²
- Etasje
- 4
- Byggeår
- 1972
- Energimerking
- E - Rød
- Tomteareal
- 4 401 m² (eiet)
Fasiliteter
Om boligen
Lekker 2-roms toppleilighet med gode kvaliteter! Boligen er vesentlig oppusset i 2019-2021 med nytt bad, nytt kjøkken og hvitevarer, nye gulv, malte overflater og etablering av stue og kjøkken i åpen løsning m.m. I tillegg til god standard på leiligheten er beliggenheten også veldig bra. Her har du Mærradalen som nærmeste nabo - en inngangsportal til marka. Det er i tillegg kort vei til offentlig kommunikasjon og Røa sentrum med to kjøpesenter med en rekke butikker, restauranter og servicetilbud.
- Balkong med sol fra ca. 16-22 om sommeren
- Vesentlig oppusset i 2019-2021
- Moderne og sosialt med stue og kjøkken i åpen løsning
- God bodplass
- Garasjeplass (mulighet for lader)
- Kort vei til turmuligheter, Røa sentrum og off. komm.
- Velholdt og godt driftet borettslag
- Trimrom og selskapslokaler i borettslaget
Salgsoppgaven beskriver vesentlig og lovpålagt informasjon om eiendommen
Se komplett salgsoppgaveNærområdet
EIE eiendomsmegling Røa, Skøyen og Ullern
Annonseinformasjon
| FINN-kode | 245701166 |
|---|---|
| Sist endret | 04. feb. 2022 12:04 |
| Referanse | 50220005 |
Annonsene kan være mangelfulle i forhold til lovpålagt opplysningsplikt. Før bindende avtale inngås oppfordres interessenter til å innhente komplett informasjon fra meglerforetaket, selger eller utleier.




































