Bildegalleri

EiendomsMegler1 v/ Maria Myhrvold Hansen har gleden av å presentere en pen 3- roms leilighet i Bergheim Amfi! Fantastisk utsikt og gode solforhold fra leilighetens flotte veranda.
Solgt
Bergheim
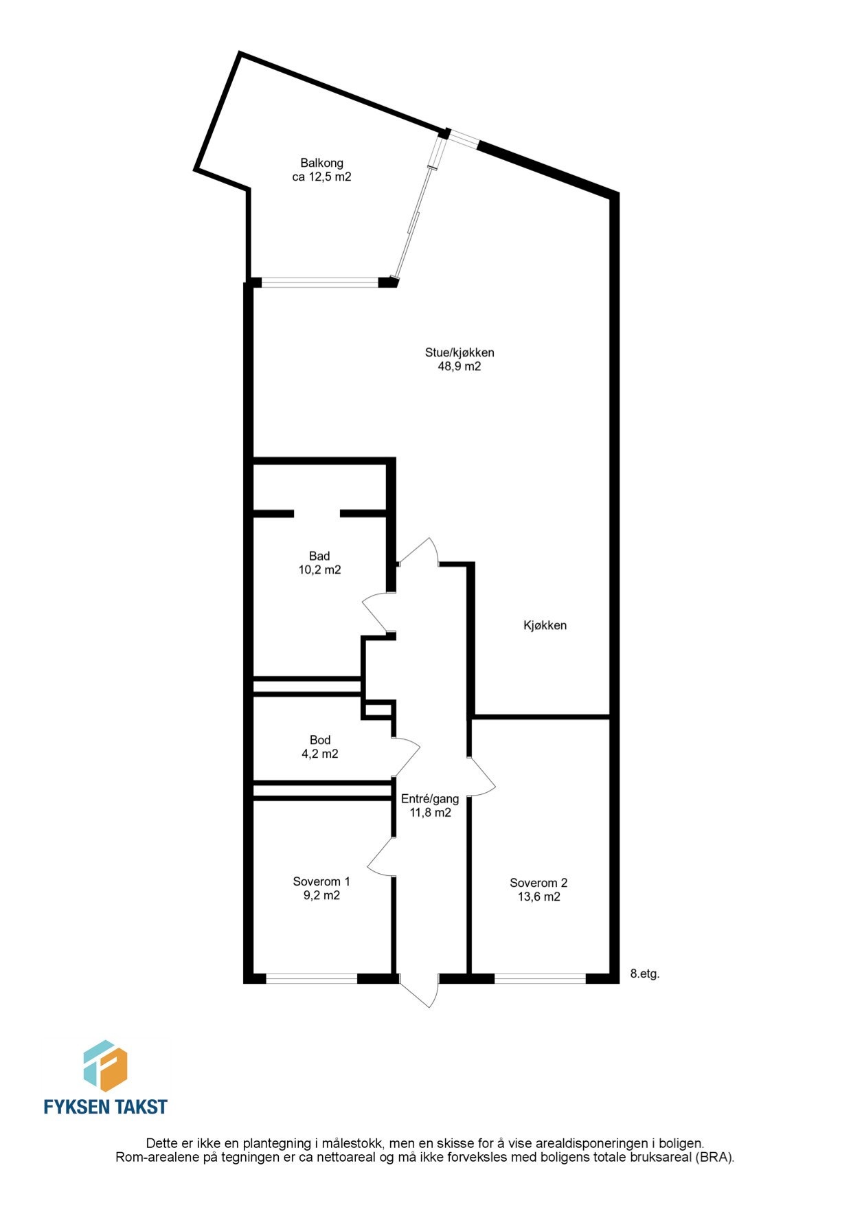
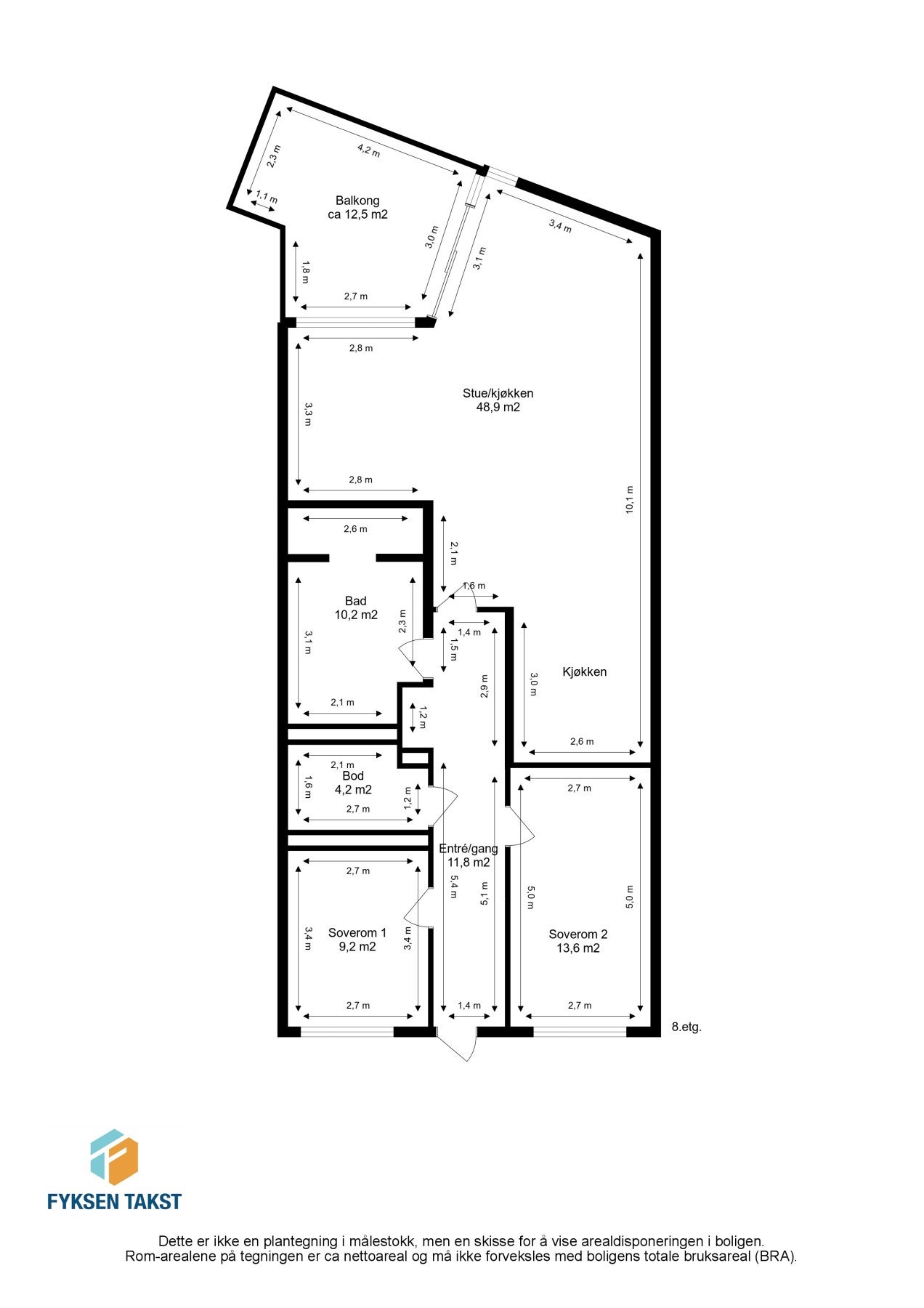
LYS OG FLOTT 3-ROMS PÅ 104 KVM BRA. Fantastisk utsikt og gode solforhold (8. etg)! Heis og fast p-plass i p-kjeller.
Prisantydning5 450 000 kr
Nøkkelinfo
- Boligtype
- Leilighet
- Eieform
- Eier (Selveier)
- Soverom
- 2
- Primærrom
- 98 m²
- Bruksareal
- 104 m²
- Etasje
- 8
- Byggeår
- 2002
- Energimerking
- C - Rød
- Rom
- 3
- Tomteareal
- 10 348 m² (eiet)
Fasiliteter
Barnevennlig
Balkong/Terrasse
Garasje/P-plass
Kabel-TV
Heis
Offentlig vann/kloakk
Parkett
Turterreng
Utsikt
Vaktmester-/vektertjeneste
Sentralt
Bredbåndstilknytning
Rolig
Lademulighet
Balansert ventilasjon
Om boligen
EiendomsMegler1 v/ Maria Myhrvold Hansen presenterer en flott 3- roms leilighet på hele 104 kvm BRA i populære Bergheim Amfi. Leiligheten ligger i byggets 8. etasje, og kan smykke seg med en fantastisk utsikt mot byen, fjorden og Gråkallen - panoramautsikt fra leilighetens veranda! Her har man dessuten gode solforhold på sommerstid. Den herlige utsikten kan også nytes innenfra, takket være store vindusflater.
Av andre kvaliteter kan bl.a. følgende nevnes:
- Veranda på 12,5 kvm.
- Fast p-plass i parkeringskjeller. Det er selvsagt heis i bygget.
- Stor og lys stue med mer enn god plass til sofa- og spisegruppe.
- Solid og pent kjøkken med eikefronter fra Sigdal kjøkken.
- Romslig bad på hele 10 kvm.
- To soverom, begge av god størrelse.
- Innvendig bod i leiligheten + separat bod i byggets 4. etasje. Det er også godt med oppbevaringsplass i flere skyvedørsgarderober i leiligheten.
- Veldrevet sameie.
- Nærhet til marka, dagligvareforretninger, gode bussforbindelser m.m.
Av andre kvaliteter kan bl.a. følgende nevnes:
- Veranda på 12,5 kvm.
- Fast p-plass i parkeringskjeller. Det er selvsagt heis i bygget.
- Stor og lys stue med mer enn god plass til sofa- og spisegruppe.
- Solid og pent kjøkken med eikefronter fra Sigdal kjøkken.
- Romslig bad på hele 10 kvm.
- To soverom, begge av god størrelse.
- Innvendig bod i leiligheten + separat bod i byggets 4. etasje. Det er også godt med oppbevaringsplass i flere skyvedørsgarderober i leiligheten.
- Veldrevet sameie.
- Nærhet til marka, dagligvareforretninger, gode bussforbindelser m.m.
NB: Knappen for å vise hele beskrivelsen har kun en visuell effekt.
NB: Knappen for å vise hele beskrivelsen har kun en visuell effekt.
Salgsoppgaven beskriver vesentlig og lovpålagt informasjon om eiendommen
Se komplett salgsoppgaveNyttige lenker
Nærområdet
EiendomsMegler 1 Valentinlyst
Vi loser deg trygt gjennom hele boligsalget
Annonseinformasjon
| FINN-kode | 241882550 |
|---|---|
| Sist endret | 23. juni 2022 13:33 |
| Referanse | 34210256 |
Annonsene kan være mangelfulle i forhold til lovpålagt opplysningsplikt. Før bindende avtale inngås oppfordres interessenter til å innhente komplett informasjon fra meglerforetaket, selger eller utleier.




























