Bildegalleri

Attraktiv og stor 4-roms over to plan
Solgt
Idylliske Kampen
- Attraktiv, gjennomgående 4-roms hjørneleilighet over 2 plan. Barnevennlig og arealeffektiv med 3 soverom og 2 bad
Prisantydning7 950 000 kr
Nøkkelinfo
- Boligtype
- Leilighet
- Eieform
- Selveier
- Soverom
- 3
- Primærrom
- 110 m²
- Bruksareal
- 125 m²
- Etasje
- 1
- Byggeår
- 1889
- Energimerking
- G - Rød
- Rom
- 4
- Tomteareal
- 628 m² (eiet)
Fasiliteter
Barnevennlig
Bredbåndstilknytning
Kjæledyr tillatt
Offentlig vann/kloakk
Rolig
Sentralt
Turterreng
Om boligen
- Bo sentralt, men samtidig rolig i nydelige omgivelser
- Innholdsrik plan- og romløsning med en familievennlig utforming med hele 3 soverom
- Lekkert kjøkken fra 2021
- To flislagte bad (hvorav ett fra 2019)
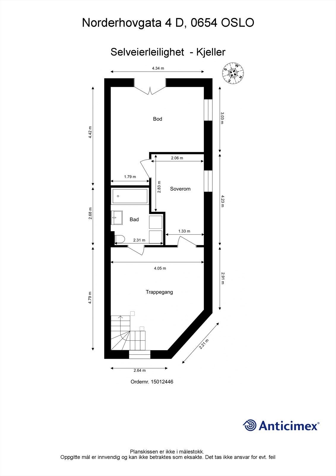
- Leiligheten ligger i 1. og kjelleretasje
- Idyllisk og tilbaketrukket i hjertet av Kampen
- Tiltalende standard med delikate overflater og pene gulv
- Generøs takhøyde (ca. 2,95 m i stue)
- Gjennomgående hjørneleilighet med vinduer fra flere sider
- De store og mange vinduene gir rikelig med naturlig lys
- To utganger (mot bakgård og gate)
- Gulvvarme i kjeller og bad
- En rekke kollektivtilbud i nærheten
- Kort avstand til "alt"
- Nærhet til Kampen skole og barnehager
- Få følelsen av å bo i en liten by, midt i en hovedstad
- Godt med lagringsplass med innvendig bod på ca. 15 kvm
- Innholdsrik plan- og romløsning med en familievennlig utforming med hele 3 soverom
- Lekkert kjøkken fra 2021
- To flislagte bad (hvorav ett fra 2019)
- Leiligheten ligger i 1. og kjelleretasje
- Idyllisk og tilbaketrukket i hjertet av Kampen
- Tiltalende standard med delikate overflater og pene gulv
- Generøs takhøyde (ca. 2,95 m i stue)
- Gjennomgående hjørneleilighet med vinduer fra flere sider
- De store og mange vinduene gir rikelig med naturlig lys
- To utganger (mot bakgård og gate)
- Gulvvarme i kjeller og bad
- En rekke kollektivtilbud i nærheten
- Kort avstand til "alt"
- Nærhet til Kampen skole og barnehager
- Få følelsen av å bo i en liten by, midt i en hovedstad
- Godt med lagringsplass med innvendig bod på ca. 15 kvm
NB: Knappen for å vise hele beskrivelsen har kun en visuell effekt.
NB: Knappen for å vise hele beskrivelsen har kun en visuell effekt.
Salgsoppgaven beskriver vesentlig og lovpålagt informasjon om eiendommen
Se komplett salgsoppgaveNyttige lenker
Nærområdet
Nordvik Majorstuen
Annonseinformasjon
| FINN-kode | 240470654 |
|---|---|
| Sist endret | 12. feb. 2022 11:34 |
| Referanse | 2e1cddb8-0f9e-4a92-be15-b5c8a4a18a6d |
Annonsene kan være mangelfulle i forhold til lovpålagt opplysningsplikt. Før bindende avtale inngås oppfordres interessenter til å innhente komplett informasjon fra meglerforetaket, selger eller utleier.

























































