Bildegalleri

Velkommen til Hovseterveien 82 B - "Nye" Setra borettslag.
Solgt
Hovseter/Røa
Lys og gjennomgående 4-roms. Balkong m/gode solforhold. Baderom fra 2018. Garasjeplass. Nær off.kom, butikker og skoler.
Prisantydning4 700 000 kr
Nøkkelinfo
- Boligtype
- Leilighet
- Eieform
- Andel
- Soverom
- 3
- Primærrom
- 90 m²
- Bruksareal
- 90 m²
- Etasje
- 3
- Byggeår
- 1975
- Energimerking
- E - Rød
- Rom
- 4
- Tomteareal
- 5 457 m² (eiet)
- Bruttoareal
- 98 m²
Fasiliteter
Balkong/Terrasse
Barnevennlig
Kjæledyr tillatt
Kabel-TV
Offentlig vann/kloakk
Parkett
Rolig
Sentralt
Vaktmester-/vektertjeneste
Turterreng
Lademulighet
Om boligen
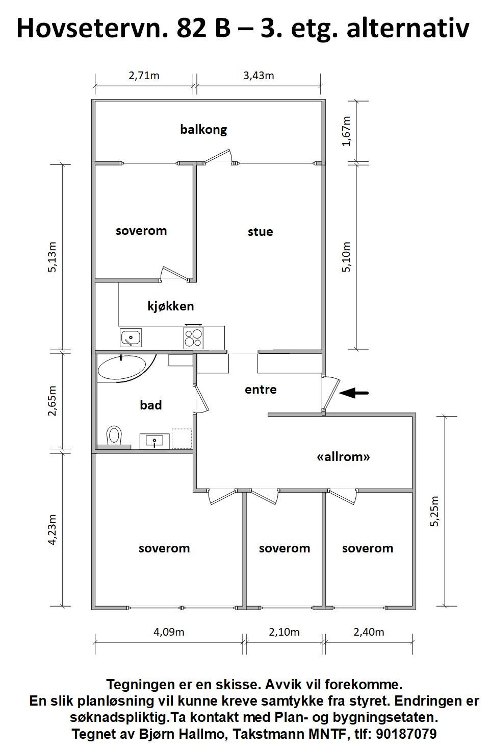
Gjennomgående 4-roms beliggende i et meget attraktivt og veletablert område. Her har du umiddelbar nærhet til idylliske turområder, offentlig kommunikasjon, skoler for alle alderstrinn, barnehager, dagligvarehandel og Røa sentrum. Her har du mulighet til å bo sentralt i et tilbaketrukket og naturskjønt område.
- Lys og innbydende familieleilighet beliggende i 3. etg.
- Gode lysforhold skaper en god romfølelse.
- Solrik balkong (ca. 10,5 kvm).
- Luftig separat kjøkken m/spiseplass.
- 3 gode soverom.
- Stort og delikat baderom fra 2018.
- Fasader oppgradert i 2020 og balkonger ombygget.
- Vinduer fra 2019.
- Garasjeplass med elbil-lader.
- Rikelig med lagringsplass i to boder.
- VV, kabel-tv/internett inkl. i felleskost.
- Ingen dok.avgift.
NB: Knappen for å vise hele beskrivelsen har kun en visuell effekt.
NB: Knappen for å vise hele beskrivelsen har kun en visuell effekt.
Salgsoppgaven beskriver vesentlig og lovpålagt informasjon om eiendommen
Se komplett salgsoppgaveNærområdet
DNB Eiendom AS
Fra hjem til hjem
Annonseinformasjon
| FINN-kode | 238409777 |
|---|---|
| Sist endret | 27. apr. 2022 09:31 |
| Referanse | 418210195 |
Annonsene kan være mangelfulle i forhold til lovpålagt opplysningsplikt. Før bindende avtale inngås oppfordres interessenter til å innhente komplett informasjon fra meglerforetaket, selger eller utleier.































