Bildegalleri

Velkommen til Langdalen 36
Solgt
OKSTAD/TILLER
Innholdsrikt 4-roms rekkehus over 3 etasjer | Flere uteplasser | Peis | Barnevennlig
Prisantydning4 390 000 kr
Nøkkelinfo
- Boligtype
- Rekkehus
- Eieform
- Eier (Selveier)
- Soverom
- 3
- Primærrom
- 124 m²
- Bruksareal
- 131 m²
- Etasje
- 3
- Byggeår
- 2005
- Energimerking
- C - Gul
- Rom
- 4
- Renovert år
- 2021
- Tomteareal
- 150 m² (eiet)
- Bruttoareal
- 142 m²
Fasiliteter
Balkong/Terrasse
Barnevennlig
Garasje/P-plass
Hage
Kjæledyr tillatt
Offentlig vann/kloakk
Peis/Ildsted
Rolig
Sentralt
Utsikt
Turterreng
Om boligen
DNB Eiendom ved Jørgen Michaelsen har gleden av å presentere et innholdsrikt rekkehus beliggende i rolige og barnevennlige omgivelser.
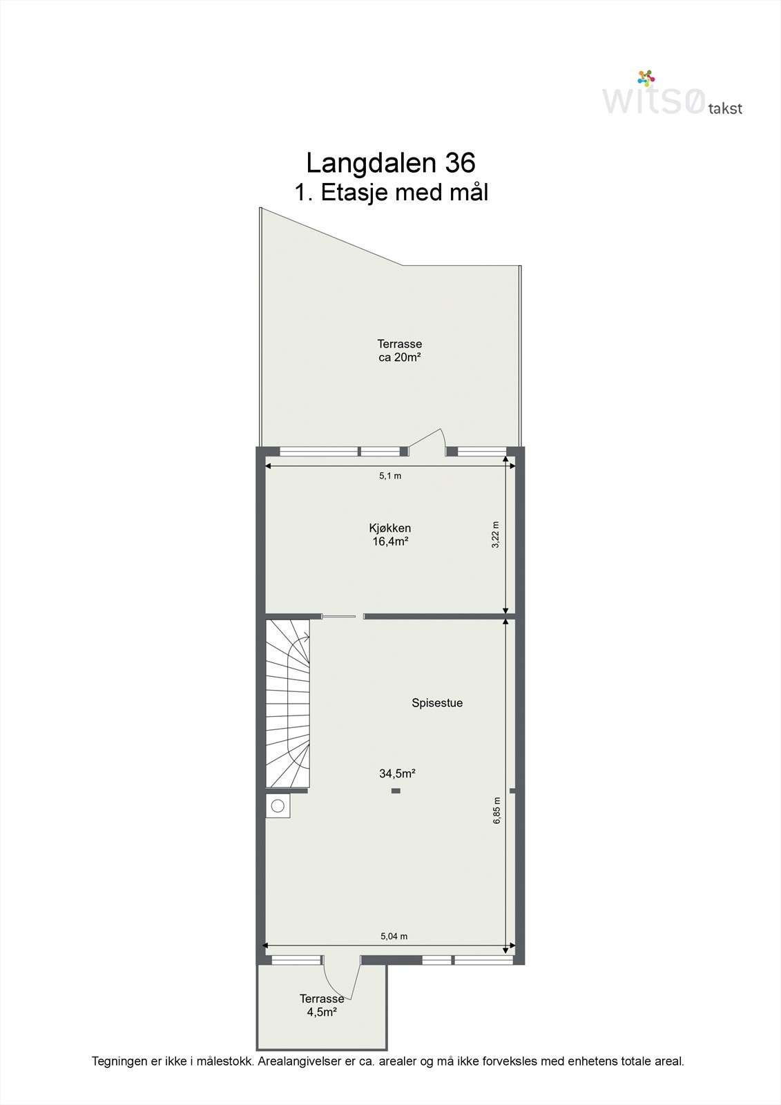
Pent rekkehus med tidsmessige innredninger og fargevalg! Praktisk planløsning med stue/kjøkken i boligens 1. etasje. Stuen er romslig og har peis og utgang til terrasse. På kjøkkenet er det god plass til spisebord og utgang til balkong med morgensol, for de som ønsker å nyte morgenkaffen ute. Inngang i sokkeletasjen med plass til garderobeløsning. Her finner du soverom, pent bad, eget vaskerom og romslig bod. Godt med oppbevaring med separat utvendig bod, og bod ved inngang. Loftsetasje med 2 gode soverom samt wc. Også denne etasjen har godt med lagring (i kneloft), samt på kvist/himling er det mulighet for oppbevaring.
Velkommen til visning!
Pent rekkehus med tidsmessige innredninger og fargevalg! Praktisk planløsning med stue/kjøkken i boligens 1. etasje. Stuen er romslig og har peis og utgang til terrasse. På kjøkkenet er det god plass til spisebord og utgang til balkong med morgensol, for de som ønsker å nyte morgenkaffen ute. Inngang i sokkeletasjen med plass til garderobeløsning. Her finner du soverom, pent bad, eget vaskerom og romslig bod. Godt med oppbevaring med separat utvendig bod, og bod ved inngang. Loftsetasje med 2 gode soverom samt wc. Også denne etasjen har godt med lagring (i kneloft), samt på kvist/himling er det mulighet for oppbevaring.
Velkommen til visning!
NB: Knappen for å vise hele beskrivelsen har kun en visuell effekt.
NB: Knappen for å vise hele beskrivelsen har kun en visuell effekt.
Salgsoppgaven beskriver vesentlig og lovpålagt informasjon om eiendommen
Se komplett salgsoppgaveNærområdet
DNB Eiendom AS
Verdifulle salg
Annonseinformasjon
| FINN-kode | 238263220 |
|---|---|
| Sist endret | 16. mars 2022 12:03 |
| Referanse | 818210399 |
Annonsene kan være mangelfulle i forhold til lovpålagt opplysningsplikt. Før bindende avtale inngås oppfordres interessenter til å innhente komplett informasjon fra meglerforetaket, selger eller utleier.

















































