Bildegalleri

Proaktiv Eiendomsmegling ved Steinar Skaanes ønsker deg velkommen til visning av et delikat, lyst og moderne familierekkehus fra 2008.
Nydelig rekkehus over 3 plan. Svært familievennlig beliggenhet. Carport, 3 soverom & 3 stuer. God standard m/ TG1 på alt
Nøkkelinfo
- Boligtype
- Rekkehus
- Eieform
- Andel
- Soverom
- 3
- Primærrom
- 111 m²
- Bruksareal
- 114 m²
- Etasje
- 1
- Byggeår
- 2008
- Energimerking
- D - Mørkegrønn
- Tomteareal
- 4 837 m² (eiet)
- Bruttoareal
- 124 m²
- Boligselgerforsikring
- Ja
Fasiliteter
Om boligen
Proaktiv Eiendomsmegling ved Steinar Skaanes ønsker deg velkommen til et delikat, lyst og moderne rekkehus fra 2008. Boligen nyter en meget familievennlig beliggenhet i det attraktive og nyere boligfeltet Utleir. Barnevennlig tun med flere lekeplasser rett ved. Kort og trygg vei til barnehager, barneskole, idrettsanlegg, bussholdeplass, butikker og Estenstadmarka.
Kvaliteter som særlig fremheves:
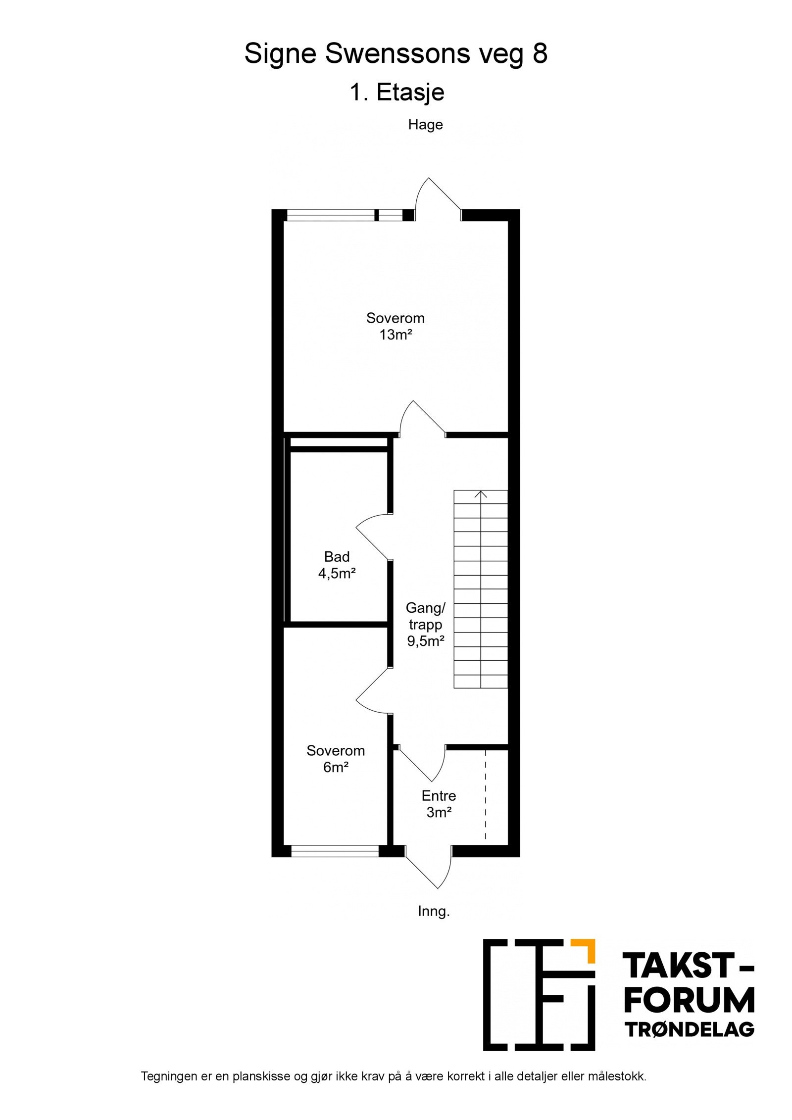
- Parkering i egen carport med lagringsbod i bakkant.
- Flott flislagt baderom med wc og behagelig gulvvarme.
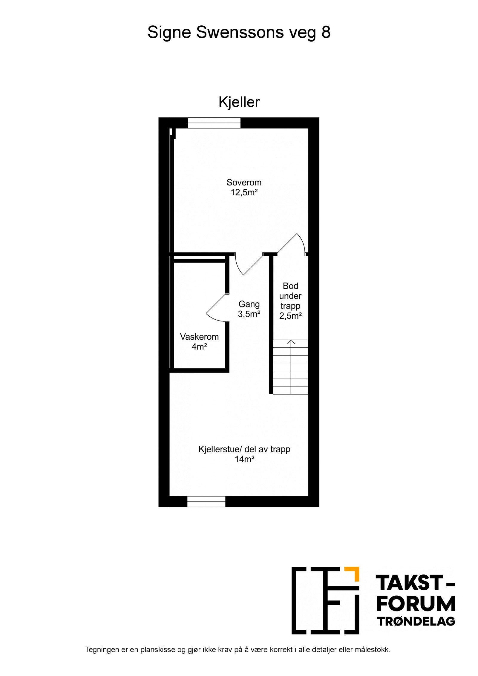
- Vaskerom i kjeller med behagelig gulvvarme og wc. Mulig å sette inn dusj og gjøre det til baderom.
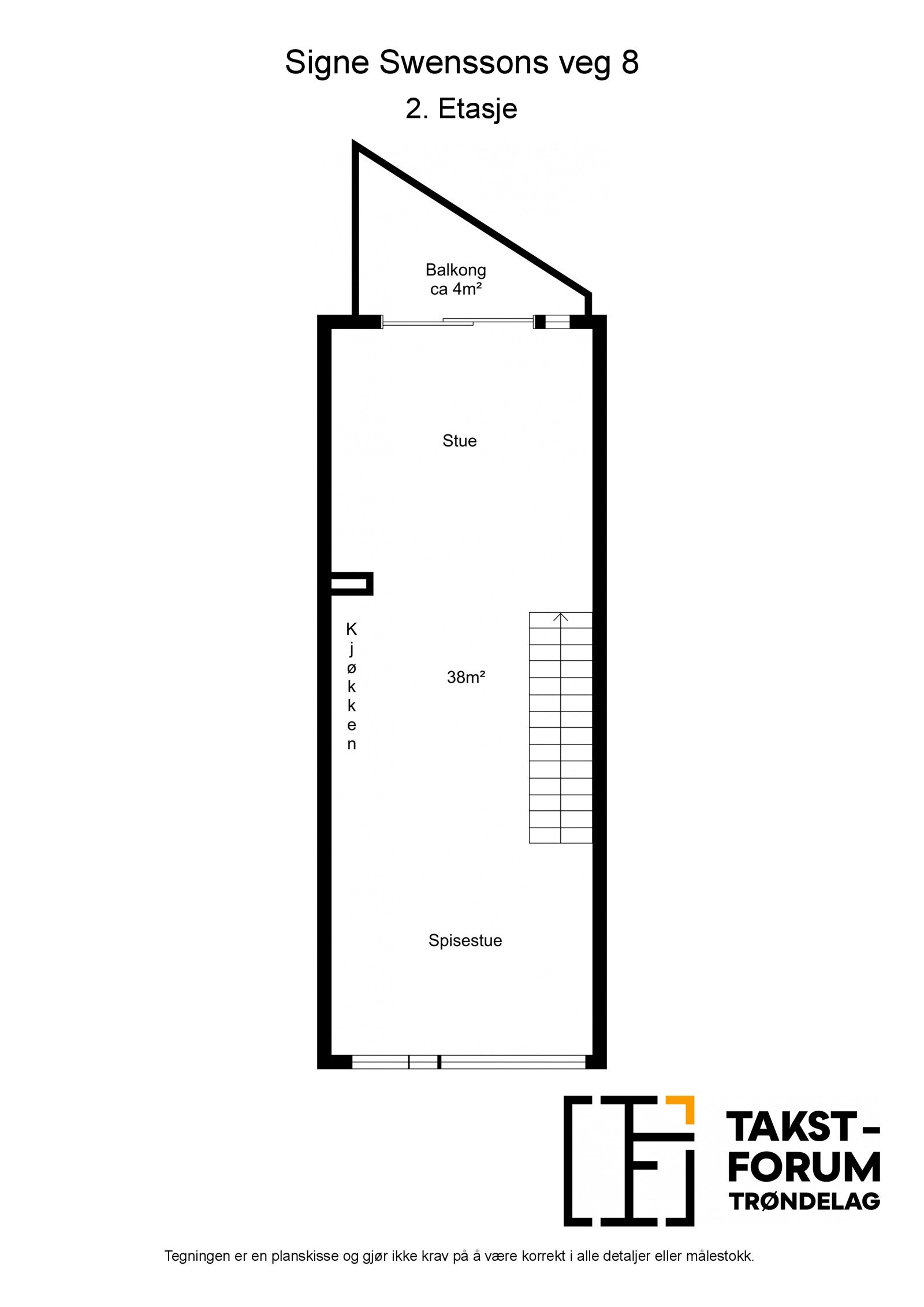
- Pent kjøkken med integrerte hvitevarer.
- Spisestue, tv-stue og kjellerstue.
- 3 gode soverom m/ garderobeskap.
- Vannbåren fjernvarme via radiatorer.
- Solrik balkong i 2. etasje.
- TG1 på alt.
- Utvendig sportsbod.
Salgsoppgaven beskriver vesentlig og lovpålagt informasjon om eiendommen
Se komplett salgsoppgaveNyttige lenker
Nærområdet
Proaktiv Eiendomsmegling Trondheim Øst
Annonseinformasjon
| FINN-kode | 237513086 |
|---|---|
| Sist endret | 20. des. 2021 01:19 |
| Referanse | 52210193 |
Annonsene kan være mangelfulle i forhold til lovpålagt opplysningsplikt. Før bindende avtale inngås oppfordres interessenter til å innhente komplett informasjon fra meglerforetaket, selger eller utleier.







































