Bildegalleri

Velkommen til Utsidevegen 1494 - presentert av eiendomsmegler Frida Stormyr v/Krogsveen!
Solgt
Ræstad
Flott enebolig på Midsund| Garasje | Låve | Naust | Båtplass | Båt av merket Rana | Alt av inventar/møbler følger |
Prisantydning3 170 000 kr
Nøkkelinfo
- Boligtype
- Enebolig
- Eieform
- Eier (Selveier)
- Soverom
- 3
- Primærrom
- 161 m²
- Bruksareal
- 338 m²
- Etasje
- 3
- Byggeår
- 1929
- Energimerking
- G - Gul
- Rom
- 12
- Tomteareal
- 6 672 m² (eiet)
Fasiliteter
Balkong/Terrasse
Barnevennlig
Bredbåndstilknytning
Båtplass
Garasje/P-plass
Hage
Parkett
Peis/Ildsted
Rolig
Sentralt
Utsikt
Fiskemulighet
Strandlinje
Turterreng
Om boligen
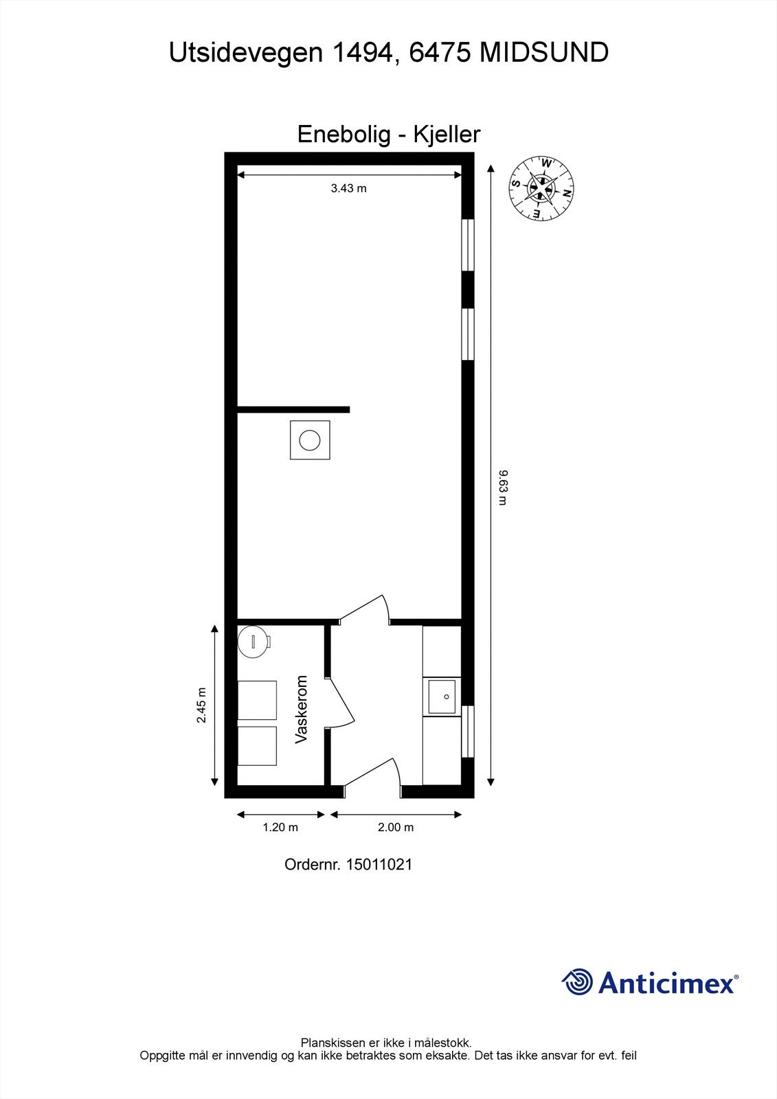
En attraktiv og velstelt boligeiendom med med fri utsikt mot sjøen. Eneboligen har et bruksareal på 117 kvm og går over to boligetasjer, pluss krypkjeller og kaldloft:
1. etasje: Stue, spisestue, entrè, kjøkken, 2 vindfang, bad, wc og gang.
2. etasje: 3 soverom og trappegang.
Eiendommen selges med alt av innbo.
Eiendommen har også garasje med smøregrop og låve med nyere badstu, innredet oppholdsrom med overnattingsmuligheter, bad og kjøkkenkrok, i tillegg til mye oppbevaringsmuligheter og kystens beste sløyerom.
I salget medfølger det nausttomt på ca 904 kvm med oppført naust på ca 36 kvm. Det vil òg medfølge en Rana fiskebåt og regstrert båthenger som er lagret i naustet. Båten har kategori C (innaskjærs). Båtplass i småbåthavnen er også inkludert!
Velkommen til visning!
1. etasje: Stue, spisestue, entrè, kjøkken, 2 vindfang, bad, wc og gang.
2. etasje: 3 soverom og trappegang.
Eiendommen selges med alt av innbo.
Eiendommen har også garasje med smøregrop og låve med nyere badstu, innredet oppholdsrom med overnattingsmuligheter, bad og kjøkkenkrok, i tillegg til mye oppbevaringsmuligheter og kystens beste sløyerom.
I salget medfølger det nausttomt på ca 904 kvm med oppført naust på ca 36 kvm. Det vil òg medfølge en Rana fiskebåt og regstrert båthenger som er lagret i naustet. Båten har kategori C (innaskjærs). Båtplass i småbåthavnen er også inkludert!
Velkommen til visning!
NB: Knappen for å vise hele beskrivelsen har kun en visuell effekt.
NB: Knappen for å vise hele beskrivelsen har kun en visuell effekt.
Salgsoppgaven beskriver vesentlig og lovpålagt informasjon om eiendommen
Se komplett salgsoppgaveNyttige lenker
Nærområdet
Krogsveen Ålesund
Velkommen til en enklere boligreise.
Annonseinformasjon
| FINN-kode | 236642392 |
|---|---|
| Sist endret | 06. mars 2022 13:04 |
| Referanse | KR76.21229 |
Annonsene kan være mangelfulle i forhold til lovpålagt opplysningsplikt. Før bindende avtale inngås oppfordres interessenter til å innhente komplett informasjon fra meglerforetaket, selger eller utleier.




























































