Bildegalleri

Nordvik v/Jørgen Nyhus har gleden av å presentere denne nyoppussede og tiltalende leiligheten
Solgt
NYHET!
Åsgårdstrand - Nyoppusset leilighet m/alt på ett-plan | 2 soverom | Store uteområder | Parkering | Ingen boplikt!
Prisantydning2 575 000 kr
Nøkkelinfo
- Boligtype
- Leilighet
- Eieform
- Eier (Selveier)
- Soverom
- 2
- Primærrom
- 51 m²
- Bruksareal
- 51 m²
- Etasje
- 1
- Byggeår
- 1986
- Energimerking
- F - Rød
- Rom
- 3
- Tomteareal
- 2 708 m² (eiet)
- Bruttoareal
- 55 m²
Om boligen
Nordvik har gleden av å presentere Granåsveien 4A og denne tiltalende og nyoppussede halvparten av en vertikaldelt tomannsbolig beliggende sentralt i Åsgårdstrand.
Boligen er en del av et sameie, hvor all bygningsmasse og uteområder nylig er oppgradert. Sameiet består av 4 vertikaldelte tomannsboliger og fremstår som representative og sammen gir de et lunt og koselig inntrykk som bør oppleves.
Boligen er betydelig oppusset 2021 både inn- og utvendig. Innvendig er det bl.a. lagt nye gulv, malte veggflater og himlinger, montert ny kjøkkeninnredning, og bad/vaskerom er oppusset. Utvendig er takstein vasket og malt, samt det er bygget ny terrasseplatting.
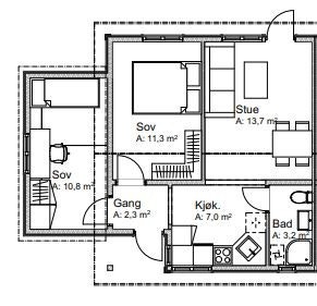
Rominndeling av entré, bad/wc/vaskerom, kjøkken, stue, 2 soverom og bod (utvendig bod blir bygget).
Egen parkeringsplass.
Boligen er en del av et sameie, hvor all bygningsmasse og uteområder nylig er oppgradert. Sameiet består av 4 vertikaldelte tomannsboliger og fremstår som representative og sammen gir de et lunt og koselig inntrykk som bør oppleves.
Boligen er betydelig oppusset 2021 både inn- og utvendig. Innvendig er det bl.a. lagt nye gulv, malte veggflater og himlinger, montert ny kjøkkeninnredning, og bad/vaskerom er oppusset. Utvendig er takstein vasket og malt, samt det er bygget ny terrasseplatting.
Rominndeling av entré, bad/wc/vaskerom, kjøkken, stue, 2 soverom og bod (utvendig bod blir bygget).
Egen parkeringsplass.
NB: Knappen for å vise hele beskrivelsen har kun en visuell effekt.
NB: Knappen for å vise hele beskrivelsen har kun en visuell effekt.
Salgsoppgaven beskriver vesentlig og lovpålagt informasjon om eiendommen
Se komplett salgsoppgaveNyttige lenker
Nærområdet
Nordvik Tønsberg
Annonseinformasjon
| FINN-kode | 233900556 |
|---|---|
| Sist endret | 14. okt. 2021 11:04 |
| Referanse | 351d17e0-08e3-4956-bf0a-a6032e057e50 |
Annonsene kan være mangelfulle i forhold til lovpålagt opplysningsplikt. Før bindende avtale inngås oppfordres interessenter til å innhente komplett informasjon fra meglerforetaket, selger eller utleier.
















































