Bildegalleri

Velkommen til Jamthaugvegen 56 - Innholdsrikt enderekkehus med en flott sjøutsikt og en herlig beliggenhet i et barnevennlig område
Innholdsrikt enderekkehus med flott sjøutsikt og barnevennlig beliggenhet | 3 soverom | Flotte uteplasser | Garasje
Nøkkelinfo
- Boligtype
- Rekkehus
- Eieform
- Eier (Selveier)
- Soverom
- 3
- Primærrom
- 109 m²
- Bruksareal
- 149 m²
- Byggeår
- 1970
- Energimerking
- F - Gul
- Tomteareal
- 138 m² (eiet)
- Bruttoareal
- 164 m²
- Boligselgerforsikring
- Ja
Fasiliteter
Om boligen
Velkommen til Jamthaugvegen 56 - Et innholdsrikt enderekkehus, beliggende i et attraktivt og barnevennlig område på Øvre Sjølyst. Boligen byr blant annet på en romslig planløsning, store vindusflater og en unik beliggenhet i feltet med en herlig fjordutsikt. Fra boligen er det gang- og sykkelavstand til alt du skulle trenge i hverdagen, med umiddelbar nærhet til søndagsåpen dagligvare, restauranter, skole og barnehager.
Kvaliteter verdt å merke seg:
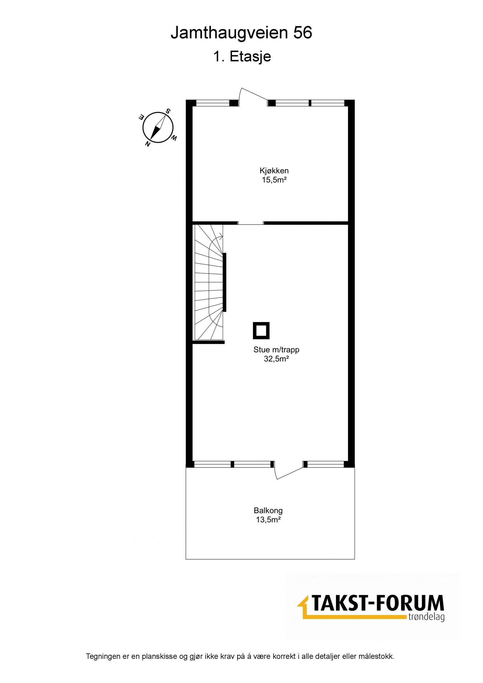
- Balkong på forside som rommer hele 13,5 m² med fjordutsikt og gode solforhold, samt frodig hageflekk i bakkant av huset
- 3 romslige soverom på hhv. 12, 9,5 og 7 m²
- Stue på hele 32,5 m²
- Romslig kjøkken med praktisk utforming (TG1)
- Parkering i garasje, samt på oppstillingsplass
Ta kontakt med megler på 400 57 022 for å avtale visning!
Salgsoppgaven beskriver vesentlig og lovpålagt informasjon om eiendommen
Se komplett salgsoppgaveNyttige lenker
Nærområdet
Heimdal Eiendomsmegling avd. Sentrum
Annonsene kan være mangelfulle i forhold til lovpålagt opplysningsplikt. Før bindende avtale inngås oppfordres interessenter til å innhente komplett informasjon fra meglerforetaket, selger eller utleier.























