Bildegalleri

- Velkommen til Øvre Drengsrudvei 29 -
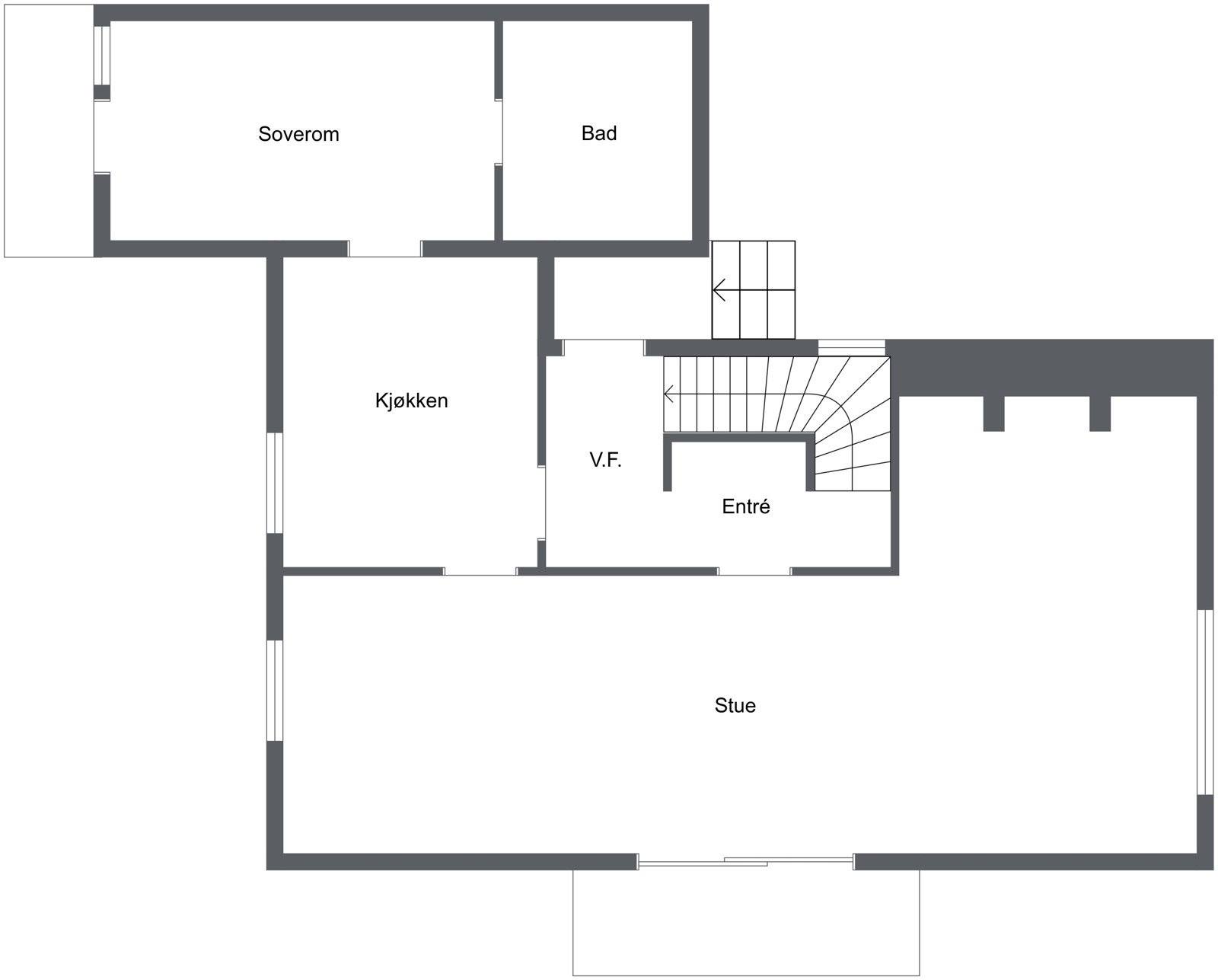
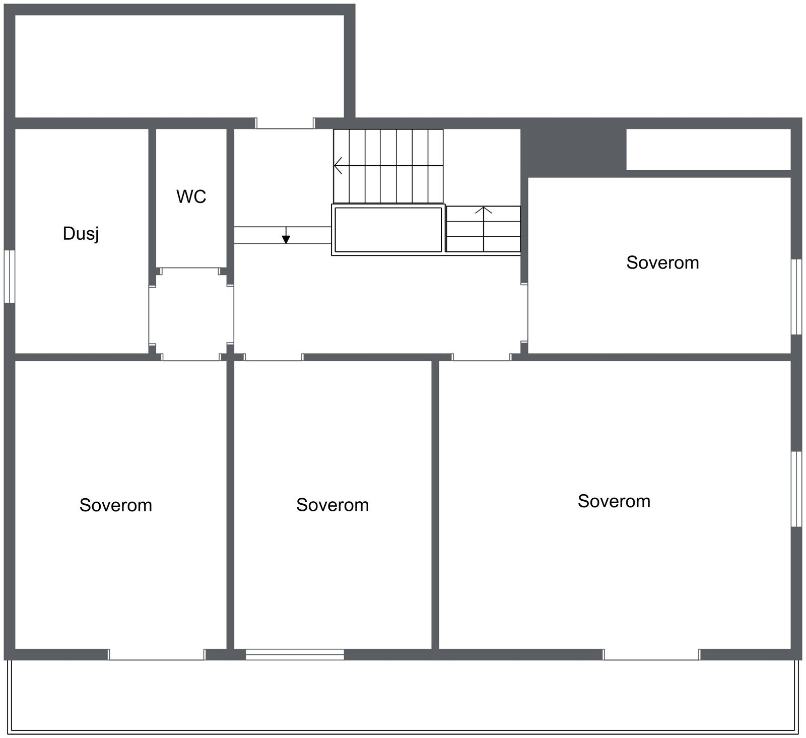
Flott enebolig med stor solrik tomt på 1.5 m ål. 5 soverom - Carport - Vakker hage - Blindvei
Nøkkelinfo
- Boligtype
- Enebolig
- Eieform
- Eier (Selveier)
- Soverom
- 5
- Primærrom
- 159 m²
- Bruksareal
- 225 m²
- Byggeår
- 1957
- Energimerking
- G - Rød
- Tomteareal
- 1 528 m² (eiet)
- Bruttoareal
- 250 m²
- Boligselgerforsikring
- Ja
Fasiliteter
Om boligen
Øvre Drengsrud vei 29 har en attraktiv og rolig beliggenhet i et meget barnevennlig boområde uten gjennomgangstrafikk på Drengsrud. Eneboligen er meget lys og hyggelig med en fantastisk opparbeidet rosehage, som gir assosiasjoner til et fransk landsted. Se mer på instagramkontoen @wallas_verden. Boligen er opprinnelig tegnet av den kjent arkitekten Odd Jebe. Hans eneboliger i tre er karakteristiske med sine ofte asymmetriske gavler og knappe takoverheng. Boligen har en god planløsning og er velholdt og innholdsrik, med noe moderniseringsbehov.
Flotte tur- og helårs rekreasjonsområder i Vestmarka som ligger i gangavstand fra boligen. I Asker sentrum og i nærområdet finnes det mange muligheter for organiserte aktiviteter. For golfentusiaster ligger Asker golfbane kun få minutter unna.
Salgsoppgaven beskriver vesentlig og lovpålagt informasjon om eiendommen
Se komplett salgsoppgaveNyttige lenker
Nærområdet

PrivatMegleren Solli & Partnere
Annonseinformasjon
| FINN-kode | 232568931 |
|---|---|
| Sist endret | 23. des. 2021 01:14 |
| Referanse | 18210232 |
Annonsene kan være mangelfulle i forhold til lovpålagt opplysningsplikt. Før bindende avtale inngås oppfordres interessenter til å innhente komplett informasjon fra meglerforetaket, selger eller utleier.







































