Bildegalleri

Lys og flott 3-roms selveier.
Solgt
LYS OG FLOTT 3-ROMS SELVEIER. Fantastisk utsikt. Stor solrik balkong. Lekkert kjøkken. Delikat bad. Heis. Garasjeplass.
Prisantydning4 375 000 kr
Nøkkelinfo
- Boligtype
- Leilighet
- Eieform
- Selveier
- Soverom
- 2
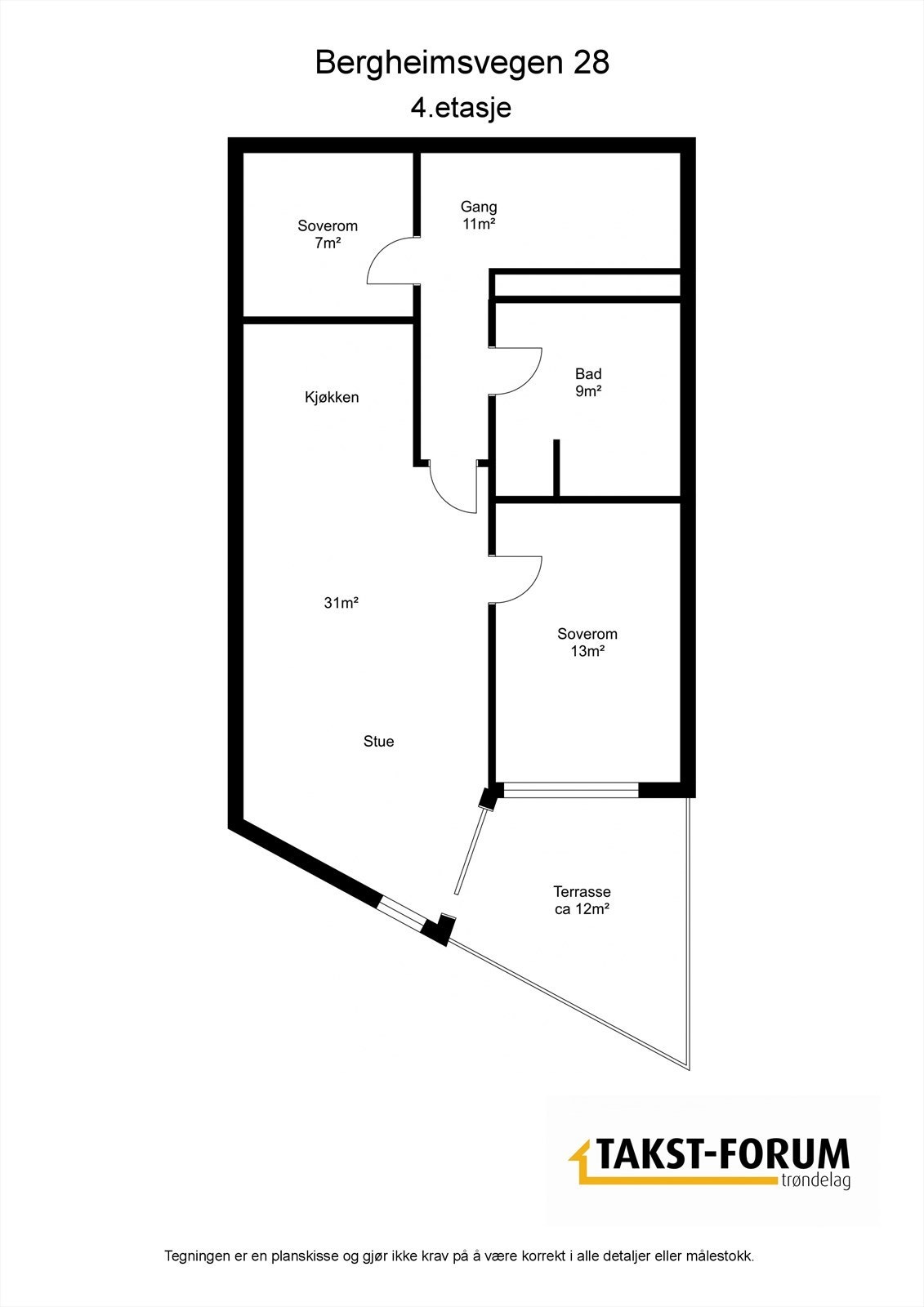
- Primærrom
- 76 m²
- Bruksareal
- 76 m²
- Etasje
- 4
- Byggeår
- 2002
- Energimerking
- D - Rød
- Rom
- 3
- Tomteareal
- 10 498 m² (eiet)
- Bruttoareal
- 84 m²
Fasiliteter
Balkong/Terrasse
Barnevennlig
Bredbåndstilknytning
Garasje/P-plass
Heis
Ingen gjenboere
Kabel-TV
Offentlig vann/kloakk
Parkett
Rolig
Sentralt
Utsikt
Vaktmester-/vektertjeneste
Bademulighet
Turterreng
Om boligen
LYS OG FLOTT 3-ROMS SELVEIER.
- Heis ned til fast parkeringsplass i oppvarmet garasjekjeller.
- Solrik balkong på 12 kvm. Fantastisk utsikt over byen og fjorden.
- Leiligheten fremstår som moderne med svært tiltalende standard.
- Parkettgulv, lysmalte flater og downlights i himling.
- Lys og luftig stueløsning med god plass til stor spisestue.
- Bra takhøyde og store lysflater gir god atmosfære.
- Lekkert nyoppusset kjøkken. Integrerte hvitevarer.
- Stort og delikat bad. Flislagt med varme i gulv.
- Opplegg for vaskemaskin på bad.
- 2 store soverom på 13 kvm og 7 kvm.
- Medfølger 1 bod som ligger i samme etasje.
- Sentralt beliggende med nærhet til Estenstadmarka.
Fellesutgifter dekker kabel-tv/internett, renhold i fellesareal, vaktmestertjenester, bygningsforsikring, vedlikehold m.m.
- Heis ned til fast parkeringsplass i oppvarmet garasjekjeller.
- Solrik balkong på 12 kvm. Fantastisk utsikt over byen og fjorden.
- Leiligheten fremstår som moderne med svært tiltalende standard.
- Parkettgulv, lysmalte flater og downlights i himling.
- Lys og luftig stueløsning med god plass til stor spisestue.
- Bra takhøyde og store lysflater gir god atmosfære.
- Lekkert nyoppusset kjøkken. Integrerte hvitevarer.
- Stort og delikat bad. Flislagt med varme i gulv.
- Opplegg for vaskemaskin på bad.
- 2 store soverom på 13 kvm og 7 kvm.
- Medfølger 1 bod som ligger i samme etasje.
- Sentralt beliggende med nærhet til Estenstadmarka.
Fellesutgifter dekker kabel-tv/internett, renhold i fellesareal, vaktmestertjenester, bygningsforsikring, vedlikehold m.m.
NB: Knappen for å vise hele beskrivelsen har kun en visuell effekt.
NB: Knappen for å vise hele beskrivelsen har kun en visuell effekt.
Salgsoppgaven beskriver vesentlig og lovpålagt informasjon om eiendommen
Se komplett salgsoppgaveNyttige lenker
Nærområdet
Nylander &Partners, Lilleby
Verdien av lokalkunnskap
Annonseinformasjon
| FINN-kode | 229676651 |
|---|---|
| Sist endret | 16. sep. 2021 09:34 |
| Referanse | NY7.21165 |
Annonsene kan være mangelfulle i forhold til lovpålagt opplysningsplikt. Før bindende avtale inngås oppfordres interessenter til å innhente komplett informasjon fra meglerforetaket, selger eller utleier.



























