Bildegalleri

Proaktiv Eiendomsmegling ved Christian Schjetne har gleden av å presentere en pent beliggende tomannsbolig på Nidarvoll.
Solgt
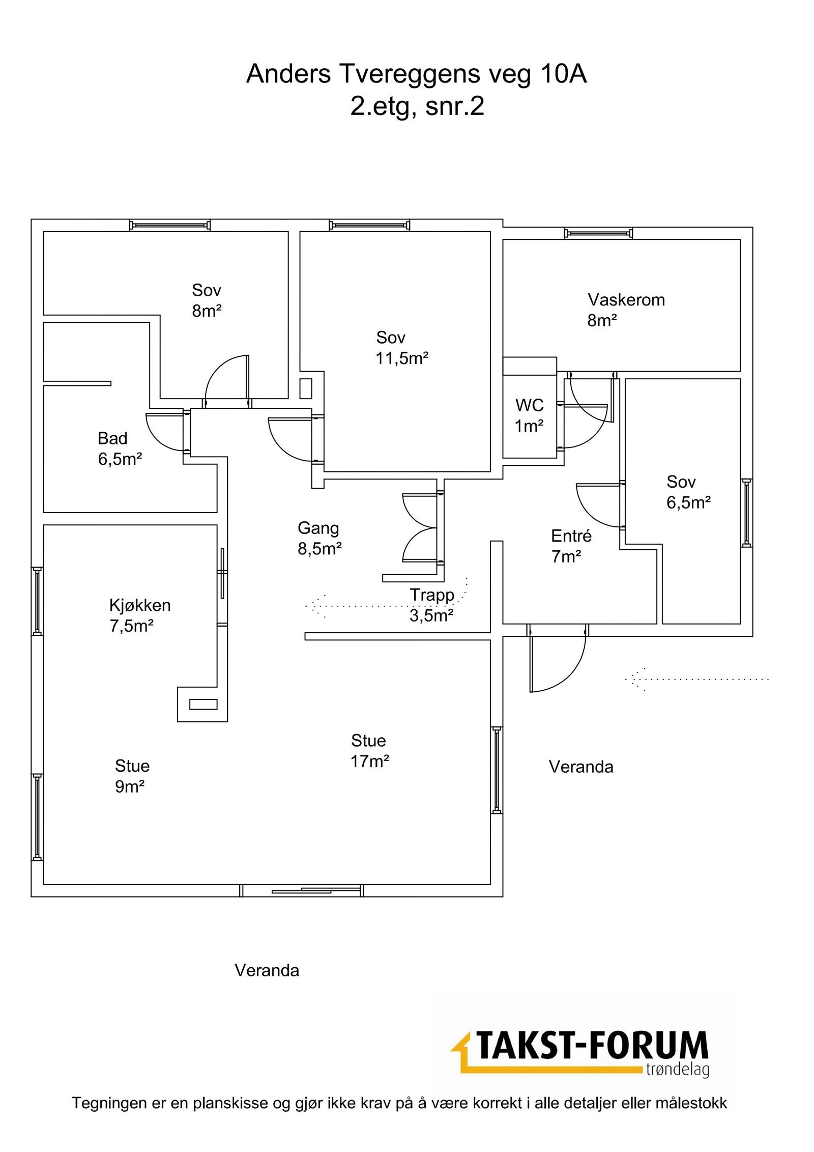
NIDARVOLL
Delikat og romslig halvpart med fantastisk beliggenhet. Ny og moderne standard fra 2013. 3. sov + innredet loft.
Prisantydning4 450 000 kr
Nøkkelinfo
- Boligtype
- Tomannsbolig
- Eieform
- Eier (Selveier)
- Soverom
- 3
- Primærrom
- 124 m²
- Bruksareal
- 124 m²
- Etasje
- 2
- Byggeår
- 1954
- Energimerking
- G - Gul
- Rom
- 4
- Tomteareal
- 801 m² (eiet)
- Bruttoareal
- 136 m²
- Boligselgerforsikring
- Ja
Fasiliteter
Balkong/Terrasse
Peis/Ildsted
Barnevennlig
Rolig
Kabel-TV
Moderne
Garasje/P-plass
Turterreng
Offentlig vann/kloakk
Om boligen
Velkommen til en meget pen og attraktiv horisontaldelt del av tomannsbolig i 2. etg. med loft sentralt på Nidarvoll. Boligen ligger fredelig og solrikt til med kort vei til butikker, skoler, buss og fine turstier i Smidalen og langs Nidelven. Hele boligen ble renovert/bygget ut i 2013.
Blant mange gode kvaliteter vil vi særlig trekke fram disse:
- Meget gode solforhold på den store verandaen.
- Nydelig og stort kjøkken fra 2013 med integrerte hvitevarer.
- Pent baderom fra 2013 med behagelig gulvvarme.
- Stort og praktisk vaskerom.
- Romslig stue med plass for både spisestuemøbler og salongmøbler.
- 3 gode soverom med mye innlys.
- Flere p-plasser ved inngangsparti.
- Kort vei til skole, barnehager, bussholdeplass, butikker og marka.
NB: Knappen for å vise hele beskrivelsen har kun en visuell effekt.
NB: Knappen for å vise hele beskrivelsen har kun en visuell effekt.
Salgsoppgaven beskriver vesentlig og lovpålagt informasjon om eiendommen
Se komplett salgsoppgaveNyttige lenker
Nærområdet
Proaktiv Eiendomsmegling Trondheim Øst
Alltid tid til deg
Annonseinformasjon
| FINN-kode | 228259329 |
|---|---|
| Sist endret | 16. des. 2021 01:19 |
| Referanse | 52210139 |
Annonsene kan være mangelfulle i forhold til lovpålagt opplysningsplikt. Før bindende avtale inngås oppfordres interessenter til å innhente komplett informasjon fra meglerforetaket, selger eller utleier.



































