Bildegalleri

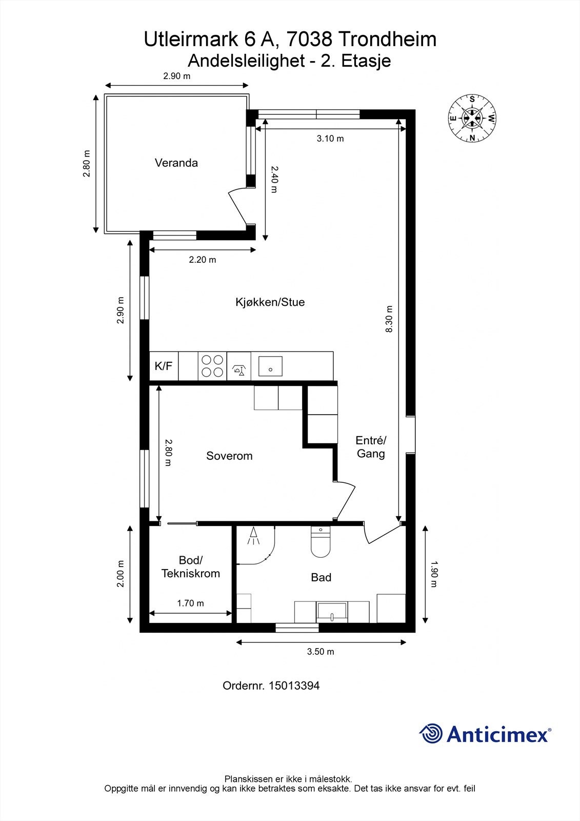
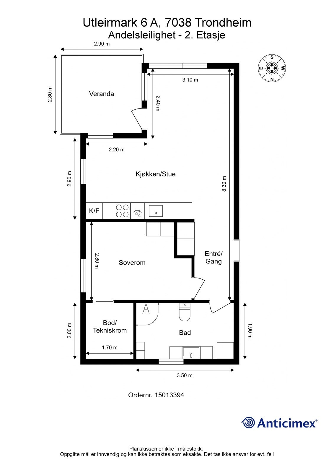
Velkommen til en meget pen og stor 2-roms med attraktiv beliggenhet i området. Leiligheten har et areal på ca 51 kvm. inkludert en innvendig bod
Fossegrenda
2-roms andelsleilighet fra 2015 med fantastisk utsikt | Stor sydvendt terrasse med gode solforhold | Vannbåren gulvvarme
Prisantydning1 390 000 kr
Nøkkelinfo
- Boligtype
- Leilighet
- Eieform
- Andel
- Soverom
- 1
- Bruksareal
- 51 m²
- Etasje
- 1
- Byggeår
- 2015
- Energimerking
- B - Mørkegrønn
- Tomteareal
- 916 m² (eiet)
Fasiliteter
Balkong/Terrasse
Bredbåndstilknytning
Ingen gjenboere
Kabel-TV
Offentlig vann/kloakk
Parkett
Rolig
Utsikt
Turterreng
Visning
Ta kontakt med megler for avtale om privatvisning.
Ønsker du kun å bli holdt orientert, kan du fra eiendommens hjemmeside få varsel om solgtpris, eller kontakte megler.
VisningspåmeldingOm boligen
Velkommen til Utleirmark 6A - Flott beliggende og romslig leilighet i høy 1. etasje i firemannsbolig med kort vei til alle nødvendige servicefunksjoner.
- Kun fysiske personer som medfører behov for noe offentlig omsorgsbistand kan være andelseiere. I henhold til borettslagets vedtekter må kjøper godkjennes av styret som ny andelseier.
Hovedpunkter - God standard fra 2015 med blant annet fjernvarme og balansert ventilasjon
- Praktisk planløsning med store fine rom som gir en god boatmosfære, samt godt med lysinnslipp
- Stor terrasse med sol fra ca kl 8 - 17/18 på sommers tid
- Skjermet beliggenhet fra hovedvei, på en høyde med upåklagelig utsikt over området
- Hyggelig felles oppholdsrom med blant annet kjøkken og stue
NB: Knappen for å vise hele beskrivelsen har kun en visuell effekt.
NB: Knappen for å vise hele beskrivelsen har kun en visuell effekt.
Salgsoppgaven beskriver vesentlig og lovpålagt informasjon om eiendommen
Se komplett salgsoppgaveNyttige lenker
Nærområdet
Krogsveen Trondheim
Velkommen til en enklere boligreise.
Annonseinformasjon
| FINN-kode | 225844623 |
|---|---|
| Sist endret | 17. des. 2025 09:01 |
| Referanse | KR68.21146 |
Annonsene kan være mangelfulle i forhold til lovpålagt opplysningsplikt. Før bindende avtale inngås oppfordres interessenter til å innhente komplett informasjon fra meglerforetaket, selger eller utleier.











