Bildegalleri

2-roms leilighet for bevegelseshemmede på Hovseter
Nøkkelinfo
- Boligtype
- Leilighet
- Eieform
- Andel
- Soverom
- 1
- Primærrom
- 67 m²
- Bruksareal
- 67 m²
- Etasje
- 4
- Byggeår
- 1975
- Tomteareal
- 11 000 m² (eiet)
Beliggenhet
Beliggende på Hovseter i veletablert og rolig boligområde. Matforretning (RIMI), frukt- og grøntbutikk samt cafe/restaurant i 1. etg. Kort vei til de fleste servicefunksjoner, barnehager, skoler, forretninger, kjøpesenter, offentlig kommunikasjon og rekreaskjonsområder.
Beskrivelse
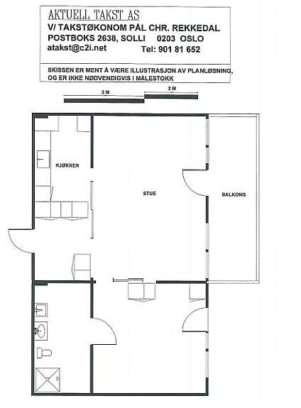
2-roms leilighet i 4. etg. med heis og balkong. Leiligheten er tilrettelagt for bevegelseshemmede (ingen dørterskler, brede dører, romslig bad). Automatisk døråpner til hoveddør i 1. etg. Romslig heis. P-plass medfølger.
Innh.: Entré m/ skap, stue med utgang til balkong, kjøkken med hvitevarer, soverom med skap og fransk balkong, baderom med wc, servant, utslagsvask og skap.
Det er i borettslagets vedtekter satt som vilkår for å bli eier at eieren selv eller et medlem av husstanden er så bevegeleseshemmet at familien har behov for leilighet som spesialinnredet for bevegelseshemmede. Nærmere opplysninger ved megler.
Setra Borettslag består av 258 andelsleiligheter fordelt på fem bygninger. I tillegg kommer tre utleieleiligheter, 14 hybler og 28 næringslokaler. OBOS er forretningsfører.
Adkomst
Utfyllende informasjon om fellesgjeld og felleskostnader
Ta kontakt med megler for komplett informasjon
Nærområdet

Advokat Yngve Hanisch - Inaktiv
Annonsene kan være mangelfulle i forhold til lovpålagt opplysningsplikt. Før bindende avtale inngås oppfordres interessenter til å innhente komplett informasjon fra meglerforetaket, selger eller utleier.














