Bildegalleri

Unik, herskapelig og påkostet toppleilighet over 2 plan.
Inaktiv
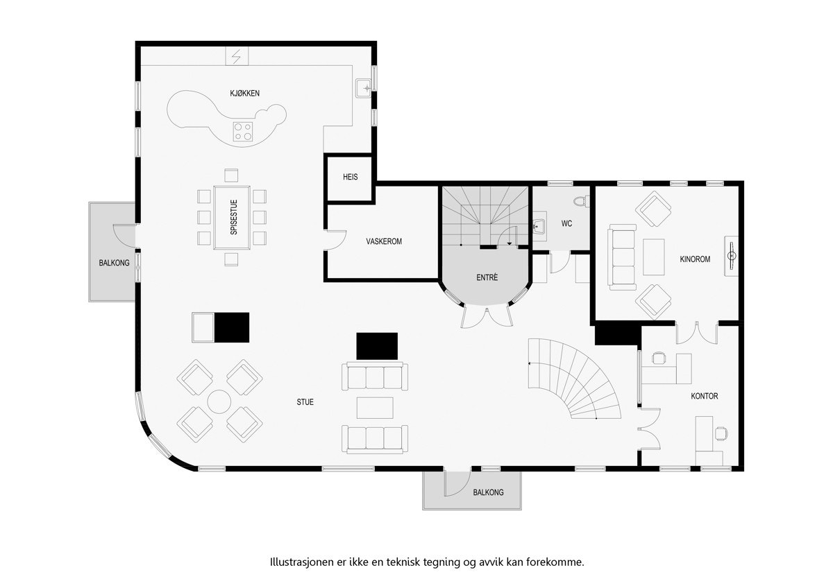
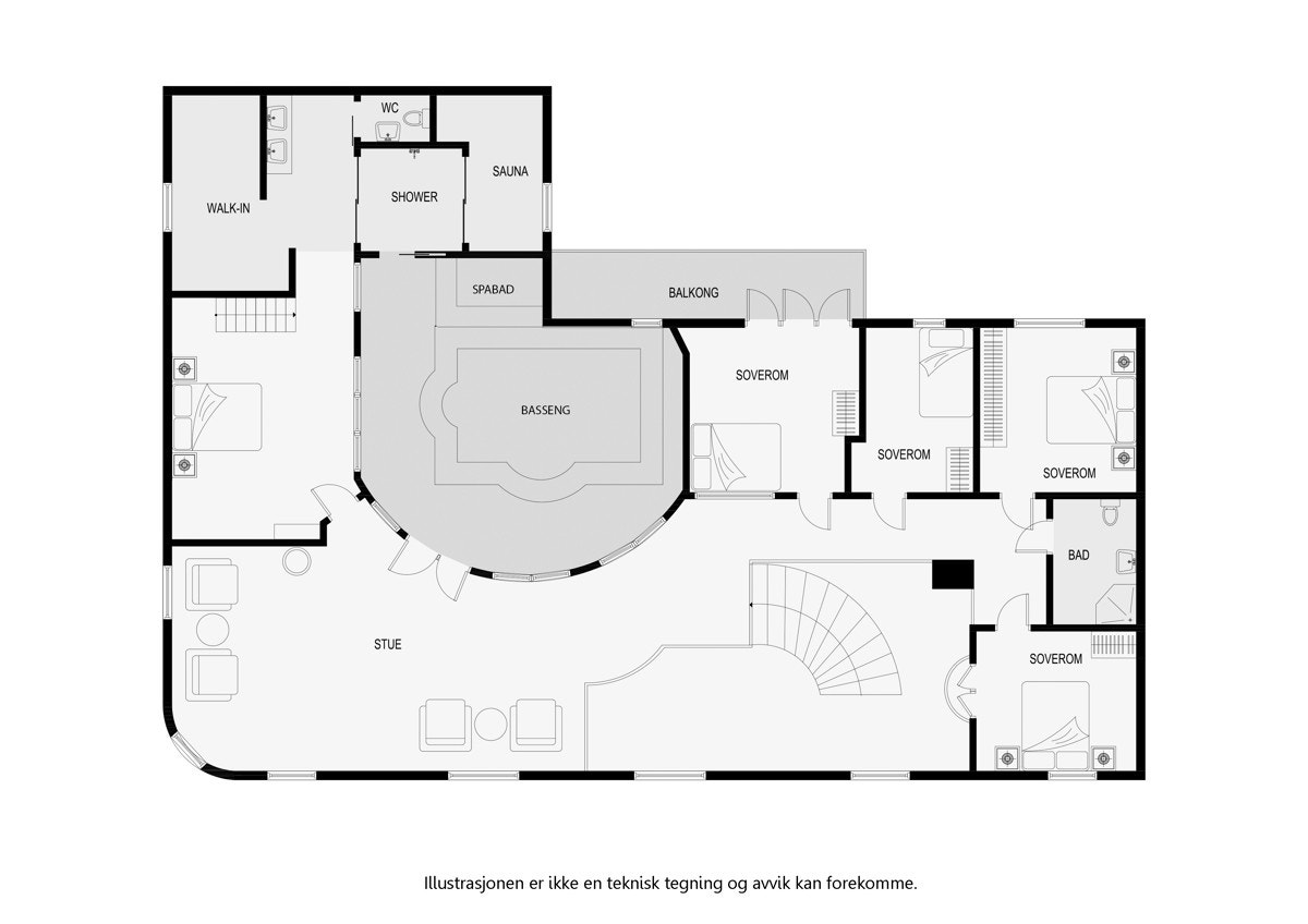
Herskapelig og unik toppleilighet. Privat heis. Spaavdeling med basseng/Jacuzzi. 2 garasjeplasser 3 parkeringsplasser
Prisantydning42 500 000 kr
Nøkkelinfo
- Boligtype
- Leilighet
- Eieform
- Eier (Selveier)
- Soverom
- 4
- Primærrom
- 404 m²
- Bruksareal
- 463 m²
- Etasje
- 3
- Byggeår
- 1904
- Energimerking
- G - Gul
- Tomteareal
- 723 m² (eiet)
- Bruttoareal
- 495 m²
- Boligselgerforsikring
- Ja
Fasiliteter
Balkong/Terrasse
Peis/Ildsted
Parkett
Heis
Ingen gjenboere
Barnevennlig
Rolig
Kabel-TV
Moderne
Sentralt
Garasje/P-plass
Bademulighet
Turterreng
Alarm
Offentlig vann/kloakk
Utsikt
Bredbåndstilknytning
Visning
For å sikre trygge visninger og ivareta smittevern, viser vi boliger kun til begrenset besøkende etter gitte forholdsregler.
Kontakt megler eller meld deg på visning i knappen visningspåmelding .
VisningspåmeldingOm boligen
Unik, herskapelig og påkostet toppleilighet over 2 plan med vakker utsikt over Trondheim. Gjennom en møysommelig byggeprosess fra 2010 til 2018 ble leiligheten ferdigstilt med bruk av eksklusive materialer og gjennomtenkte løsninger, leiligheten fremstår moderne men har samtidig beholdt sitt klassiske særpreg.
- I bakgården er det bygget egen parkeringskjeller med 2 parkeringsplasser
- Selve vinkjelleren har plass til ca. 2000 vinflasker og er levert av Vinoteca i Oslo
- Fra garasjen kan man ta privat heis opp i leiligheten
- Det innholdsrike kjøkkenet er laget på mål av møbelsnekker
- Spaavdelingen er innredet med motstrøms basseng og Jacuzzi
- Det er et omfattende integrert lydanlegg i vegger og himlinger i leiligheten. Det er brukt acoustiblok i oppbyggingen av hele leiligheten for å isolere mot støy
NB: Knappen for å vise hele beskrivelsen har kun en visuell effekt.
NB: Knappen for å vise hele beskrivelsen har kun en visuell effekt.
Salgsoppgaven beskriver vesentlig og lovpålagt informasjon om eiendommen
Se komplett salgsoppgaveNyttige lenker
Nærområdet

PrivatMegleren Benum & Johansen
Kun det beste på dine vegne
Annonseinformasjon
| FINN-kode | 221220104 |
|---|---|
| Sist endret | 17. nov. 2022 13:09 |
| Referanse | 164200082 |
Annonsene kan være mangelfulle i forhold til lovpålagt opplysningsplikt. Før bindende avtale inngås oppfordres interessenter til å innhente komplett informasjon fra meglerforetaket, selger eller utleier.






























































