Bildegalleri

Velkommen til Hovseterveien 96, presentert av EIE ved Alexander Tangstad.
Lekker 2-roms med innglasset balkong, nydelig utsikt, super planløsning & god standard. Ingen dok.avgift.
Nøkkelinfo
- Boligtype
- Leilighet
- Eieform
- Andel
- Soverom
- 1
- Primærrom
- 52 m²
- Bruksareal
- 60 m²
- Etasje
- 2
- Byggeår
- 1975
- Energimerking
- E - Rød
- Rom
- 3
- Tomteareal
- 9 655 m² (eiet)
Fasiliteter
Om boligen
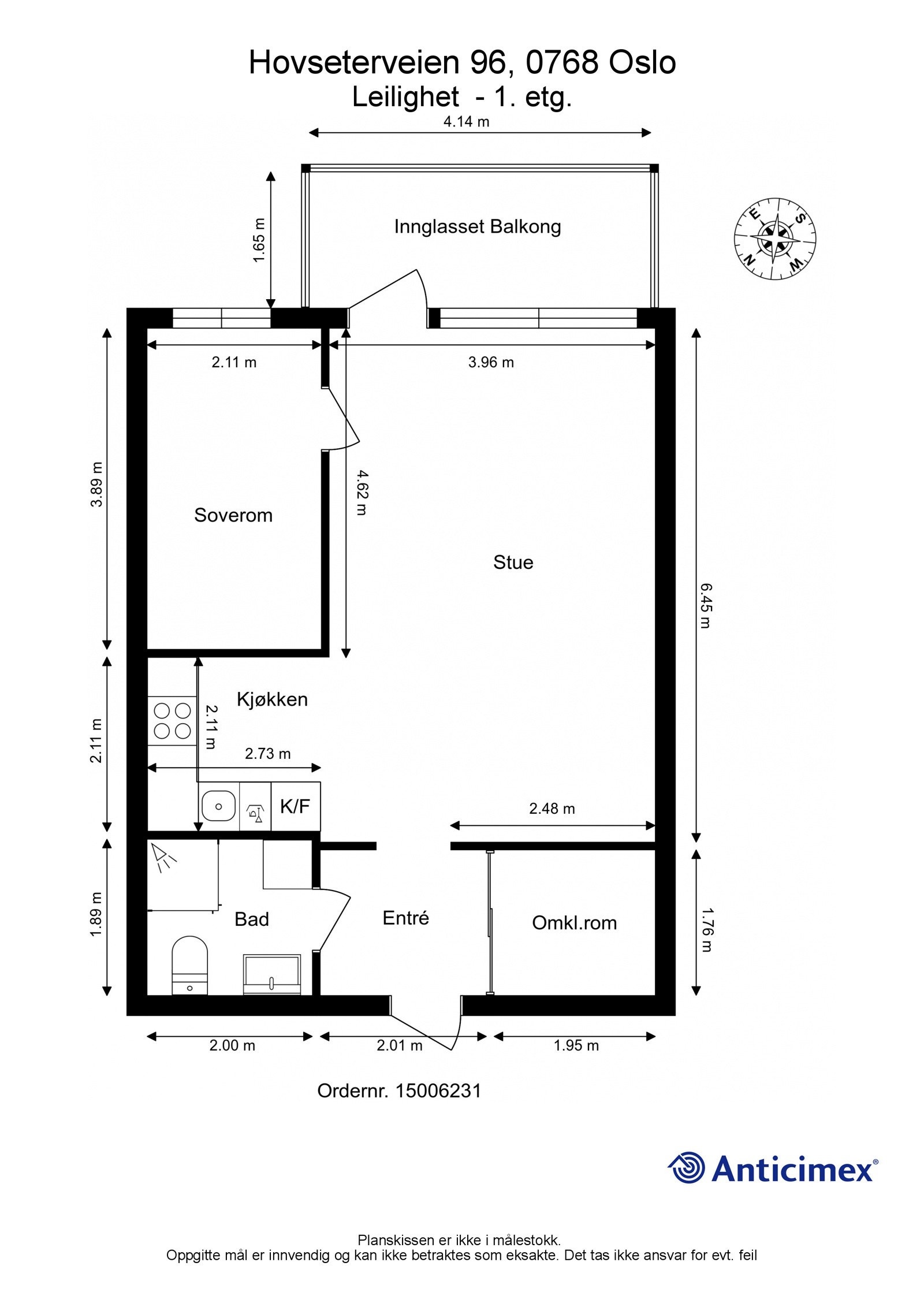
Velkommen til Hovseterveien 96 - en lekker og moderne 2-roms med attraktiv beliggenhet i et veletablert og barnevennlig boligområde på Hovseter med kort vei til det meste du trenger i hverdagen.
Leiligheten har betegnelse 1. etasje, men ligger i byggets 2. plan og byr på en herlig sydøst-vendt innglasset balkong på ca 7 kvm med flott utsyn over nærområdet.
- Flotte turområder
- Attraktivt borettslag
- Kort vei til buss & t-bane
- Bilfritt tun uten trafikkgjennomgang
- Nær butikker, skoler og barnehager
- treningsrom rett utenfor døren
- Bad og kjøkken fra 2014
- Fliser på bad og entré
- Walk-in-closet
- Nymalte flater
- 1 bod
Borettslaget er svært veldrevet med flere fellestilbud og felleslokaler for beboerne. I borettslaget finner du også to deilige takterrasser som kan benyttes av alle beboerne.
Salgsoppgaven beskriver vesentlig og lovpålagt informasjon om eiendommen
Se komplett salgsoppgaveNyttige lenker
Nærområdet
Mekleriet Oslo
Annonseinformasjon
| FINN-kode | 220781142 |
|---|---|
| Sist endret | 15. aug. 2021 00:29 |
| Referanse | 99210057 |
Annonsene kan være mangelfulle i forhold til lovpålagt opplysningsplikt. Før bindende avtale inngås oppfordres interessenter til å innhente komplett informasjon fra meglerforetaket, selger eller utleier.








































