Bildegalleri

Velkommen til Hovseterveien 102 B, presentert av Vegar Giæver og Eie avd. Røa
Solgt
Hovseter / Røa
Lys og gjennomgående 3-roms med oppussingsbehov | Gode muligheter og stort potensial | Sydvestvendt balkong | Parkering
Prisantydning4 100 000 kr
Nøkkelinfo
- Boligtype
- Leilighet
- Eieform
- Andel
- Soverom
- 2
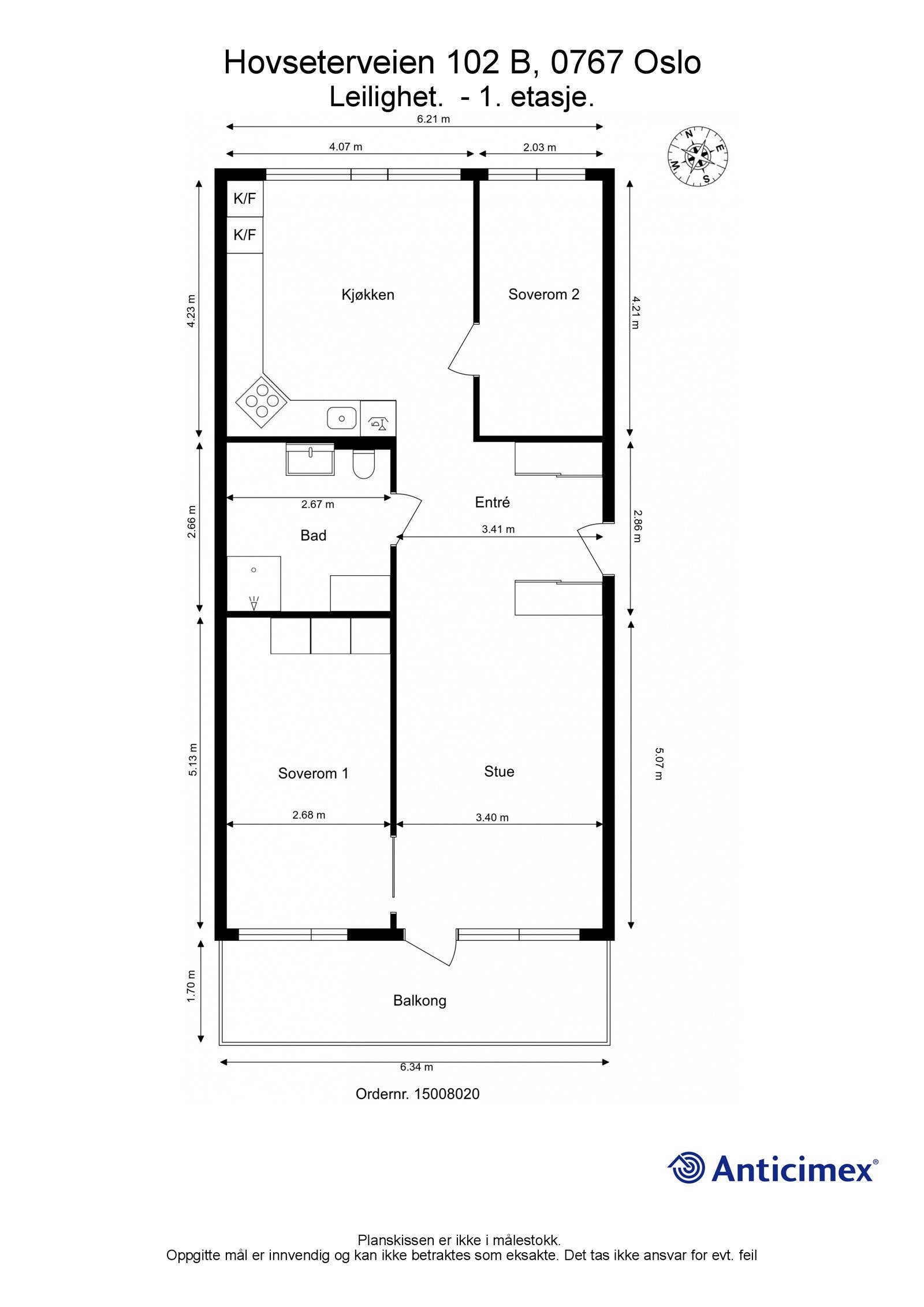
- Primærrom
- 76 m²
- Bruksareal
- 76 m²
- Etasje
- 2
- Byggeår
- 1976
- Energimerking
- E - Rød
- Tomteareal
- 9 655 m² (eiet)
- Bruttoareal
- 83 m²
Fasiliteter
Balkong/Terrasse
Parkett
Barnevennlig
Rolig
Kabel-TV
Sentralt
Garasje/P-plass
Turterreng
Bredbåndstilknytning
Om boligen
Velkommen til Hovseterveien 102 B - en romslig 3-roms i attraktive Kollektivet borettslag.
Dette er boligen for deg som ønsker å bo litt utenfor sentrum, med umiddelbar nærhet til marka, samtidig som det er kort gåavstand til T-bane og buss.
KORT FORTALT
- Oppussingsobjekt med store rom og fin planløsning
- Sydvestvendt balkong på ca. 11 kvm
- Usjenert og rolig beliggenhet
- Godt drevet borettslag
- Kabel-tv, internett og varmtvann inkl. i felleskostnadene
- Hyggelig og sosialt borettslag med flere fellesfasiliteter som treningsrom, selskapslokale, Camilla Café, treningsrom og hybler til leie for beboerne
- Flere butikker- og servicetilbud i området
NB: Knappen for å vise hele beskrivelsen har kun en visuell effekt.
NB: Knappen for å vise hele beskrivelsen har kun en visuell effekt.
Salgsoppgaven beskriver vesentlig og lovpålagt informasjon om eiendommen
Se komplett salgsoppgaveNyttige lenker
Nærområdet
EIE eiendomsmegling Røa, Skøyen og Ullern
Annonseinformasjon
| FINN-kode | 219017873 |
|---|---|
| Sist endret | 03. juni 2021 00:53 |
| Referanse | 50210098 |
Annonsene kan være mangelfulle i forhold til lovpålagt opplysningsplikt. Før bindende avtale inngås oppfordres interessenter til å innhente komplett informasjon fra meglerforetaket, selger eller utleier.




























