Bildegalleri

Velkommen til Storelvveien 8 - en arkitekttegnet enebolig med beliggenhet av ypperste klasse
Solgt
Kongsvik
Arkitekttegnet enebolig fra 2006 med vakker beliggenhet i Kongsvik - terrasse med jacuzzi - strålende utsikt - garasje
Prisantydning2 950 000 kr
Nøkkelinfo
- Boligtype
- Enebolig
- Eieform
- Selveier
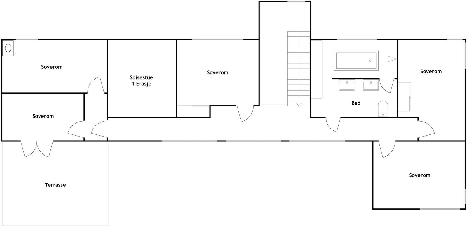
- Soverom
- 5
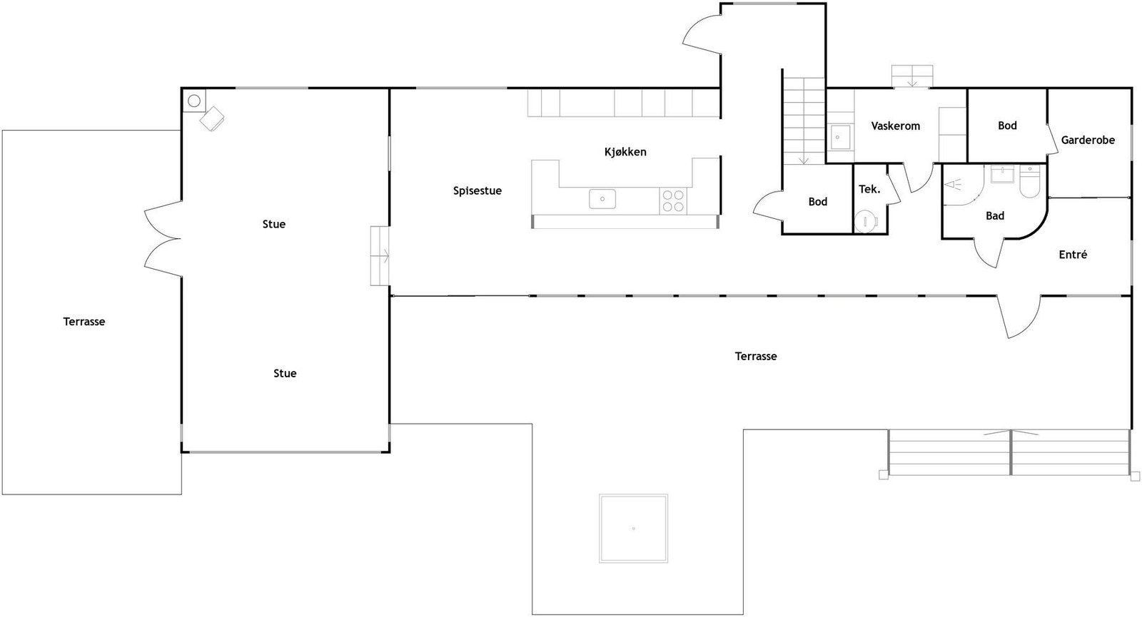
- Primærrom
- 192 m²
- Bruksareal
- 199 m²
- Byggeår
- 2006
- Energimerking
- D - Gul
- Rom
- 6
- Tomteareal
- 2 029 m² (eiet)
- Bruttoareal
- 211 m²
Fasiliteter
Barnevennlig
Balkong/Terrasse
Garasje/P-plass
Offentlig vann/kloakk
Parkett
Peis/Ildsted
Turterreng
Utsikt
Bredbåndstilknytning
Moderne
Rolig
Balansert ventilasjon
Om boligen
EiendomsMegler 1 og Runar Bjørkelund har gleden av å presentere Storelvveien 8 - En arkitekttegnet enebolig med fin beliggenhet i vakre Kongsvik.
Moderne, arkitekttegnet enebolig fra 2006. Boligen er innholdsrik med særegen utforming og planløsning. Her får du store vinduer i front mot den vakre utsikten, samt en stor terrasse på fremsiden med plassbygd Jacuzzi. Med fem soverom kan denne boligen huse storfamilien og gjester.
Eiendommen ligger fint i et rolig boligområde i Kongsvik. Den lokale skolen og barnehagen ligger henholdsvis ca. 3 km og ca. 2 km unna eiendommen. Med naturen og mange flotte fjelltopper som nærmeste nabo har man en perfekt beliggenhet for å komme seg ut på tur. Gode solforhold på eiendommen, samt en helt fantastisk utsikt over Tjeldsundet og nærliggende områder.
Vi gleder oss til å se deg og dine - Velkommen til visning!
Moderne, arkitekttegnet enebolig fra 2006. Boligen er innholdsrik med særegen utforming og planløsning. Her får du store vinduer i front mot den vakre utsikten, samt en stor terrasse på fremsiden med plassbygd Jacuzzi. Med fem soverom kan denne boligen huse storfamilien og gjester.
Eiendommen ligger fint i et rolig boligområde i Kongsvik. Den lokale skolen og barnehagen ligger henholdsvis ca. 3 km og ca. 2 km unna eiendommen. Med naturen og mange flotte fjelltopper som nærmeste nabo har man en perfekt beliggenhet for å komme seg ut på tur. Gode solforhold på eiendommen, samt en helt fantastisk utsikt over Tjeldsundet og nærliggende områder.
Vi gleder oss til å se deg og dine - Velkommen til visning!
NB: Knappen for å vise hele beskrivelsen har kun en visuell effekt.
NB: Knappen for å vise hele beskrivelsen har kun en visuell effekt.
Salgsoppgaven beskriver vesentlig og lovpålagt informasjon om eiendommen
Se komplett salgsoppgaveNyttige lenker
Nærområdet
EiendomsMegler 1 Harstad
Vi loser deg trygt gjennom hele boligsalget
Annonsene kan være mangelfulle i forhold til lovpålagt opplysningsplikt. Før bindende avtale inngås oppfordres interessenter til å innhente komplett informasjon fra meglerforetaket, selger eller utleier.



















































