Bildegalleri

Velkommen til Hospitsveien 10 A - Helt greit perspektiv fra kjøkkenbordet.
Voksenlia - Teglstensvilla m/egen gjesteleilighet - 5 sov - 4 bad - 3 peiser - Hybel - Dobbel garasje
Nøkkelinfo
- Boligtype
- Enebolig
- Eieform
- Eier (Selveier)
- Soverom
- 5
- Primærrom
- 355 m²
- Bruksareal
- 372 m²
- Byggeår
- 1997
- Tomteareal
- 1 046 m² (eiet)
- Bruttoareal
- 419 m²
- Boligselgerforsikring
- Ja
Fasiliteter
Visning
Om boligen
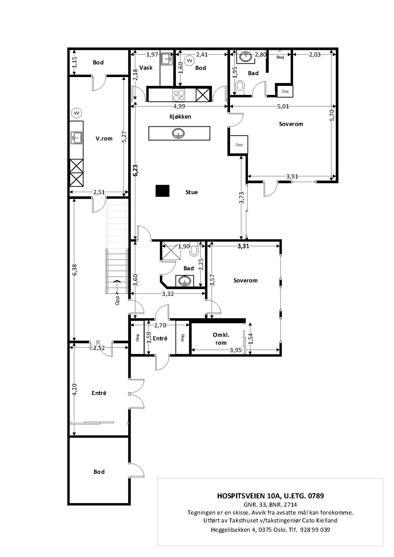
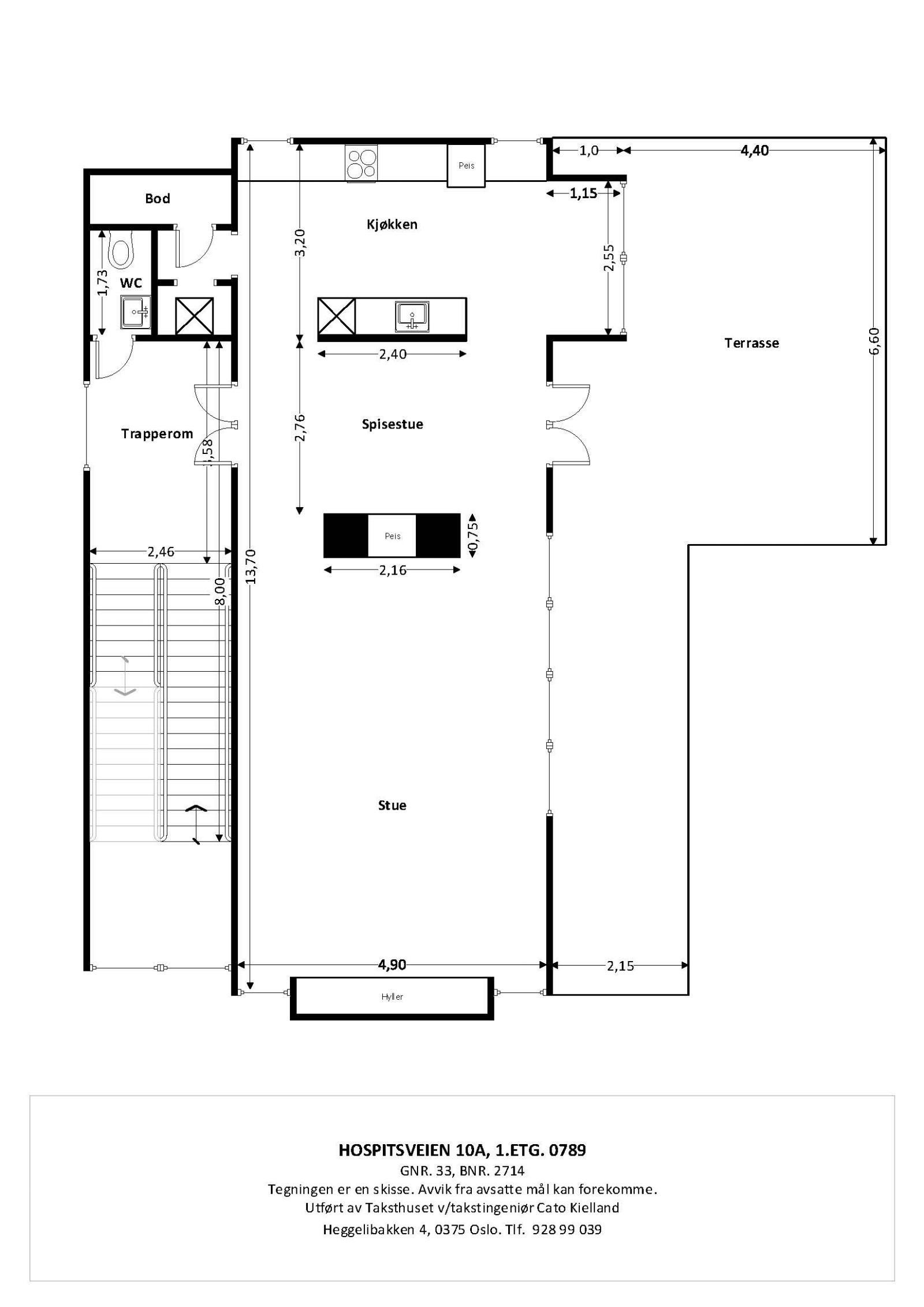
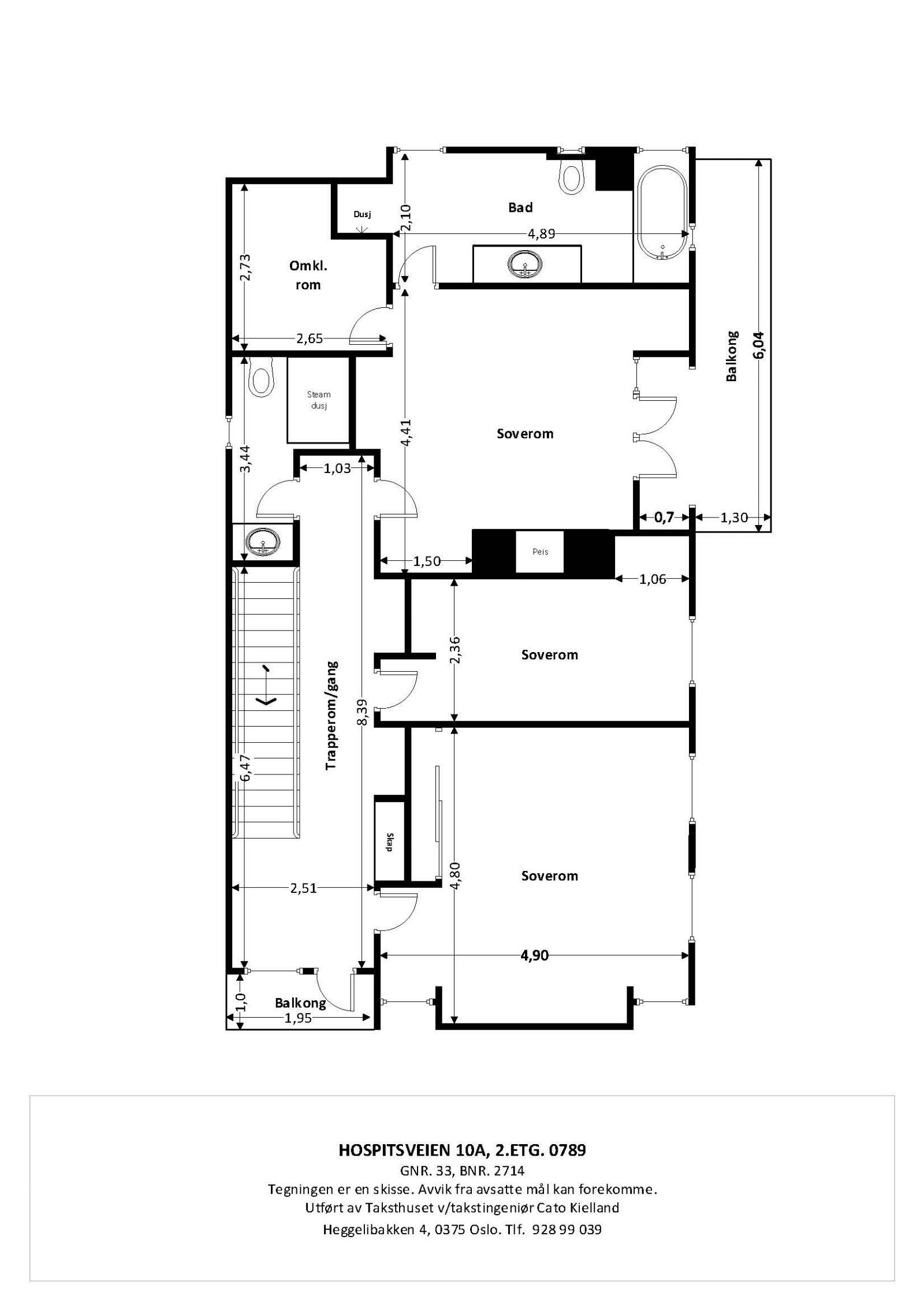
Representativ villa med panoramautsikt over Oslo og fjorden beliggende i Voksenlia rett ved Holmenkollen skianlegg. Svært gjennomført materialvalg, standard og utførelse. Inngangsplanet inneholder romslig entré/hall med garderobe, separat vaskerom og boder. Gjesteavdeling i u-etg (kan også brukes som en separat leilighet m/egen inngang) m/stue, åpent kjøkken, to soverom og to bad. I hovedetasjen er det stor stue/spisestue med gjennomgående gruepeis, lekkert Uno form kjøkken med peis og "alt" av integrerte hvitevarer fra Miele.Stor flislagt panoramaterrasse både fra stue og kjøkken. I toppetasjen er eksklusiv masteravdeling med peis, walk-in og eget lekkert bad samt balkong. For øvrig to store soverom (kan deles til tre) og bad/wc.
Salgsoppgaven beskriver vesentlig og lovpålagt informasjon om eiendommen
Se komplett salgsoppgaveNyttige lenker
Nærområdet
Advokat Ek
Annonsene kan være mangelfulle i forhold til lovpålagt opplysningsplikt. Før bindende avtale inngås oppfordres interessenter til å innhente komplett informasjon fra meglerforetaket, selger eller utleier.
































