Bildegalleri

Velkommen til Marselis' gate 31A Meget sjarmerende 2-roms frontleilighet mot Kubaparken med peisovn og ekstra takhøyde - populær, skjermet og urban beliggenhet i rolig gate.
Solgt
Beste Grünerløkka
Meget sjarmerende 2-R frontleilighet med peisovn & ekstra takhøyde - populær, skjermet og urban beliggenhet i rolig gate
Prisantydning4 180 000 kr
Nøkkelinfo
- Boligtype
- Leilighet
- Eieform
- Andel
- Soverom
- 1
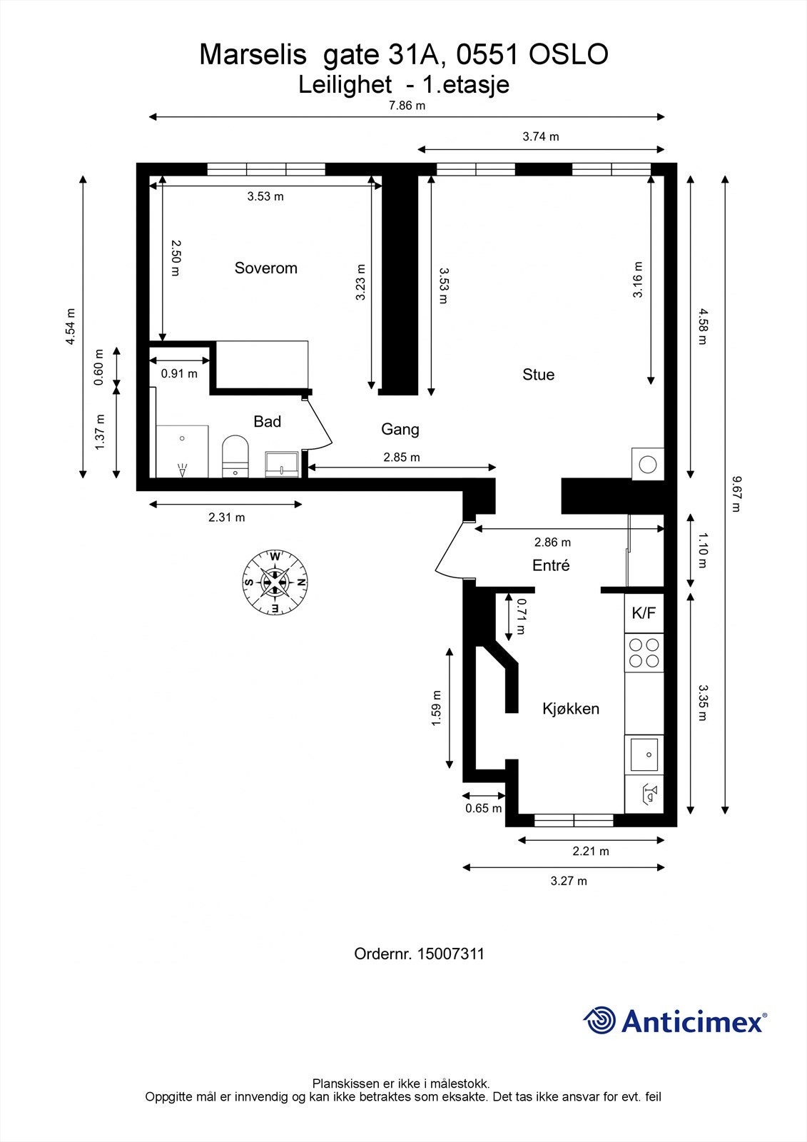
- Primærrom
- 51 m²
- Bruksareal
- 51 m²
- Etasje
- 1
- Byggeår
- 1904
- Energimerking
- G - Oransje
- Rom
- 2
- Tomteareal
- 594 m² (eiet)
- Bruttoareal
- 56 m²
Fasiliteter
Bredbåndstilknytning
Kjæledyr tillatt
Ingen gjenboere
Kabel-TV
Offentlig vann/kloakk
Parkett
Peis/Ildsted
Rolig
Sentralt
Utsikt
Turterreng
Om boligen
Velkommen til Marselis' gate 31A, en av de mest attraktive beliggenhetene på Grünerløkka! Dette er en meget sjarmerende 2-roms leilighet i en høy 1. etasje. Leiligheten oppleves som meget lys og luftig ettersom dette er en av frontleilighetene som vender mot Kubaparken. I tillegg har du store vindusflater som slipper inn masse naturlig lys.
Innvendig får du en god romfølelse som følge av en sjenerøs takhøyde (2,9 meter) og gjennomgående og fin planløsning. Her er i tillegg montert en peisovn som gir en lun og god atmosfære. Leiligheten er malt i tidsriktige og delikate farger.
Viktige forhold:
- Lave omkostninger, ingen dokumentavgift.
- Meget veldrevet borettslag.
- IN-ordning, ved innfrielse av fellesgjelden vil fellesutgiftene reduseres til kr. 2 758,-
- God lagringsplass.
Innvendig får du en god romfølelse som følge av en sjenerøs takhøyde (2,9 meter) og gjennomgående og fin planløsning. Her er i tillegg montert en peisovn som gir en lun og god atmosfære. Leiligheten er malt i tidsriktige og delikate farger.
Viktige forhold:
- Lave omkostninger, ingen dokumentavgift.
- Meget veldrevet borettslag.
- IN-ordning, ved innfrielse av fellesgjelden vil fellesutgiftene reduseres til kr. 2 758,-
- God lagringsplass.
NB: Knappen for å vise hele beskrivelsen har kun en visuell effekt.
NB: Knappen for å vise hele beskrivelsen har kun en visuell effekt.
Salgsoppgaven beskriver vesentlig og lovpålagt informasjon om eiendommen
Se komplett salgsoppgaveNyttige lenker
Nærområdet
Nordvik Ullevål
Annonseinformasjon
| FINN-kode | 216056172 |
|---|---|
| Sist endret | 08. mai 2021 10:58 |
| Referanse | NOP23.21105 |
Annonsene kan være mangelfulle i forhold til lovpålagt opplysningsplikt. Før bindende avtale inngås oppfordres interessenter til å innhente komplett informasjon fra meglerforetaket, selger eller utleier.






































