Bildegalleri

Velkommen til den nye Villa Bergstuen - presentert av Stian Pøhner og Torstein Kirud
Solgt
"Villa Bergstuen" på Svartskog
Moderne atriumsvilla på ett plan i naturskjønne og idylliske omgivelser med sjøen som nærmeste nabo.En sjelden anledning
Prisantydning24 000 000 kr
Nøkkelinfo
- Boligtype
- Enebolig
- Eieform
- Selveier
- Soverom
- 4
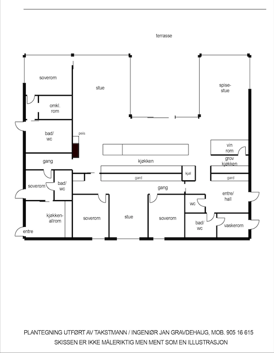
- Primærrom
- 240 m²
- Bruksareal
- 241 m²
- Byggeår
- 2018
- Tomteareal
- 2 481 m² (eiet)
- Bruttoareal
- 250 m²
Fasiliteter
Balkong/Terrasse
Barnevennlig
Bredbåndstilknytning
Båtplass
Garasje/P-plass
Hage
Kjæledyr tillatt
Ingen gjenboere
Kabel-TV
Offentlig vann/kloakk
Parkett
Peis/Ildsted
Rolig
Sentralt
Utsikt
Bademulighet
Fiskemulighet
Strandlinje
Turterreng
Lademulighet
Om boligen
En sjønær og frittstående atriumsvilla (2018) i naturskjønne og idylliske omgivelser i Bunnefjorden ved Ingierstrand. Det er vidstrakt utsikt mot syd og vest, helt til Oslo/ Holmenkollen i nord. Her har du sjøen som nærmeste nabo, samt strandrett og båtfeste.
Boligen har en gjennomgående høy standard over det hele med delikate farge- og materialvalg. Villaen fremstår som helhetlig og gjennomført, og er særdeles godt planlagt ned til hver minste detalj. Byggeprosessen bærer preg av god planlegging og med et meget godt håndverk. Formålsparagrafen i arbeidet har vært "høy og varig kvalitet, god design, sømløs overgang mellom inne-og-ute, og moderne, skreddersydde løsninger".
En eiendom utenom det vanlige i omgivelser der stillheten og fuglekvitter regjerer. Kort vei til Oslo/ Kolbotn.
Boligen har en gjennomgående høy standard over det hele med delikate farge- og materialvalg. Villaen fremstår som helhetlig og gjennomført, og er særdeles godt planlagt ned til hver minste detalj. Byggeprosessen bærer preg av god planlegging og med et meget godt håndverk. Formålsparagrafen i arbeidet har vært "høy og varig kvalitet, god design, sømløs overgang mellom inne-og-ute, og moderne, skreddersydde løsninger".
En eiendom utenom det vanlige i omgivelser der stillheten og fuglekvitter regjerer. Kort vei til Oslo/ Kolbotn.
NB: Knappen for å vise hele beskrivelsen har kun en visuell effekt.
NB: Knappen for å vise hele beskrivelsen har kun en visuell effekt.
Salgsoppgaven beskriver vesentlig og lovpålagt informasjon om eiendommen
Se komplett salgsoppgaveNyttige lenker
Nærområdet
Nordvik Frogner
Annonseinformasjon
| FINN-kode | 216000325 |
|---|---|
| Sist endret | 01. mai 2021 12:04 |
| Referanse | NOP14.21320 |
Annonsene kan være mangelfulle i forhold til lovpålagt opplysningsplikt. Før bindende avtale inngås oppfordres interessenter til å innhente komplett informasjon fra meglerforetaket, selger eller utleier.






































