Bildegalleri

Nordvik Eiendomsmegling har gleden av å presentere Skøyenveien 1G!
Solgt
HEGGELI/FROGNERPARKEN
"Townhouse"/Halvpart tomannsbolig m barnevennlig beliggenhet, rett ved Frognerparken! Garasjeplass. 4sov/2bad. Gasspeis.
Prisantydning14 750 000 kr
Nøkkelinfo
- Boligtype
- Tomannsbolig
- Eieform
- Eier (Selveier)
- Soverom
- 4
- Primærrom
- 150 m²
- Bruksareal
- 151 m²
- Byggeår
- 2008
- Rom
- 6
- Tomteareal
- 2 702 m² (eiet)
- Bruttoareal
- 169 m²
Fasiliteter
Balkong/Terrasse
Barnevennlig
Bredbåndstilknytning
Garasje/P-plass
Hage
Kjæledyr tillatt
Kabel-TV
Offentlig vann/kloakk
Parkett
Peis/Ildsted
Rolig
Sentralt
Turterreng
Lademulighet
Om boligen
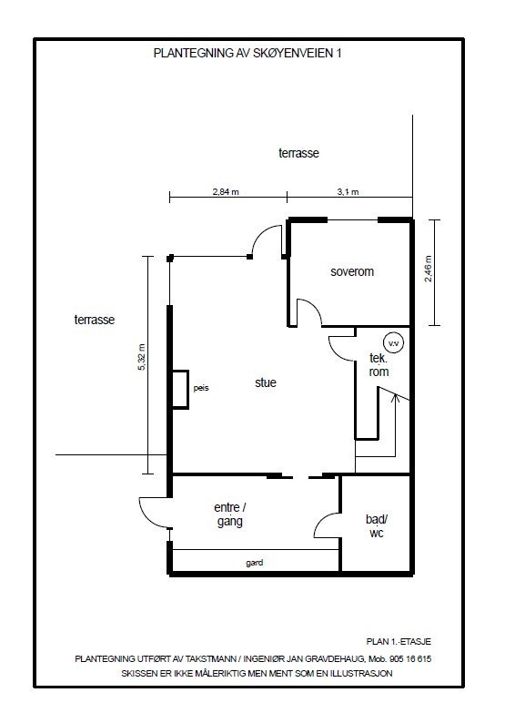
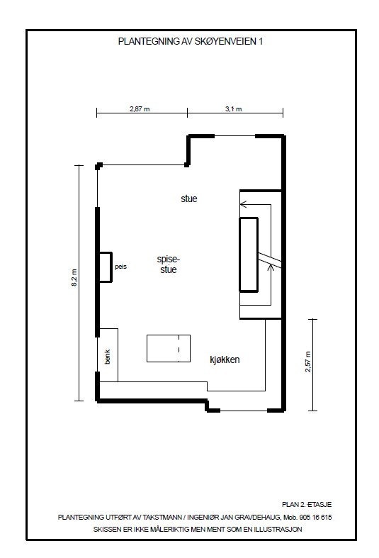
"Townhouse"/vertikaldelt tomannsbolig bygget i 2008 på 151 kvm med 4 soverom, 2 baderom, garasjeplass og stor markterrasse. Boligen er over tre plan og har en moderne stil med en meget funksjonell og god planløsning.
Her bor du tilbaketrukket og barnevennlig til i fredelig villaområde med gode oppvekstsvilkår, kort gange til flotte turområder, skoler, barnehager og fritidstilbud. Perfekt for deg som trives litt utenfor bykjernen, men som samtidig liker å leve med nærhet til de sentrale deler av Oslo.
Verdt å merke seg:
- 2 gasspeiser
- Sentralstøvsuger
- Skøyen skolekrets
- Stor privat terrasse
- 4 soverom og 2 baderom
- Lekkert kjøkken fra Kvänum fra 2010
- Vertikaldelt tomannsbolig på 151 kvm fra 2008
- 1 biloppstillingsplass i felles garasjeanlegg. Mulighet for EL-billader
Her bor du tilbaketrukket og barnevennlig til i fredelig villaområde med gode oppvekstsvilkår, kort gange til flotte turområder, skoler, barnehager og fritidstilbud. Perfekt for deg som trives litt utenfor bykjernen, men som samtidig liker å leve med nærhet til de sentrale deler av Oslo.
Verdt å merke seg:
- 2 gasspeiser
- Sentralstøvsuger
- Skøyen skolekrets
- Stor privat terrasse
- 4 soverom og 2 baderom
- Lekkert kjøkken fra Kvänum fra 2010
- Vertikaldelt tomannsbolig på 151 kvm fra 2008
- 1 biloppstillingsplass i felles garasjeanlegg. Mulighet for EL-billader
NB: Knappen for å vise hele beskrivelsen har kun en visuell effekt.
NB: Knappen for å vise hele beskrivelsen har kun en visuell effekt.
Salgsoppgaven beskriver vesentlig og lovpålagt informasjon om eiendommen
Se komplett salgsoppgaveNyttige lenker
Nærområdet
Nordvik Frogner
Annonseinformasjon
| FINN-kode | 215986245 |
|---|---|
| Sist endret | 10. sep. 2021 09:52 |
| Referanse | NOP14.21298 |
Annonsene kan være mangelfulle i forhold til lovpålagt opplysningsplikt. Før bindende avtale inngås oppfordres interessenter til å innhente komplett informasjon fra meglerforetaket, selger eller utleier.













































