Bildegalleri

Bjørnveien 29B - Presentert av Privatmegleren Børke & Partners v/Hanne Borch-Nielsen
Attraktiv halvpart tomannsbolig m/eneboligfølelse - Stor, solrik hage - 4 soverom - Garasje - Kjeller m/egen inngang
Nøkkelinfo
- Boligtype
- Tomannsbolig
- Eieform
- Eier (Selveier)
- Soverom
- 4
- Primærrom
- 189 m²
- Bruksareal
- 194 m²
- Byggeår
- 1952
- Energimerking
- G - Rød
- Tomteareal
- 1 510 m² (eiet)
- Bruttoareal
- 220 m²
- Boligselgerforsikring
- Ja
Fasiliteter
Om boligen
Bjørnveien 29B ligger tilbaketrukket og skjermet i et rolig og svært attraktivt villastrøk på Slemdal. Boligen holder svært høy kvalitet med eksklusive løsninger og materialvalg. Stor og flat tomt uten innsyn og meget gode solforhold gjennom hele dagen og utover kvelden. Omgivelsene er ideelle for barnefamilier - her bor det barn i alle aldre, det er gode oppvekstsvilkår og et hyggelig bomiljø. Kort gangvei til barneskole, barnehager og fritidstilbud. 7-8 min. å gå til Slemdal med butikker og T-bane.
- Renovert 2012
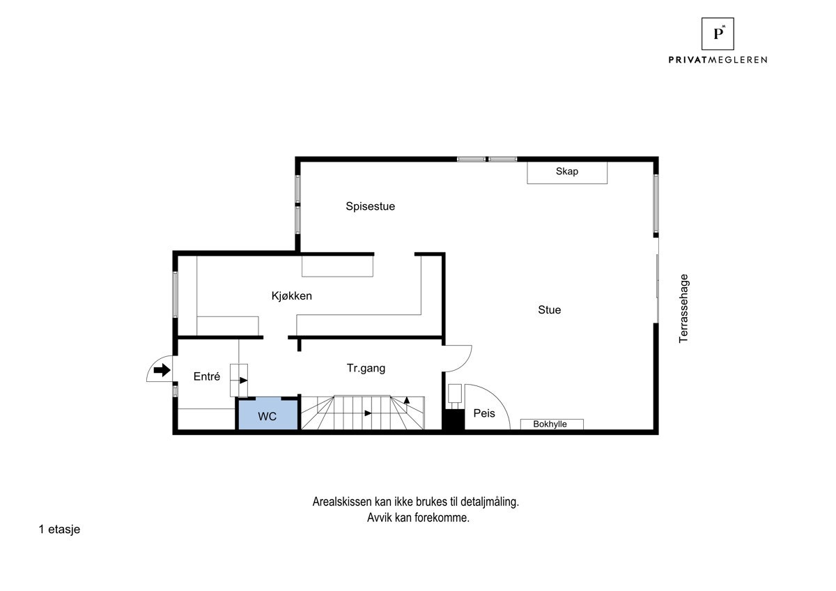
- God planløsning - 1. etasje er 89 kvm
- Plassbygde møbler i alle etasjer
- Enstavs parkett
- 4 soverom på samme plan
- Utgang til balkong fra hovedsov
- 2 bad, vaskerom og gjestetoalett
- Store vindusflater mot terrasse/hage
- Usjenert
- Kjelleretasje m/ egen inngang
- Garasje
- Parkering på egen gårdsplass
Salgsoppgaven beskriver vesentlig og lovpålagt informasjon om eiendommen
Se komplett salgsoppgaveNyttige lenker
Nærområdet
PrivatMegleren Bærum
Annonsene kan være mangelfulle i forhold til lovpålagt opplysningsplikt. Før bindende avtale inngås oppfordres interessenter til å innhente komplett informasjon fra meglerforetaket, selger eller utleier.

















































