Bildegalleri

Velkommen til Konventveien 22 A - Presentert av Cecilie Beckman ved Eie eiendomsmegling.
Solgt
Heggeli / Skøyen
Attraktiv enebolig i rekke | Solrik takterrasse 53 kvm | Utsikt | Hage | Praktikantdel | Garasje |Rolig og Barnevennlig
Prisantydning15 700 000 kr
Nøkkelinfo
- Boligtype
- Rekkehus
- Eieform
- Selveier
- Soverom
- 4
- Primærrom
- 160 m²
- Bruksareal
- 161 m²
- Byggeår
- 1961
- Energimerking
- F - Gul
- Tomteareal
- 477 m² (eiet)
- Bruttoareal
- 233 m²
Fasiliteter
Balkong/Terrasse
Peis/Ildsted
Parkett
Barnevennlig
Rolig
Moderne
Sentralt
Garasje/P-plass
Turterreng
Hage
Utsikt
Lademulighet
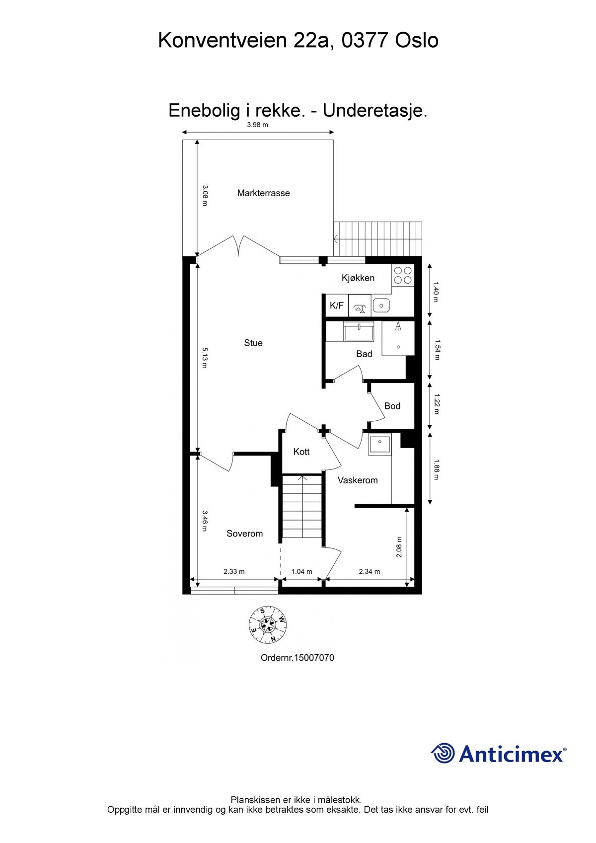
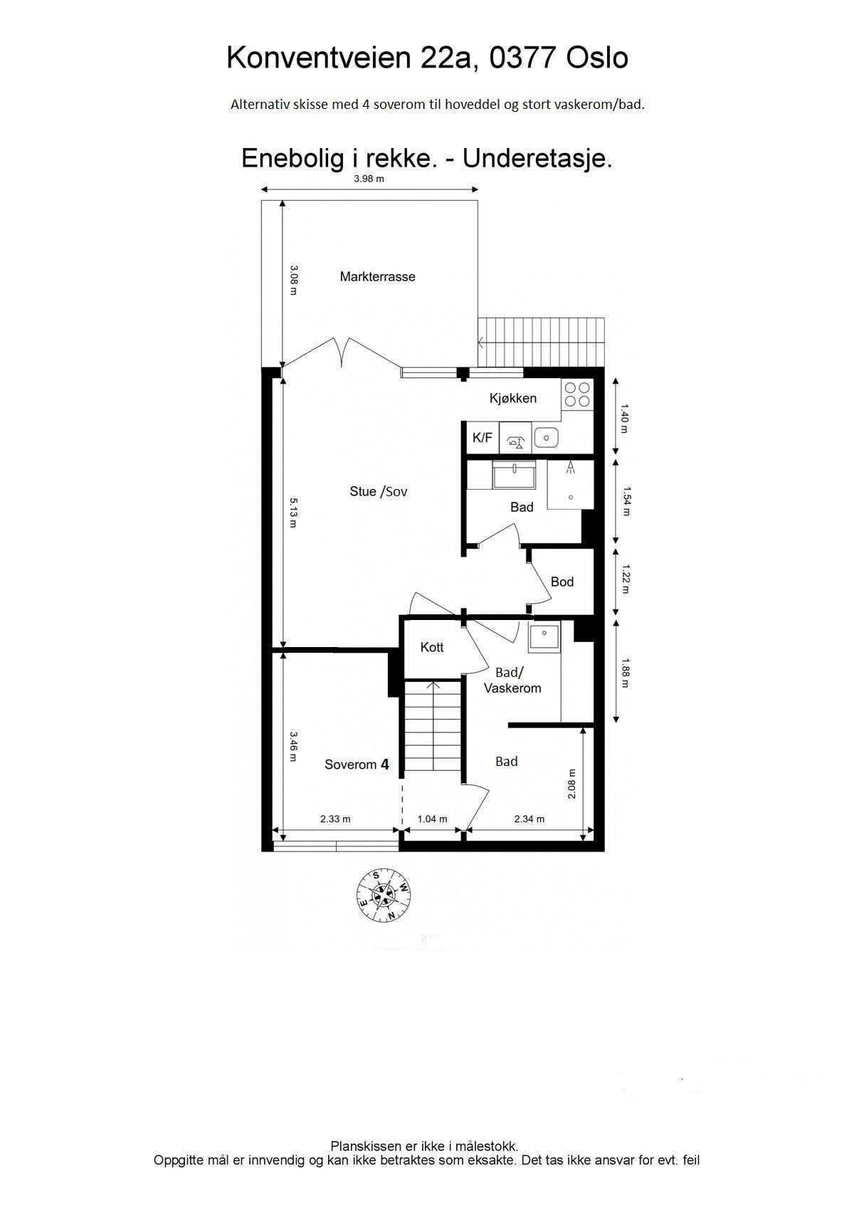
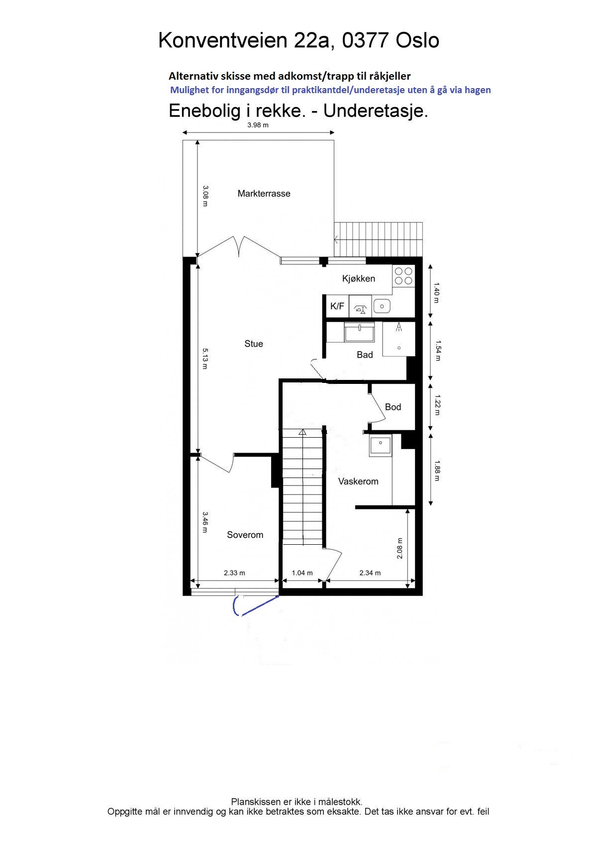
Om boligen
Funkisinspirert enebolig i rekke i særdeles attraktive omgivelser. Sentralt og rolig veletablert villastrøk med idylliske Frognerparken i gåavstand. Tiltalende og velholdt, praktisk og funksjonell planløsning over tre plan.
- Praktikantdel på ca. 37 kvm med egen inngang i underetasjen pt leid ut kr 11.300 /mnd
- Nydelig, solrik og privat takterrasse på hele 53 kvm
- Sydvestvendt markterrasse på ca. 12 kvm
- Pent opparbeidet og lettstelt privat hage
- Deleier av store felles grøntområder med trampoline, lekestue og lekestativ
- Egen garasje
- Montert El-bil lader (2021) ved gårdsrom
- Peisovn fra 2017
- Heltre eik stavparkett fra 2017
- Mobalpa kjøkken med integrerte hvitevarer fra 2017
- Nye vinduer, dører, kledning og isolasjon fra 2017
- Råkjeller ca. 52 kvm med 2.50-3m takhøyde
- Kort vei til t-bane, buss, trikk og tog
NB: Knappen for å vise hele beskrivelsen har kun en visuell effekt.
NB: Knappen for å vise hele beskrivelsen har kun en visuell effekt.
Salgsoppgaven beskriver vesentlig og lovpålagt informasjon om eiendommen
Se komplett salgsoppgaveNyttige lenker
Nærområdet
EIE eiendomsmegling Vinderen
Annonsene kan være mangelfulle i forhold til lovpålagt opplysningsplikt. Før bindende avtale inngås oppfordres interessenter til å innhente komplett informasjon fra meglerforetaket, selger eller utleier.




































































