Bildegalleri

Velkommen til Lindeallèen 17a!
Stor 1/2 tomannsbolig med solrik hage og flott utsikt | Hybeldel | Bel. i stille blindvei | Garasje og parkering
Nøkkelinfo
- Boligtype
- Tomannsbolig
- Eieform
- Eier (Selveier)
- Soverom
- 6
- Primærrom
- 203 m²
- Bruksareal
- 204 m²
- Byggeår
- 1980
- Energimerking
- F - Rød
- Rom
- 8
- Tomteareal
- 938 m² (eiet)
- Bruttoareal
- 222 m²
- Boligselgerforsikring
- Ja
Fasiliteter
Om boligen
Vertikaldelt tomannsbolig med meget flotte sol -og utsiktsforhold. Tilbaketrukket og attraktivt beliggenhet i barnevennlig blindvei på Grefsen. Boligen er omkranset av pent opparbeidet hage med gressplen og beplantning. Fra eiendommen er det gangavstand til nærbutikk, Storo Storsenter og servicetilbud. Kort vei til trikk på Disen, T-bane på Storo, bussholdeplass og tog fra Grefsen stasjon. Lett tilgang til marka. Grefsen barneskole, Morellbakken ungdomsskole og flere barnehager i nærmiljø.
Innholdsrik familiebolig med en gjennomgående god standard. Boligen fremstår som lys, moderne og har tidsriktige farge- og materialvalg. Oppussing utført i perioden 2001-2003 og i 2018-2020.
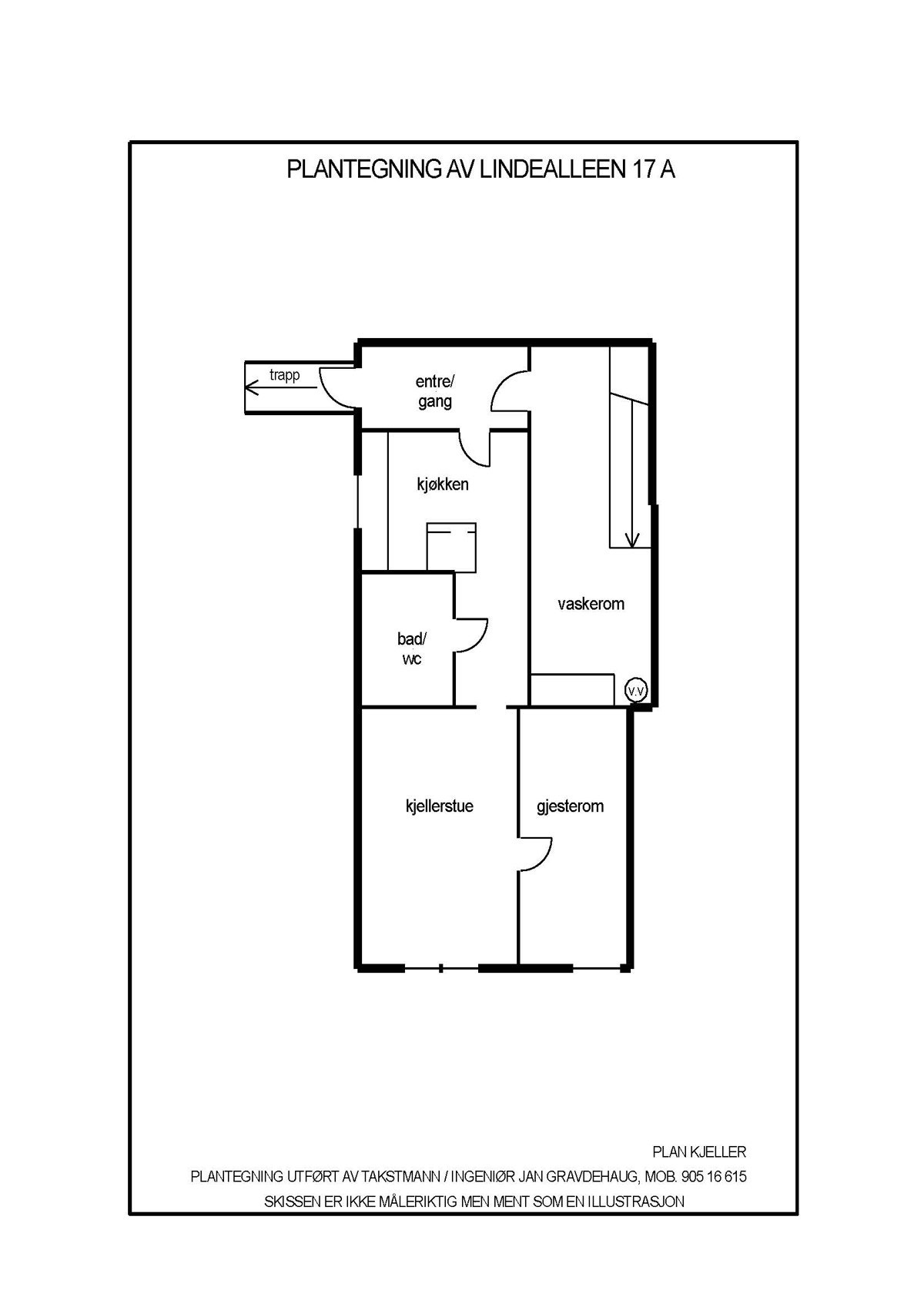
Inneholder blant annet 5 soverom, 2 terrasser, stort kjøkken, vaskerom, 3 bad, flere stuer og hybeldel i kjeller.
Salgsoppgaven beskriver vesentlig og lovpålagt informasjon om eiendommen
Se komplett salgsoppgaveNyttige lenker
Nærområdet
EiendomsMegler 1 Sør-Norge avd Ullevål
Annonseinformasjon
| FINN-kode | 215319248 |
|---|---|
| Sist endret | 30. apr. 2021 13:53 |
| Referanse | 129210181 |
Annonsene kan være mangelfulle i forhold til lovpålagt opplysningsplikt. Før bindende avtale inngås oppfordres interessenter til å innhente komplett informasjon fra meglerforetaket, selger eller utleier.





























































