Bildegalleri

Velkommen til Gabels gate 1!
Solgt
Spennende selveier hjørneleilighet med moderniseringsbehov. God takhøyde, stukkatur, rosett og ildsted. Sentral og rolig
Prisantydning7 500 000 kr
Nøkkelinfo
- Boligtype
- Leilighet
- Eieform
- Eier (Selveier)
- Soverom
- 2
- Primærrom
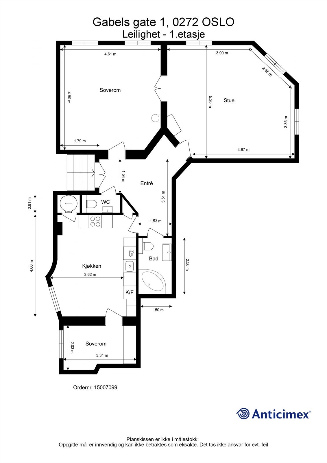
- 91 m²
- Bruksareal
- 93 m²
- Etasje
- 1
- Byggeår
- 1900
- Energimerking
- G - Rød
- Rom
- 3
- Tomteareal
- 531 m² (eiet)
- Bruttoareal
- 97 m²
Fasiliteter
Barnevennlig
Bredbåndstilknytning
Offentlig vann/kloakk
Peis/Ildsted
Rolig
Sentralt
Om boligen
Velkommen til Gabels gate 1!
Dette er en romslig 3-roms hjørneleilighet med store vinduer som gir godt med lys. Beliggende på hjørnet i rolig sidegate på Skillebekk.
Leiligheten trenger modernisering, men har unike detaljer som stukkatur, rosett og god takhøyde.
Kjøkken med integrerte hvitevarer. Flislagt bad med badekar, servant og toalett. I tillegg separat toalett i gangen.
Hovedsoverom med doble dører inn til stuen. Lys hjørnestue med ildsted.
Soverom to vender inn mot rolig bakgård.
Leiligheten disponerer to romslige boder og har egen inngang inn fra felles inngangsparti.
Dette er en romslig 3-roms hjørneleilighet med store vinduer som gir godt med lys. Beliggende på hjørnet i rolig sidegate på Skillebekk.
Leiligheten trenger modernisering, men har unike detaljer som stukkatur, rosett og god takhøyde.
Kjøkken med integrerte hvitevarer. Flislagt bad med badekar, servant og toalett. I tillegg separat toalett i gangen.
Hovedsoverom med doble dører inn til stuen. Lys hjørnestue med ildsted.
Soverom to vender inn mot rolig bakgård.
Leiligheten disponerer to romslige boder og har egen inngang inn fra felles inngangsparti.
NB: Knappen for å vise hele beskrivelsen har kun en visuell effekt.
NB: Knappen for å vise hele beskrivelsen har kun en visuell effekt.
Salgsoppgaven beskriver vesentlig og lovpålagt informasjon om eiendommen
Se komplett salgsoppgaveNyttige lenker
Nærområdet
Krogsveen Majorstuen og Oslo Vest
Verdien av en god megler.
Annonseinformasjon
| FINN-kode | 215251626 |
|---|---|
| Sist endret | 27. aug. 2021 06:39 |
| Referanse | KR40.2199 |
Annonsene kan være mangelfulle i forhold til lovpålagt opplysningsplikt. Før bindende avtale inngås oppfordres interessenter til å innhente komplett informasjon fra meglerforetaket, selger eller utleier.






































