Bildegalleri

Velkommen til Sørbyhaugen 4, en stor og påkostet familiebolig over 3 plan med sentral beliggenhet i grønne omgivelser.
Inaktiv
Smestad/Sørbyhaugen
Romslig og påkostet familiebolig over 3 plan - grønn og avskjermet hage - dobbeltgarasje - Underetg. m/ egen inngang.
Prisantydning18 950 000 kr
Nøkkelinfo
- Boligtype
- Enebolig
- Eieform
- Eier (Selveier)
- Soverom
- 4
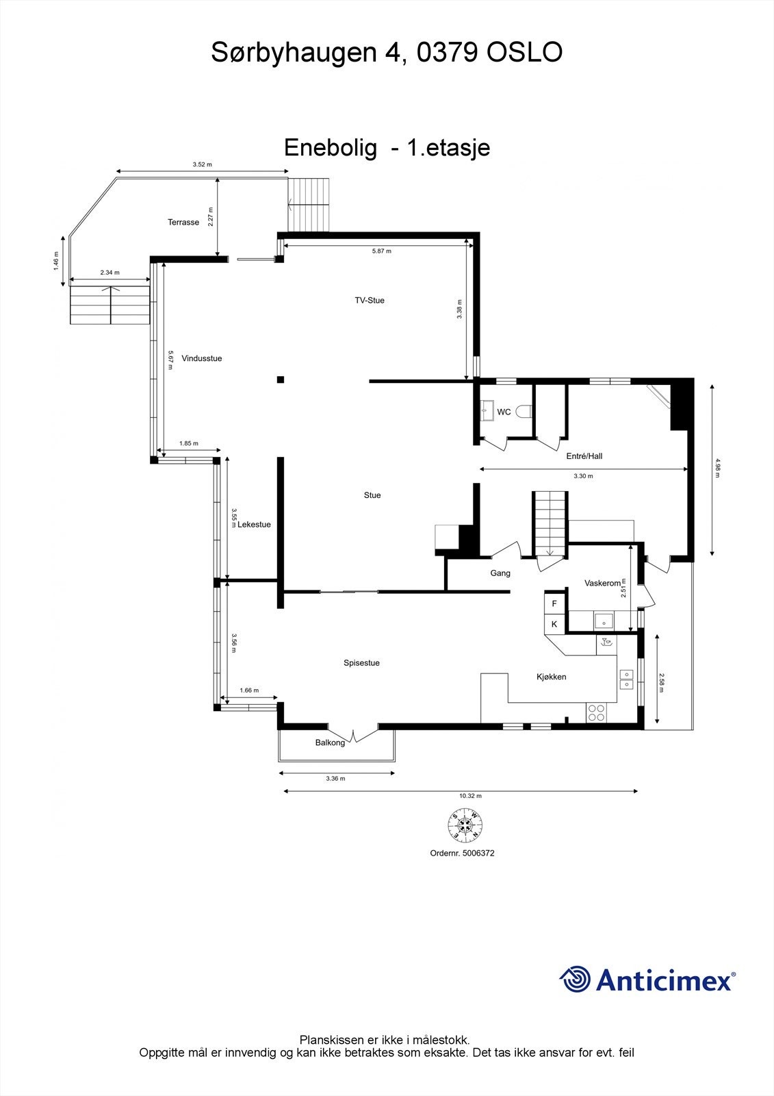
- Primærrom
- 368 m²
- Bruksareal
- 374 m²
- Byggeår
- 1933
- Energimerking
- G - Rød
- Rom
- 8
- Tomteareal
- 1 157 m² (eiet)
- Bruttoareal
- 406 m²
Fasiliteter
Balkong/Terrasse
Barnevennlig
Bredbåndstilknytning
Garasje/P-plass
Hage
Kjæledyr tillatt
Offentlig vann/kloakk
Parkett
Peis/Ildsted
Rolig
Sentralt
Turterreng
Visning
Vi ønsker trygge visninger og minst mulig smitterisiko. For å hindre spredning av koronaviruset gjennomføres visningen individuelt. Meld deg på visning vha lenken Visningspåmelding eller kontakt meg på tlf. eller e-post for å avtale tidspunkt. Er du i risikogruppe eller faller innenfor Helsedirektorates krav om karantene, gi meg beskjed før vi avtaler visningstidspunkt.
VisningspåmeldingOm boligen
Har dette flotte huset på Smestad alt du ønsker deg? Den er lys og lekker med solrik og sentrumsnær beliggenhet, den har en romslig stor hage med lekeplass til barna, den har en meget bra planløsning, nydelig siktlinjer, en stor del i kjelleren som i dag leies ut for kr. 16 000,- pluss strøm og dobbeltgarasje med stor asfaltert gårdsplass.
Huset har en høy standard med bl.a. stort Strai kjøkken, spisestue med plass til hele familien, eksklusivt en-stavs eikeparkett av meget god kvalitet og gulvvarme. Den har innebygde garderober og alle overflater er helsparklet og nydelig malt i helmatt utførelse. Et perfekt hjem for storfamilien!
Huset har en høy standard med bl.a. stort Strai kjøkken, spisestue med plass til hele familien, eksklusivt en-stavs eikeparkett av meget god kvalitet og gulvvarme. Den har innebygde garderober og alle overflater er helsparklet og nydelig malt i helmatt utførelse. Et perfekt hjem for storfamilien!
NB: Knappen for å vise hele beskrivelsen har kun en visuell effekt.
NB: Knappen for å vise hele beskrivelsen har kun en visuell effekt.
Salgsoppgaven beskriver vesentlig og lovpålagt informasjon om eiendommen
Se komplett salgsoppgaveNyttige lenker
Nærområdet
Nordvik Majorstuen
Annonseinformasjon
| FINN-kode | 215055959 |
|---|---|
| Sist endret | 12. okt. 2021 07:52 |
| Referanse | 43cd419f-670a-4c9e-9fbc-1d61fb9e28b4 |
Annonsene kan være mangelfulle i forhold til lovpålagt opplysningsplikt. Før bindende avtale inngås oppfordres interessenter til å innhente komplett informasjon fra meglerforetaket, selger eller utleier.


















































