Bildegalleri

Meget attraktivt tomt med rammetillatelse for strøkstilpasset villa over 3 etasjer.
Inaktiv
Heggeli/Guldbergs vei | Ubebygget tomt på 2261kvm | Rammetillatelse for representativ villa over tre plan. Garasjeanlegg
Prisantydning38 000 000 kr
Nøkkelinfo
- Boligtype
- Tomter
- Eieform
- Eier (Selveier)
- Tomteareal
- 2 261 m² (eiet)
- Grunnflate
- 1 m²
Fasiliteter
Barnevennlig
Rolig
Sentralt
Offentlig vann/kloakk
Om boligen
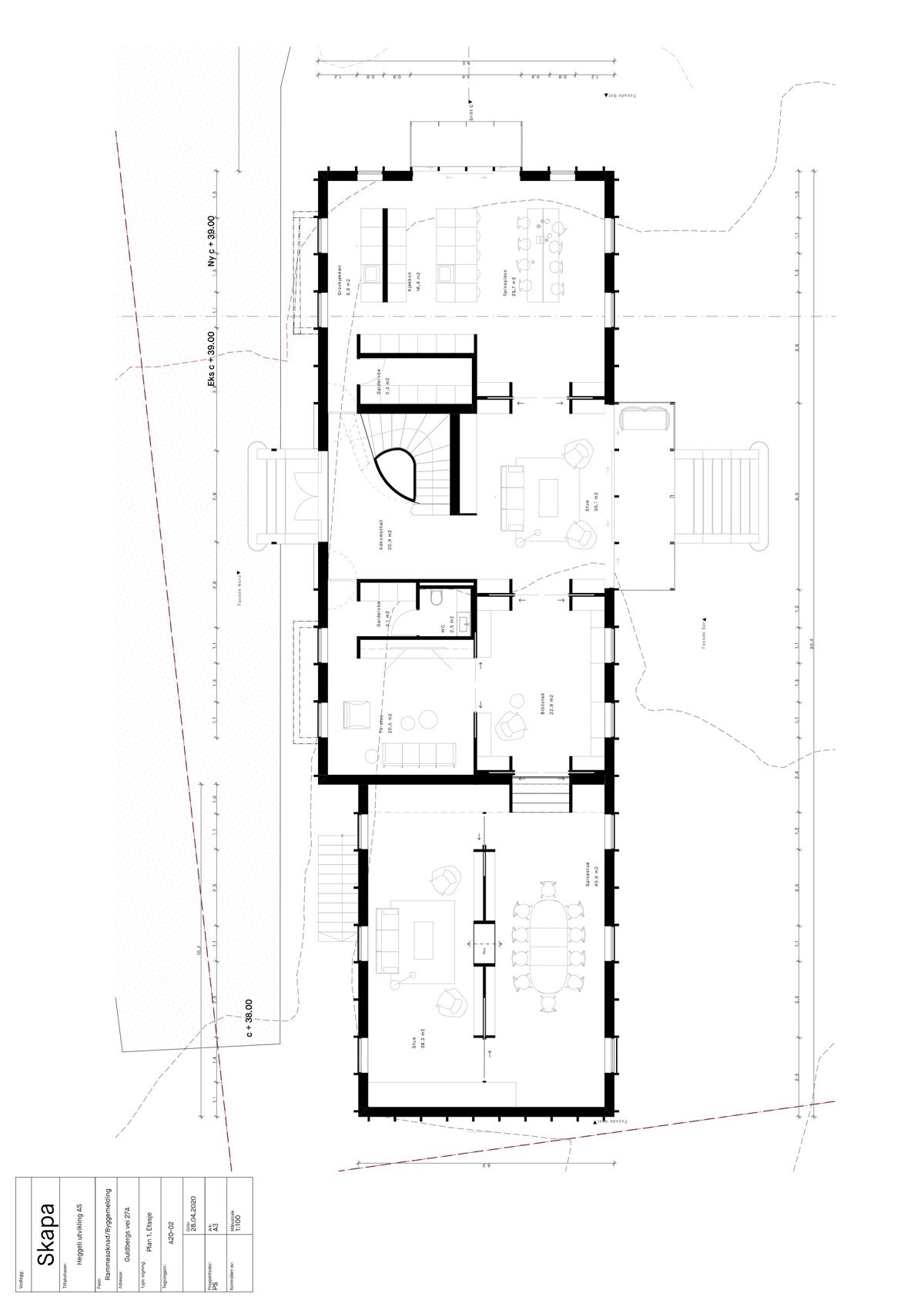
Unik ubebygget tomt med rammetillatelse for strøkstilpasset villa over 3 etasjer. Eiendommen er på 2 261 kvm. og nyter gode solforhold. Tilbaketrukket og hyggelig beliggenhet i villastrøk med gangavstand til Frognerparken. Unik mulighet for etablering av en meget representativ og ny villaeiendom i et etablert boligområde.
- Meget attraktivt tomt med rammetillatelse for strøkstilpasset villa over 3 etasjer. BRA 855 kvm.
- Unik mulighet for oppføring av ny representativ villa, som er romslig, innholdsrik og med alle fasiliteter.
- 15,51% BYA ihht. reguleringsbestemmelser S-4009.
- Landlig beliggenhet rett bak Frognerparken.
- Kort vei til skole og offentlig kommunikasjon.
- Se vedlagte godkjente rammetillatelse med plantegninger, snitt og fasade.
Ta kontakt for å avtale tomtevisning!
NB: Knappen for å vise hele beskrivelsen har kun en visuell effekt.
NB: Knappen for å vise hele beskrivelsen har kun en visuell effekt.
Salgsoppgaven beskriver vesentlig og lovpålagt informasjon om eiendommen
Se komplett salgsoppgaveNyttige lenker
Nærområdet
Sem & Johnsen
Boliger utenom det vanlige
Annonsene kan være mangelfulle i forhold til lovpålagt opplysningsplikt. Før bindende avtale inngås oppfordres interessenter til å innhente komplett informasjon fra meglerforetaket, selger eller utleier.












