Bildegalleri

Nordvik v/ Lise K. Hjelmseth ønsker velkommen til Blåsbortveien 2B - en meget attraktiv og innholdsrik enebolig i et rolig og barnevennlig område på Tåsen med et godt kollektivtilbud.
Solgt
TÅSEN
Delikat enebolig i rolig og familievennlig område | Pene uteområder og stor terrasse | Garasje m/ lader og hobbyrom
Prisantydning14 300 000 kr
Nøkkelinfo
- Boligtype
- Enebolig
- Eieform
- Eier (Selveier)
- Soverom
- 3
- Primærrom
- 151 m²
- Bruksareal
- 151 m²
- Byggeår
- 1989
- Energimerking
- D - Gul
- Rom
- 5
- Tomteareal
- 596 m² (eiet)
- Bruttoareal
- 162 m²
Fasiliteter
Alarm
Balkong/Terrasse
Barnevennlig
Garasje/P-plass
Hage
Kjæledyr tillatt
Parkett
Peis/Ildsted
Rolig
Sentralt
Turterreng
Lademulighet
Om boligen
Nordvik v/ Lise K. Hjelmseth ønsker velkommen til Blåsbortveien 2B - en meget attraktiv og innholdsrik enebolig i et rolig og barnevennlig område på Tåsen med et godt kollektivtilbud.
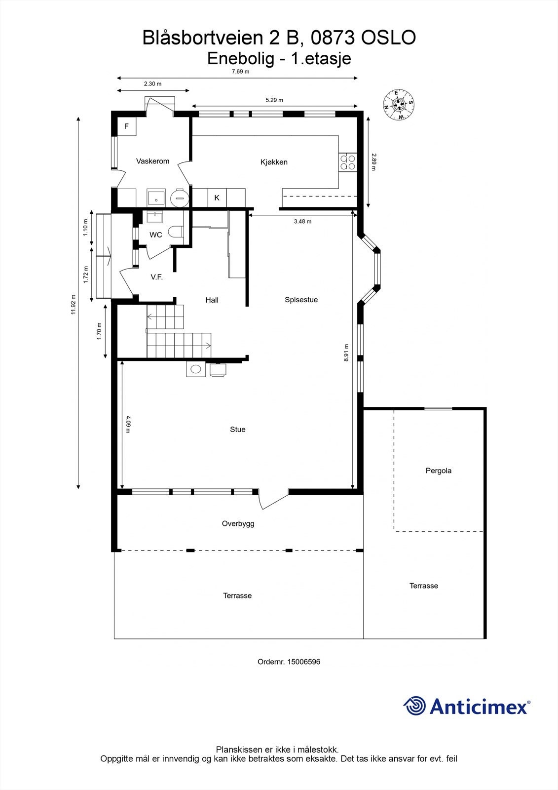
Boligen strekker seg over 2 etasjer, og første etasje består av en romslig flislagt entré med direkte adkomst til et delikat gjestetoalett og stor garderobe, videre føler en åpen og luftig stue med god plass til sittegrupper, spisebord og tilhørende møbler. Fra stuen er det direkte adkomst til pene opparbeidede utearealer med flere soner for sittegrupper og flere grøntarealer. Videre føler et stort kjøkken og et praktisk vaskerom med separat inngang. I boligens 2. etasje er det 3 romslige soverom, et stort baderom med badstue og rikelig med lagringsplass. Garasjen har et isolert verksted/hobbyrom og loft.
Boligen strekker seg over 2 etasjer, og første etasje består av en romslig flislagt entré med direkte adkomst til et delikat gjestetoalett og stor garderobe, videre føler en åpen og luftig stue med god plass til sittegrupper, spisebord og tilhørende møbler. Fra stuen er det direkte adkomst til pene opparbeidede utearealer med flere soner for sittegrupper og flere grøntarealer. Videre føler et stort kjøkken og et praktisk vaskerom med separat inngang. I boligens 2. etasje er det 3 romslige soverom, et stort baderom med badstue og rikelig med lagringsplass. Garasjen har et isolert verksted/hobbyrom og loft.
NB: Knappen for å vise hele beskrivelsen har kun en visuell effekt.
NB: Knappen for å vise hele beskrivelsen har kun en visuell effekt.
Salgsoppgaven beskriver vesentlig og lovpålagt informasjon om eiendommen
Se komplett salgsoppgaveNyttige lenker
Nærområdet
Nordvik Nydalen
Annonseinformasjon
| FINN-kode | 214830609 |
|---|---|
| Sist endret | 30. apr. 2021 15:14 |
| Referanse | NOP20.2182 |
Annonsene kan være mangelfulle i forhold til lovpålagt opplysningsplikt. Før bindende avtale inngås oppfordres interessenter til å innhente komplett informasjon fra meglerforetaket, selger eller utleier.





































































